Chibrit 2 camere 54.58 mp 2 2025

SVN Residentialist Victoriei va propune spre vanzare un apartament cu 2 camere, cu o suprafata utila de 54.58 mp, conceput pentru a oferi confort, functionalitate si dotari moderne, intr-un imobil nou, realizat la standarde actuale de siguranta si eficienta.

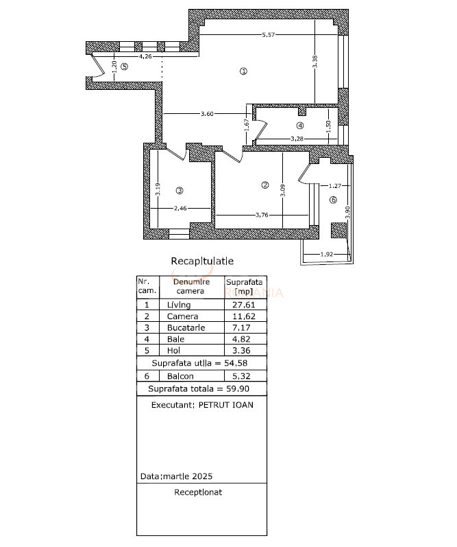
Locuinta beneficiaza de o compartimentare eficienta si de un balcon de 5.32 mp, care completeaza armonios spatiul interior si aduce un plus de lumina naturala. Apartamentul este situat la etajul 2, oferind un acces facil si un bun echilibru intre intimitate si conectivitate urbana.

Finisajele pot fi alese de catre viitorul proprietar, oferind posibilitatea personalizarii locuintei in functie de preferinte si stil. Imobilul este echipat cu sistem de video interfon si dispune de adapost ALA, oferind un plus de siguranta.

La pretul afisat se adauga TVA

Aceasta proprietate reprezinta o oportunitate excelenta pentru cei care isi doresc un apartament modern, cu dotari premium si posibilitatea de personalizare.

Va invitam sa ne contactati pentru mai multe detalii si pentru a programa o vizionare.

An constructie 2025

Suprafata construita 60 mp

Suprafata utila 54.58 mp

Suprafata terasa 5.32 mp

Regim Inaltime 2 / 2

Etaj 2

Nr. camere 2 camere

Nr. bai 1

Nr. balcoane 0 balcoane

Confort 1

Compartimentare Semidecomandat

Tip constructie Bloc

Status constructie Finalizat

Disponibila incepand cu 2026-05-13

Judet Bucuresti

Oras/ Sector Sector 1

Zona Chibrit

Gps lat 44.468967

Gps lng 26.046128

Cablu TV

Curent electric

Internet Wireless

Interfon

Supraveghere video

Geamuri termopan

Parchet

Gresie

Faianta

Gaz

Incalzire proprie

Incalzire prin pardoseala

Valoare proprietate (€)

Perioada (ani)

Procent avans (24.750 €)


Suma creditata 140.250

Dobanda 4.9%

Rata lunara 3.468 lei

Broker Imobiliar

Dan Ghita , Consultant imobiliar Vezi toate proprietatile

0317100200

Apartament 2 Camere I De Vanzare I Chibrit

Pret vanzare
165.000 €

Telefon Consultant imobiliar
0317100200

Cod: REA1027811

Proprietati similare

Bucuresti, 1 Mai, Chibrit

Apartament, 2 camere

49.88 mp 2 2025

152.000 EUR

Detalii

Bucuresti, 1 Mai, Chibrit

Apartament, 2 camere

54.53 mp 1 2026

171.000 EUR

Detalii

Bucuresti, Crangasi

Apartament, 2 camere

58 mp 2 2022

153.000 EUR

Detalii

Bucuresti, Bucurestii Noi, Straulesti

Apartament, 2 camere

66 mp 2 2025

165.000 EUR

Detalii

Bucuresti, Militari, Politehnica

Apartament, 2 camere

57.23 mp 2 2028

167.100 EUR

Detalii

Bucuresti, Crangasi, Regie

Apartament, 2 camere

50 mp 3 2018

170.000 EUR

Detalii

Bucuresti, 1 Mai, Titulescu

Apartament, 2 camere

52 mp 3 1982

159.900 EUR

Detalii

Bucuresti, Militari, Grozavesti

Apartament, 2 camere

55.69 mp 3 2016

178.900 EUR

Detalii
Apartamente 2 camere vandute in 1 Mai, Bucuresti Apartamente 2 camere de vanzare in 1 Mai, Bucuresti

Afla primul de cele mai bune oferte
inainte sa ajunga pe piata

Aboneaza-te la newsletter

Aboneaza-te la notificari