Chibrit 2 camere 54.53 mp 1 2026

SVN Residentialist Victoriei va propune spre vanzare un apartament cu 2 camere, cu o suprafata utila de 54.54 mp, conceput pentru a oferi confort, functionalitate si dotari moderne, intr-un imobil nou, realizat la standarde actuale de siguranta si eficienta.

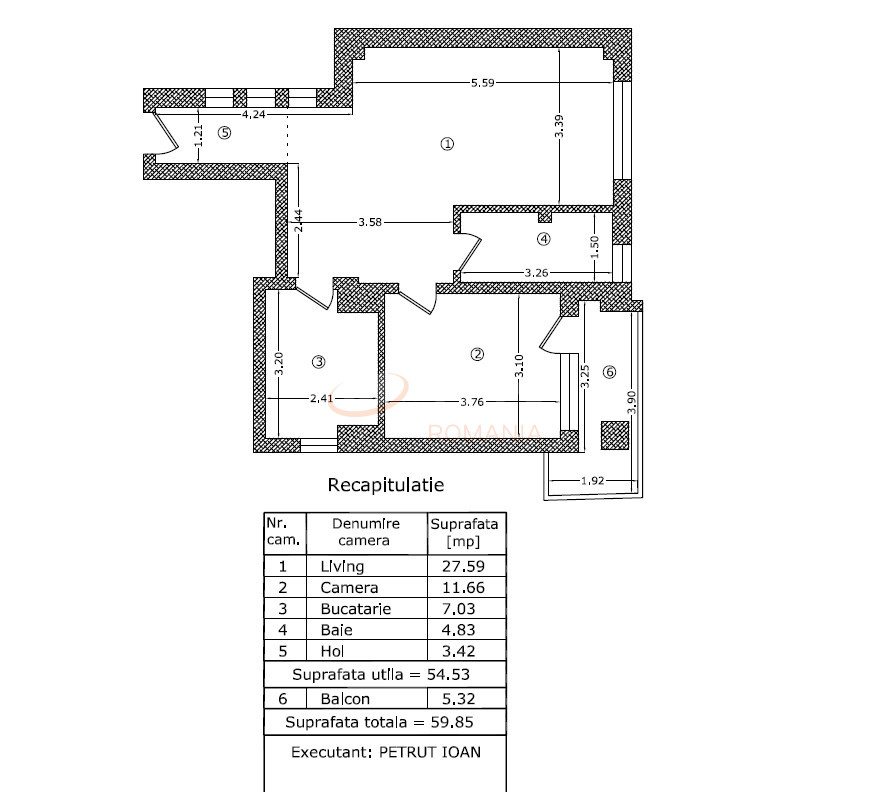
Locuinta beneficiaza de o compartimentare eficienta si de un balcon de 5.32 mp, care completeaza armonios spatiul interior si aduce un plus de lumina naturala. Apartamentul este situat la etajul 1, oferind un acces facil si un bun echilibru intre intimitate si conectivitate urbana.

Finisajele pot fi alese de catre viitorul proprietar, oferind posibilitatea personalizarii locuintei in functie de preferinte si stil. Imobilul este echipat cu sistem de video interfon si dispune de adapost ALA, oferind un plus de siguranta.

Aceasta proprietate reprezinta o oportunitate excelenta pentru cei care isi doresc un apartament modern, cu dotari premium si posibilitatea de personalizare.

Va invitam sa ne contactati pentru mai multe detalii si pentru a programa o vizionare.

An constructie 2026

Suprafata construita 60 mp

Suprafata utila 54.53 mp

Suprafata terasa 5.32 mp

Regim Inaltime 1 / 2

Etaj 1

Nr. camere 2 camere

Nr. bai 1

Nr. balcoane 0 balcoane

Confort 1

Compartimentare Decomandat

Tip constructie In bloc

Status constructie Finalizat

Disponibila incepand cu 2026-02-27

Judet Bucuresti

Oras/ Sector Sector 1

Zona Chibrit

Gps lat 44.469063

Gps lng 26.046016

Cablu TV

Curent electric

Interfon

Supraveghere 24/7

Geamuri termopan

Parchet

Gresie

Faianta

Gaz

Calorifere

Incalzire prin pardoseala

Valoare proprietate (€)

Perioada (ani)

Procent avans (25.650 €)


Suma creditata 145.350

Dobanda 4.9%

Rata lunara 3.594 lei

Broker Imobiliar

Dan Ghita , Consultant imobiliar Vezi toate proprietatile

0317100200

Apartament 2 Camere I De Vanzare I Chibrit I Domenii

Pret vanzare + TVA
171.000 €

Telefon Consultant imobiliar
0317100200

Cod: REA1027869

Proprietati similare

Bucuresti, 1 Mai, Chibrit

Apartament, 2 camere

54.58 mp 2 2025

165.000 EUR

Detalii

Bucuresti, Bucurestii Noi

2 camere cu loc parcare subteran inclus

50 mp 3 2021

180.000 EUR

Detalii

Bucuresti, Crangasi

Apartament, 2 camere

60 mp 3 2016

169.000 EUR

Detalii

Bucuresti, Bucurestii Noi, Straulesti

Apartament, 2 camere

66 mp 2 2025

165.000 EUR

Detalii

Bucuresti, Baneasa, Sisesti

Apartament, 2 camere

59.93 mp 6 2023

188.000 EUR

Detalii

Bucuresti, Militari, Politehnica

Apartament, 2 camere

57.23 mp 2 2028

167.100 EUR

Detalii

Bucuresti, Crangasi, Regie

2 camere cu loc parcare exterior inclus

50 mp 3 2018

169.000 EUR

Detalii

Bucuresti, Militari, Grozavesti

Apartament, 2 camere

50 mp P 2020

174.000 EUR

Detalii
Apartamente 2 camere vandute in 1 Mai, Bucuresti Apartamente 2 camere de vanzare in 1 Mai, Bucuresti

Afla primul de cele mai bune oferte
inainte sa ajunga pe piata

Aboneaza-te la newsletter

Aboneaza-te la notificari