Chitila 2 camere 63 mp 3 2022

Ansamblul de locuinte Ambient Boutique se afla pe Soseaua Chitilei in proximitatea statiei de metrou Jiului cu acces facil catre spatiile comerciale.

Imobilul dispune de garsoniere, apartamente cu 2, 3 camere si este dispus pe D+P+5E. Structura de rezistenta este din fier beton, iar compartimentarile din caramida porotherm.
In subteran sunt disponibile locuri de parcare.

Apartamentele beneficiaza de centrale termice individuale, totul fiind contorizat, costuriile find in functie de consum.
Exista posibilitatea ca finisajele sa fie alese de catre cumparator, dezvoltatorul putand pune la dispozitie o echipa de specialisti care se vor ocupa de montarea si finisarea apartamentelor. Toate acestea, fiind incluse in pretul de achizitie al apartamentului.

Momentan nu detinem informatii cu privire la clasa energetica a imobilului

An constructie 2022

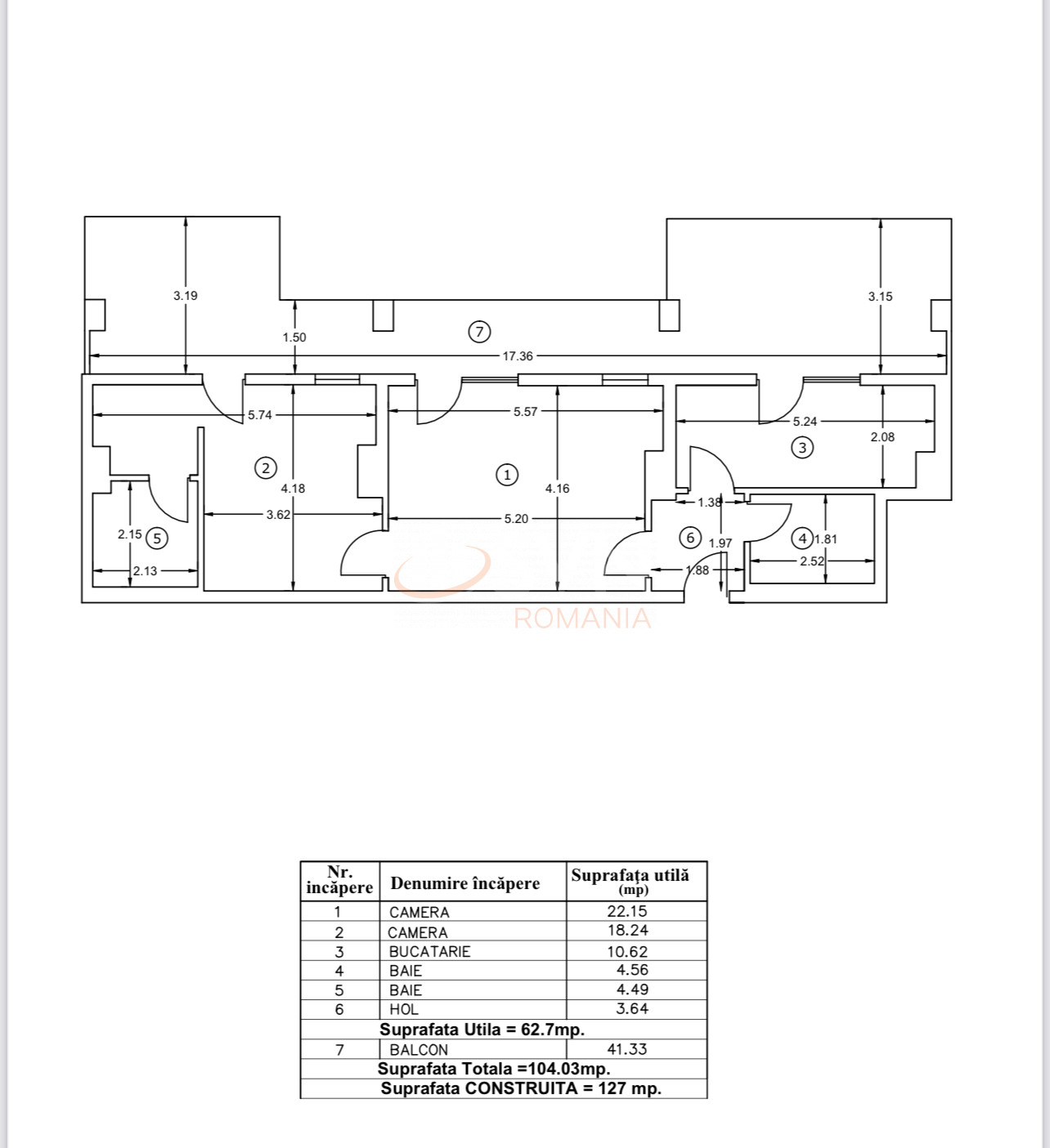
Suprafata construita 127 mp

Suprafata utila 63 mp

Suprafata terasa 42

Regim Inaltime 3 / 5

Etaj 3

Nr. camere 2 camere

Nr. bai 2

Nr. balcoane 0 balcoane

Confort 1

Tip constructie In bloc

Status constructie Finalizat

Disponibila incepand cu 2022-03-31

Judet Bucuresti

Oras/ Sector Sector 1

Zona Chitila

Gps lat 44.479604

Gps lng 26.036993

Complex rezidential Ambient Residence

Nr. terase 1

Cablu TV

Internet prin cablu

Internet Wireless

Curent electric

Internet prin fibra optica

Interfon

Detector de gaze

Geamuri termopan

Parchet

Apometre

Gresie

Faianta

Gaz

Incalzire proprie

Bloc reabiliat termic

Lift

Ambient Residence-2 camere cu 2 bai

Proprietate vanduta

Ai o proprietate similara? Vinde-o cu noi.
Vinde apartament

Cod: REA1008538

Proprietati similare

Bucuresti, Bucurestii Noi

2 camere cu loc parcare subteran inclus

50 mp 5 2021

165.000 EUR

Detalii

Bucuresti, Bucurestii Noi, Straulesti

Apartament, 2 camere

66 mp 2 2025

165.000 EUR

Detalii

Bucuresti, Baneasa, Sisesti

Apartament, 2 camere

55.89 mp 3 2023

152.916 EUR

Detalii

Bucuresti, Baneasa, Sisesti

Apartament, 2 camere

48.6 mp 2 2020

155.000 EUR

Detalii
Exclusiv Discount

Bucuresti, Baneasa, Sisesti

2 camere cu loc parcare subteran inclus

65.8 mp 5 2025

151.340 EUR

Detalii

Bucuresti, Baneasa, Sisesti

2 camere cu loc parcare subteran inclus

64.8 mp 5 2025

155.520 EUR

Detalii

Bucuresti, Baneasa, Sisesti

Apartament, 2 camere

65.03 mp 1 2026

147.200 EUR

Detalii

Bucuresti, Baneasa, Sisesti

Apartament, 2 camere

65.47 mp 1 2026

154.800 EUR

Detalii
Apartamente 2 camere vandute in Bucurestii Noi, Bucuresti Apartamente 2 camere de vanzare in Bucurestii Noi, Bucuresti

Afla primul de cele mai bune oferte
inainte sa ajunga pe piata

Aboneaza-te la newsletter

Aboneaza-te la notificari