Chitila 2 camere 45 mp 4 2022

Ansamblul de locuinte Ambient Boutique se afla pe Soseaua Chitilei in proximitatea statiei de metrou Jiului cu acces facil catre spatiile comerciale.

Imobilul dispune de garsoniere, apartamente cu 2, 3 camere si este dispus pe D+P+5E. Structura de rezistenta este din fier beton, iar compartimentarile din caramida porotherm.
In subteran sunt disponibile locuri de parcare.

Apartamentele beneficiaza de centrale termice individuale, totul fiind contorizat, costuriile find in functie de consum.
Exista posibilitatea ca finisajele sa fie alese de catre cumparator, dezvoltatorul putand pune la dispozitie o echipa de specialisti care se vor ocupa de montarea si finisarea apartamentelor. Toate acestea, fiind incluse in pretul de achizitie al apartamentului.

Momentan nu detinem informatii cu privire la clasa energetica a imobilului

An constructie 2022

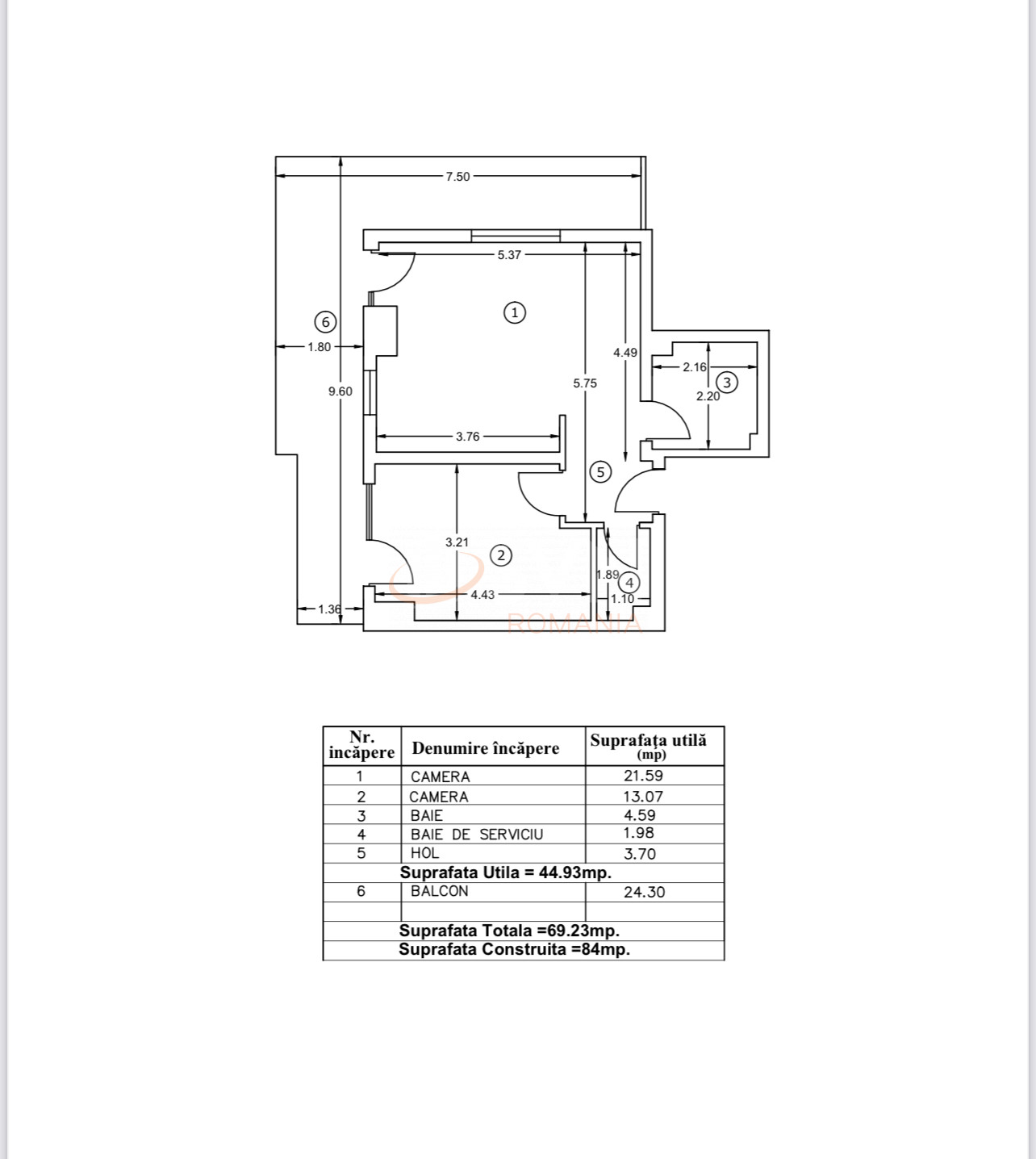
Suprafata construita 84 mp

Suprafata utila 45 mp

Suprafata terasa 24

Regim Inaltime 4 / 5

Etaj 4

Nr. camere 2 camere

Nr. bai 1

Nr. balcoane 1 balcon

Confort 1

Tip constructie In bloc

Status constructie Finalizat

Disponibila incepand cu 2022-03-31

Judet Bucuresti

Oras/ Sector Sector 1

Zona Chitila

Gps lat 44.479908

Gps lng 26.036183

Complex rezidential Ambient Residence

Internet Wireless

Internet prin cablu

Cablu TV

Detector de gaze

Interfon

Internet prin fibra optica

Curent electric

Geamuri termopan

Parchet

Apometre

Gresie

Faianta

Gaz

Incalzire proprie

Bloc reabiliat termic

Lift

Ambient Residence 2 camere

Proprietate vanduta

Ai o proprietate similara? Vinde-o cu noi.
Vinde apartament

Cod: REA1008541

Proprietati similare

Bucuresti, Bucurestii Noi

Apartament, 2 camere

46.23 mp 13 2008

107.000 EUR

Detalii

Bucuresti, Bucurestii Noi, Pajura

Apartament, 2 camere

51.3 mp 3 1961

99.900 EUR

Detalii

Bucuresti, Bucurestii Noi, Pajura

Apartament, 2 camere

43 mp 7 1965

98.000 EUR

Detalii

Bucuresti, Bucurestii Noi

Apartament, 2 camere

50 mp 3 1963

109.700 EUR

Detalii

Bucuresti, Gara De Nord, Grivita

Apartament, 2 camere

53 mp 1 1963

100.000 EUR

Detalii

Bucuresti, Bucurestii Noi

Apartament, 2 camere

53.5 mp P 2024

109.000 EUR

Detalii

Bucuresti, Ultracentral, Basarab

Apartament, 2 camere

45 mp 6 1965

98.999 EUR

Detalii

Bucuresti, Gara De Nord

Apartament, 2 camere

44.75 mp 6 1965

98.999 EUR

Detalii
Apartamente 2 camere vandute in Bucurestii Noi, Bucuresti Apartamente 2 camere de vanzare in Bucurestii Noi, Bucuresti

Afla primul de cele mai bune oferte
inainte sa ajunga pe piata

Aboneaza-te la newsletter

Aboneaza-te la notificari