Chitila 2 camere 61 mp 4 2022

Ansamblul de locuinte Ambient Boutique se afla pe Soseaua Chitilei in proximitatea statiei de metrou Jiului cu acces facil catre spatiile comerciale.

Imobilul dispune de garsoniere, apartamente cu 2, 3 camere si este dispus pe D+P+5E. Structura de rezistenta este din fier beton, iar compartimentarile din caramida porotherm.
In subteran sunt disponibile locuri de parcare.

Apartamentele beneficiaza de centrale termice individuale, totul fiind contorizat, costuriile find in functie de consum.
Exista posibilitatea ca finisajele sa fie alese de catre cumparator, dezvoltatorul putand pune la dispozitie o echipa de specialisti care se vor ocupa de montarea si finisarea apartamentelor. Toate acestea, fiind incluse in pretul de achizitie al apartamentului.

Momentan nu detinem informatii cu privire la clasa energetica a imobilului

An constructie 2022

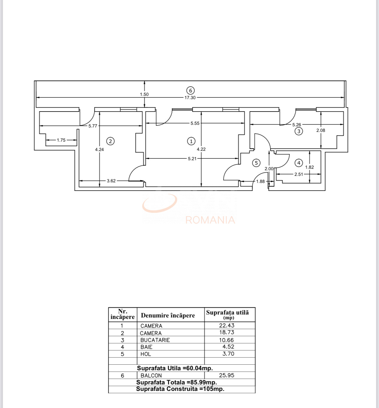
Suprafata construita 105 mp

Suprafata utila 61 mp

Suprafata terasa 26

Regim Inaltime 4 / 5

Etaj 4

Nr. camere 2 camere

Nr. bai 1

Nr. balcoane 1 balcon

Confort Lux

Tip constructie In bloc

Status constructie Finalizat

Disponibila incepand cu 2022-03-31

Judet Bucuresti

Oras/ Sector Sector 1

Zona Chitila

Gps lat 44.479958

Gps lng 26.035700

Complex rezidential Ambient Residence

Cablu TV

Internet prin cablu

Internet Wireless

Curent electric

Internet prin fibra optica

Interfon

Detector de gaze

Geamuri termopan

Parchet

Apometre

Gresie

Faianta

Gaz

Incalzire proprie

Bloc reabiliat termic

Lift

Ambient Residence-2 camere cu terasa 26mp -Sos Chitile 5 min metrou

Proprietate vanduta

Ai o proprietate similara? Vinde-o cu noi.
Vinde apartament

Cod: REA1008542

Proprietati similare

Bucuresti, Bucurestii Noi, Damaroaia

Apartament, 2 camere

60 mp 2 2012

145.500 EUR

Detalii

Bucuresti, 1 Mai

Apartament, 2 camere

44 mp 3 1961

124.000 EUR

Detalii

Bucuresti, Bucurestii Noi

Apartament, 2 camere

40 mp 4 2020

125.000 EUR

Detalii

Bucuresti, Baneasa, Sisesti

Apartament, 2 camere

65.03 mp 1 2026

147.200 EUR

Detalii

Bucuresti, Baneasa, Sisesti

Apartament, 2 camere

47.99 mp 10 2026

133.400 EUR

Detalii

Bucuresti, Baneasa, Sisesti

Apartament, 2 camere

68.65 mp 1 2023

149.999 EUR

Detalii

Bucuresti, Baneasa, Sisesti

Apartament, 2 camere

53.4 mp 4 2024

140.000 EUR

Detalii

Bucuresti, Baneasa

Apartament, 2 camere

62.54 mp 2 2011

144.000 EUR

Detalii
Apartamente 2 camere vandute in Bucurestii Noi, Bucuresti Apartamente 2 camere de vanzare in Bucurestii Noi, Bucuresti

Afla primul de cele mai bune oferte
inainte sa ajunga pe piata

Aboneaza-te la newsletter

Aboneaza-te la notificari