Cismigiu 5 camere 170.03 mp 1 1940

SVN Romania va propune spre vanzare un spatiu comercial cu o pozitie perfecta pe Bd. Regina Elisabeta, chiar la intrare in Parcul Cismigiu.

Pozitionat langa Institutul National al Magistraturii, imobilul are o constructie P+2, din care intrarea se face direct cu acces catre etajul 1 . Cladirea de asemenea are lift.

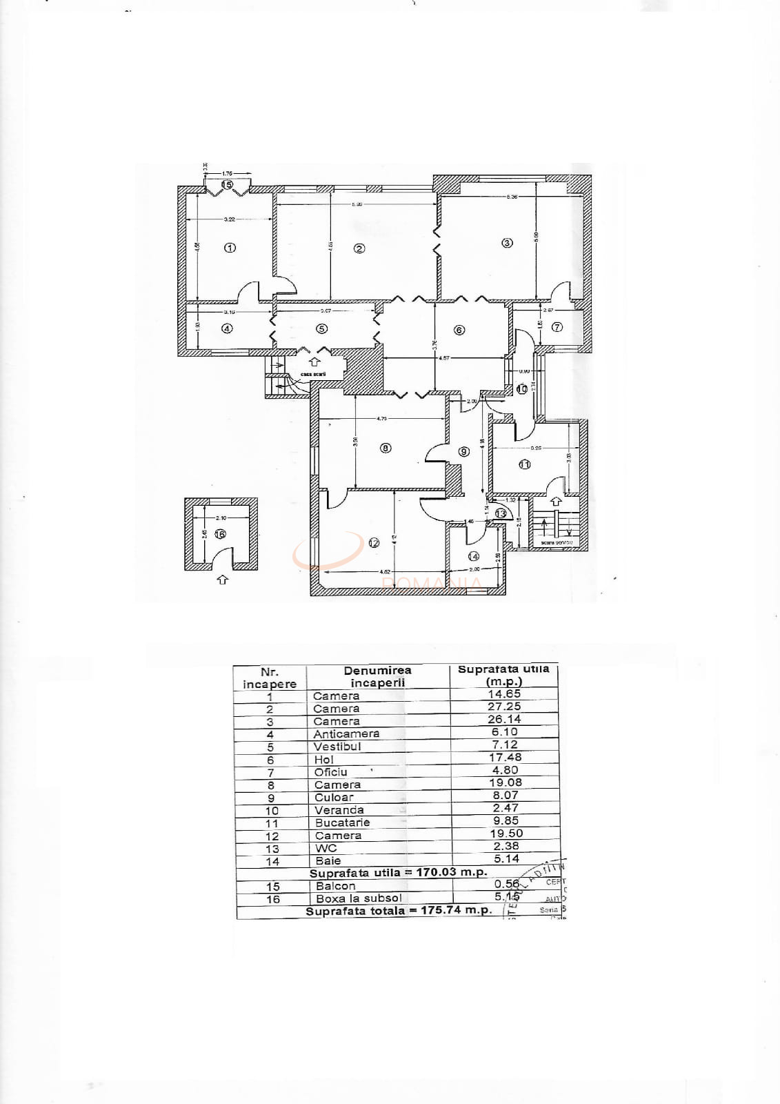
Suprafata utila a acestuia este de 170,03mp, la care se adauga un balcon deschis+o boxa la subsol, acestea avand o suprafata totala de 175,74mp. (vedeti releveu atasat)

Spatiul a fost inchiriat pana recent, in acest moment fiind disponibil pentru vizionari oricand!

Proprietatea beneficiaza de centrala proprie, curent trifazic, firele de curent electric fiind refacute recent.

Se preteaza in special pentru spatiu de birouri tip office, birou notarial, cabinet medical sau policlinica, insa acesta poate fi folosit si inspre orice alt domeniu.

Datorita pozitionarii excelente langa Parcul Cismigiu, cat si aproape de orice mijloc de transport, spatiul este o oportunitate de investitie pe termen lung.

Pentru mai multe detalii sau vizionari, astept apelul dvs!

An constructie 1940

Suprafata construita 210 mp

Suprafata utila 170.03 mp

Regim Inaltime 1 / 2

Etaj 1

Nr. camere 5 camere

Nr. bai 3

Nr. balcoane 1 balcon

Confort 1

Compartimentare Circular

Tip constructie Vila

Status constructie Finalizat

Disponibila incepand cu 2023-06-14

Judet Bucuresti

Oras/ Sector Sector 1

Zona Cismigiu

Gps lat 44.434466

Gps lng 26.091754

Seismic risk 4

Cablu TV

Interfon

Curent electric

Internet prin fibra optica

Detector de gaze

Repartitoare

Parchet

Apometre

Boxa

Gresie

Faianta

Gaz

Calorifere

Incalzire proprie

Aer conditionat

Lift

Spatiu comercial 170mp pozitie ideala pentru diverse activitati

Proprietate vanduta

Ai o proprietate similara? Vinde-o cu noi.
Vinde apartament

Cod: REA1013824

Proprietati similare

Exclusiv Discount

Bucuresti, Ultracentral, Piata Victoriei

5 camere cu loc parcare subteran inclus

156.62 mp P 2009

599.000 EUR

Detalii

Bucuresti, Mosilor

Apartament, 5 camere

190 mp 1 1941

650.000 EUR

Detalii

Bucuresti, Ferdinand

Apartament, 5 camere

147.9 mp 7 2026

685.000 EUR

Detalii

Bucuresti, Dorobanti

Apartament, 5 camere

230 mp 5 2010

635.000 EUR

Detalii

Bucuresti, Herastrau

5 camere cu loc parcare subteran inclus

152.31 mp 2 2007

650.000 EUR

Detalii

Bucuresti, Aviatiei

Apartament, 5 camere

150 mp P 2021

649.000 EUR

Detalii

Bucuresti, Floreasca, Barbu Vacarescu

Apartament, 5 camere

151.6 mp 11 2026

638.537 EUR

Detalii

Bucuresti, Aviatiei

Apartament, 5 camere

150 mp P 2022

689.000 EUR

Detalii
Apartamente 5 camere vandute in Ultracentral, Bucuresti Apartamente 5 camere de vanzare in Ultracentral, Bucuresti

Afla primul de cele mai bune oferte
inainte sa ajunga pe piata

Aboneaza-te la newsletter

Aboneaza-te la notificari