Cismigiu 8 camere 153 mp 3 1953

SVN Romania va prezinta la vanzare un apartament spatios ce se afla intr-un imobil compus din D+P+4 in apropiere de Parcul Cismigiu.

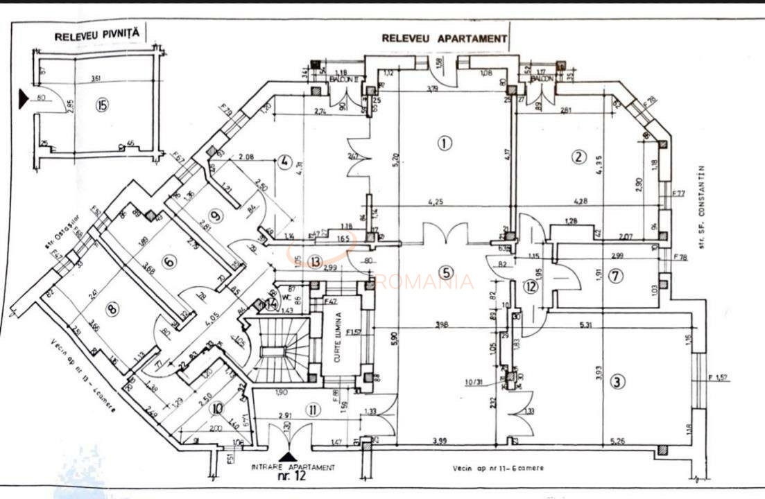
Apartamentul este semidecomandat compus astfel, living, bucatarie inchisa, zona de dining, 2 bai spatioase, 3 dormitoare, 1 camara, in total avand o suprafata utila de 153mp utili plus doua balcoane.

Apartamentul a fost complet renovat, parchet din lemn masiv de stejar, inclusiv instalatia sanitara si electrica.

Certificatul energetic va fi disponibil in momentul vanzarii.

Pentru mai multe detalii si vizionari va rog sa ma contactati.

An constructie 1953

Suprafata construita 180 mp

Suprafata utila 153 mp

Regim Inaltime 3 / 4

Etaj 3

Nr. camere 8 camere

Nr. bai 2

Nr. balcoane 2 balcoane

Confort 1

Compartimentare Semidecomandat

Tip constructie In bloc

Status constructie Finalizat

Disponibila incepand cu 2024-11-27

Judet Bucuresti

Oras/ Sector Sector 1

Zona Cismigiu

Gps lat 44.437192

Gps lng 26.084037

Detector de gaze

Supraveghere video

Cablu TV

Curent electric

Internet prin cablu

Internet prin fibra optica

Internet Wireless

Interfon

Sistem de alarma

Geamuri termopan

Repartitoare

Parchet

Apometre

Gresie

Telefon

Faianta

Gaz

Calorifere

Incalzire proprie

Mobilat

Aer conditionat

Bucatarie mobilata

Apartament renovat Cismigiu 153mp

Proprietate vanduta

Ai o proprietate similara? Vinde-o cu noi.
Vinde apartament

Cod: REA1022126

Proprietati similare

Bucuresti, Aviatiei

Apartament, 8 camere

192 mp 5 2008

400.000 EUR

Detalii
Apartamente 8 camere vandute in Ultracentral, Bucuresti Apartamente 8 camere de vanzare in Ultracentral, Bucuresti

Afla primul de cele mai bune oferte
inainte sa ajunga pe piata

Aboneaza-te la newsletter

Aboneaza-te la notificari