Damaroaia 2 camere 51.66 mp 5 2022

SVN Romania va prezinta un apartament de 2 camere dintr-un complex rezidential din nordul Bucurestiului, amplasat perfect intr-o zona verde, aerisita si linistita, cu acces facil catre principalele zone de interes, oferind privelisti spectaculoase si unice din fiecare apartament.

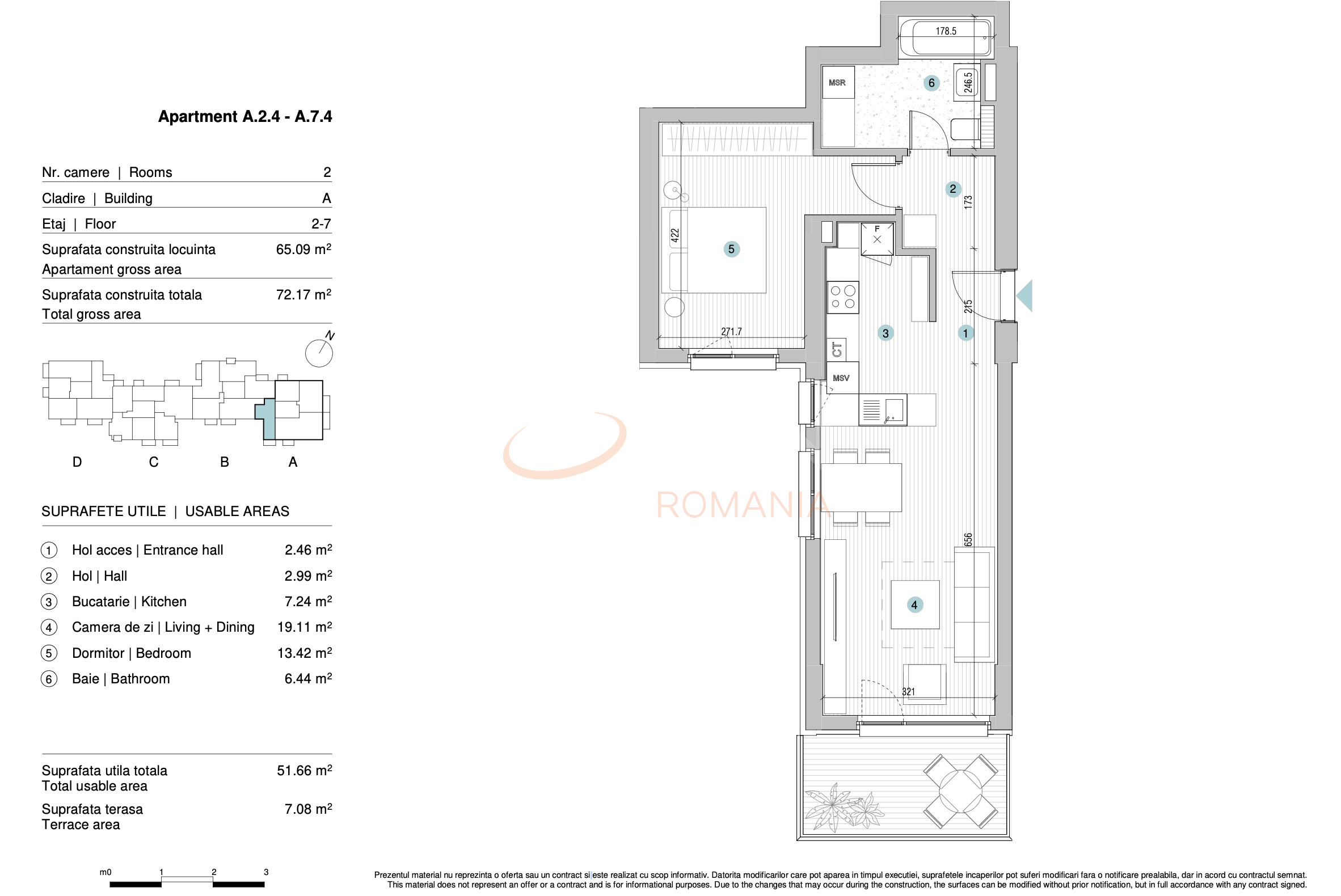
Configuratia apartamentului asigura doua spatii bine definite: zona de zi de 26,35 metri patrati, cu living, dining si bucatarie deschisa, si o zona de noapte, cu un dormitor de 13,42 metri patrati, pentru o suprafata utila totala de 58,74 metri patrati dintre care 7,08 ii constituie terasa.

Printre beneficiile acestei proprietati includ complexul cu acces securizat, poarta cu bariera, portar si peste 150 de locuri de parcare subterane, precum si locuri de parcare pentru vizitatori la parter.

Spatii verzi frumos amenajate in curtea ansamblului rezidential completeaza experienta, iar finisajele de inalta calitate si varietatea de tipuri de apartamente satisfac toate preferintele.

Lifturile de ultima generatie si sistemul de supraveghere video asigura confortul si securitatea, iar terasele generoase aduc un plus de relaxare.

Acest apartament este disponibil complet mobilat si utilat pentru un cost aditional de 12,500 EUR + TVA.

Aveti posibilitatea de a achizitiona un loc de parcare suprateran la pretul de 13,500 EUR + TVA sau subteran la 16,000 EUR + TVA.

Pentru persoane fizice la pretul afisat se adauga TVA, iar pentru achizitia pe persoana juridica, se aplica taxare inversa.

Certificatul energetic va fi disponibil la data semnarii contractului de vanzare-cumparare.

Contactati-ne acum pentru mai multe detalii si pentru a programa o vizionare a acestei proprietati atractive!

An constructie 2022

Suprafata construita 72.17 mp

Suprafata utila 51.66 mp

Suprafata terasa 7.08 mp

Regim Inaltime 5 / 8

Etaj 5

Nr. camere 2 camere

Nr. bai 1

Nr. balcoane 0 balcoane

Confort Lux

Compartimentare Decomandat

Tip constructie In bloc

Status constructie Finalizat

Disponibila incepand cu 2024-01-04

Judet Bucuresti

Oras/ Sector Sector 1

Zona Damaroaia

Gps lat 44.488715

Gps lng 26.068428

Complex rezidential Ansamblu rezidential Lacul Baneasa

Nr. terase 1

Internet Wireless

Internet prin cablu

Internet prin Dial-Up

Supraveghere video

Cablu TV

Internet prin fibra optica

Interfon

Supraveghere 24/7

Curent electric

Geamuri termopan

Parchet

Apometre

Gresie

Telefon

Faianta

Gaz

Incalzire prin pardoseala

Incalzire proprie

Mobilat

Aer conditionat

Bucatarie mobilata

Bloc reabiliat termic

Lift

Comision 0 I Apartament 2 camere I Direct Dezvoltator

Proprietate inchiriata

Ai o proprietate similara? Vinde-o cu noi.
Vinde apartament

Cod: REA1017347

Proprietati similare

Bucuresti, Bucurestii Noi, Straulesti

Apartament, 2 camere

50 mp 6 2024

800 EUR/luna

Detalii

Bucuresti, Baneasa

Apartament, 2 camere

70 mp 1 2018

750 EUR/luna

Detalii

Bucuresti, Sector 1, P-ta Presei Libere

Apartament, 2 camere

54 mp 3 2023

680 EUR/luna

Detalii

Bucuresti, Baneasa

Apartament, 2 camere

53.7 mp 1 2021

750 EUR/luna

Detalii

Bucuresti, 1 Mai, Domenii

Apartament, 2 camere

55 mp 7 2020

700 EUR/luna

Detalii

Bucuresti, Aviatiei

2 camere cu loc parcare subteran inclus

57.81 mp 1 2010

800 EUR/luna

Detalii

Bucuresti, 1 Mai, Domenii

2 camere cu loc parcare subteran inclus

60 mp 1 2021

750 EUR/luna

Detalii

Bucuresti, 1 Mai, Domenii

2 camere cu loc parcare subteran inclus

60 mp 10 2021

800 EUR/luna

Detalii
Apartamente 2 camere inchiriate in Bucurestii Noi, Bucuresti Apartamente 2 camere de inchiriere in Bucurestii Noi, Bucuresti

Afla primul de cele mai bune oferte
inainte sa ajunga pe piata

Aboneaza-te la newsletter

Aboneaza-te la notificari