Domenii 2 camere 73.93 mp 1 2010

SVN Residentialist va propune spre achizitie un apartament deosebit cu 2 camere, situat intr-un bloc boutique din zona 1 Mai, construit in 2011. Cu o suprafata utila de 73,93mp mp, aceasta locuinta reprezinta echilibrul perfect intre functionalitate, confort si eleganta.

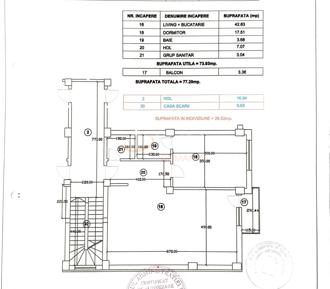
Apartamentul, amplasat la etajul 1/4 al imobilului, se remarca printr-o compartimentare eficienta si spatii bine gandite. Bucataria open space, integrata armonios cu livingul generos de 42,63 mp, ofera un cadru primitor pentru momentele petrecute alaturi de cei dragi. Dormitorul de 17.51mp, ideal atat pentru odihna, cat si pentru a fi amenajat conform nevoilor personale. Cele doua bai, de 3.68 mp si 3.04 mp, sunt practice si bine intretinute, completand perfect functionalitatea apartamentului. In plus, apartamentul detine si un loc de parcare, un avantaj considerabil pentru orice familie.

Locuinta beneficiaza de centrala proprie, asigurand un confort termic ridicat si costuri eficiente la utilitati.

Pozitionarea este un alt atu major al acestui apartament. Situat la doar 5 minute de mers pe jos de statia de metrou 1 Mai si de liniile de autobuz 86, 93, 97 si 381, locuinta ofera acces facil catre orice zona a orasului. In proximitate se afla magazine, scoli, gradinite si alte facilitati esentiale.

Contactati-ne pentru mai multe detalii si pentru a programa o vizionare!

An constructie 2010

Suprafata construita 80 mp

Suprafata utila 73.93 mp

Suprafata terasa 3.36 mp

Regim Inaltime 1 / 4

Etaj 1

Nr. camere 2 camere

Nr. bai 1

Nr. balcoane 1 balcon

Confort 1

Compartimentare Semidecomandat

Tip constructie In bloc

Status constructie Finalizat

Disponibila incepand cu 2024-11-22

Judet Bucuresti

Oras/ Sector Sector 1

Zona Domenii

Gps lat 44.468240

Gps lng 26.055069

Sistem de alarma

Interfon

Internet prin Dial-Up

Internet prin cablu

Curent electric

Geamuri termopan

Parchet

Gresie

Loc parcare subteran

Faianta

Calorifere

Incalzire proprie

Mobilat

Aer conditionat

Bucatarie mobilata

Apartament 2 Camere l 1 Mai l Metrou

Proprietate vanduta

Ai o proprietate similara? Vinde-o cu noi.
Vinde apartament

Cod: REA1021847

Proprietati similare

Bucuresti, 1 Mai, Domenii

Apartament, 2 camere

51 mp 2 2020

189.800 EUR

Detalii

Bucuresti, 1 Mai, Domenii

Apartament, 2 camere

50 mp 3 2023

200.850 EUR

Detalii

Bucuresti, Bucurestii Noi

2 camere cu loc parcare subteran inclus

50 mp 3 2021

180.000 EUR

Detalii

Bucuresti, Baneasa, Sisesti

Apartament, 2 camere

59.93 mp 6 2023

188.000 EUR

Detalii

Bucuresti, Militari, Grozavesti

Apartament, 2 camere

53 mp 5 2017

200.000 EUR

Detalii

Bucuresti, Dorobanti, Primaverii

Apartament, 2 camere

48 mp 1 1968

205.000 EUR

Detalii

Bucuresti, Crangasi, Regie

Apartament, 2 camere

50 mp 7 2023

199.000 EUR

Detalii

Bucuresti, Militari, Grozavesti

Apartament, 2 camere

50 mp P 2020

174.000 EUR

Detalii
Apartamente 2 camere vandute in 1 Mai, Bucuresti Apartamente 2 camere de vanzare in 1 Mai, Bucuresti

Afla primul de cele mai bune oferte
inainte sa ajunga pe piata

Aboneaza-te la newsletter

Aboneaza-te la notificari