Domenii 2 camere 43.19 mp 7 2020

Avem placerea de a va oferi spre vanzare un apartament cu 2 camere situat la etajul 7 al complexului rezidential Luxuria Residence din zona Expozitiei.

Apartamentul este mobilat si utilat si a fost amenajat în colaborare cu o firma de design interior pentru cea mai buna optimizare a spatiului. Se vinde exact cum este prezentat in fotografii.

Apartamentul dispune de loc de parcare in subteran inclus in pretul afisat.

Complexul rezidential dispune de numeroase avantaje precum supraveghere si paza 24/7, spatii verzi, sala fitness, lounge primitor, parcari subterane pe 2 nivele.

Certificatul energetic va fi dispoibil la vanzare.

Pentru mai multe detalii si vizionari va stau la dispozitie.

An constructie 2020

Suprafata construita 55 mp

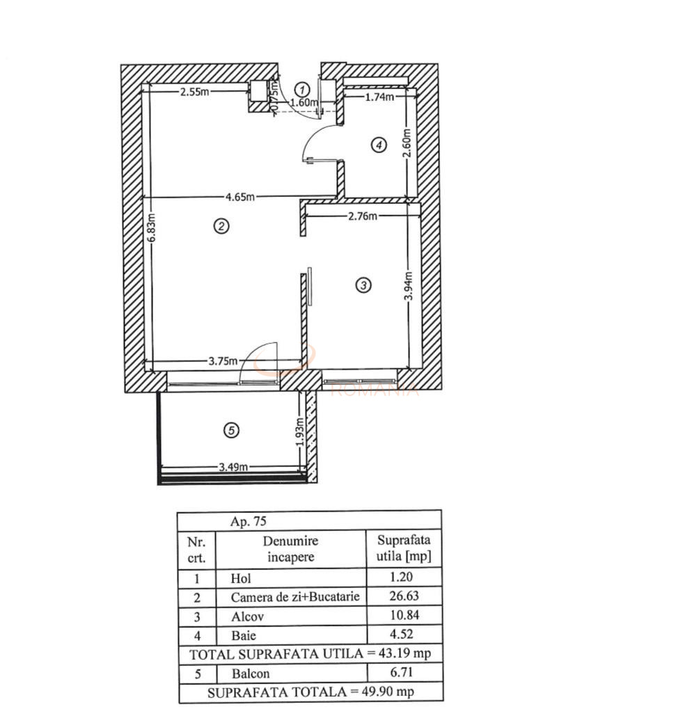
Suprafata utila 43.19 mp

Suprafata terasa 6.71 mp

Regim Inaltime 7 / 10

Etaj 7

Nr. camere 2 camere

Nr. bai 1

Nr. balcoane 0 balcoane

Confort 1

Compartimentare Semidecomandat

Tip constructie In bloc

Status constructie Finalizat

Disponibila incepand cu 2026-03-07

Judet Bucuresti

Oras/ Sector Sector 1

Zona Domenii

Gps lat 44.473906

Gps lng 26.053458

Nr. terase 1

Interfon

Supraveghere 24/7

Internet Wireless

Cablu TV

Supraveghere video

Detector de gaze

Geamuri termopan

Repartitoare

Parchet

Apometre

Gresie

Loc parcare subteran

Faianta

Gaz

Incalzire prin pardoseala

Mobilat

Aer conditionat

Lift

Valoare proprietate (€)

Perioada (ani)

Procent avans (34.500 €)


Suma creditata 195.500

Dobanda 4.9%

Rata lunara 4.834 lei

Broker Imobiliar

Raluca Utica , Consultant imobiliar Vezi toate proprietatile

0317100200

2 camere mobilat Luxuria Residence

Pret vanzare
230.000 €

Telefon Consultant imobiliar
0317100200

Cod: REA1028085

Proprietati similare

Bucuresti, 1 Mai

Apartament, 2 camere

51.94 mp 5 2020

225.000 EUR

Detalii

Bucuresti, 1 Mai, Domenii

2 camere cu loc parcare subteran inclus

60 mp 10 2021

220.000 EUR

Detalii

Bucuresti, 1 Mai, Domenii

2 camere cu loc parcare subteran inclus

60 mp 7 2021

220.000 EUR

Detalii

Bucuresti, 1 Mai, Domenii

2 camere cu loc parcare subteran inclus

60 mp 1 2021

210.000 EUR

Detalii

Bucuresti, 1 Mai, Domenii

Apartament, 2 camere

63 mp 1 1950

250.000 EUR

Detalii

Bucuresti, Herastrau

Apartament, 2 camere

53 mp 4 2025

250.000 EUR

Detalii

Bucuresti, Herastrau

Apartament, 2 camere

54 mp P 2023

210.000 EUR

Detalii

Bucuresti, Aviatiei

Apartament, 2 camere

51 mp P 1985

214.000 EUR

Detalii
Apartamente 2 camere vandute in 1 Mai, Bucuresti Apartamente 2 camere de vanzare in 1 Mai, Bucuresti

Afla primul de cele mai bune oferte
inainte sa ajunga pe piata

Aboneaza-te la newsletter

Aboneaza-te la notificari