Apartament, 4 camere, Bucuresti / 1 Mai / Domenii
Cladirea dateaza din perioada interbelica, este intr-o stare buna (fara risc seismic) si nu necesita interventii structurale.
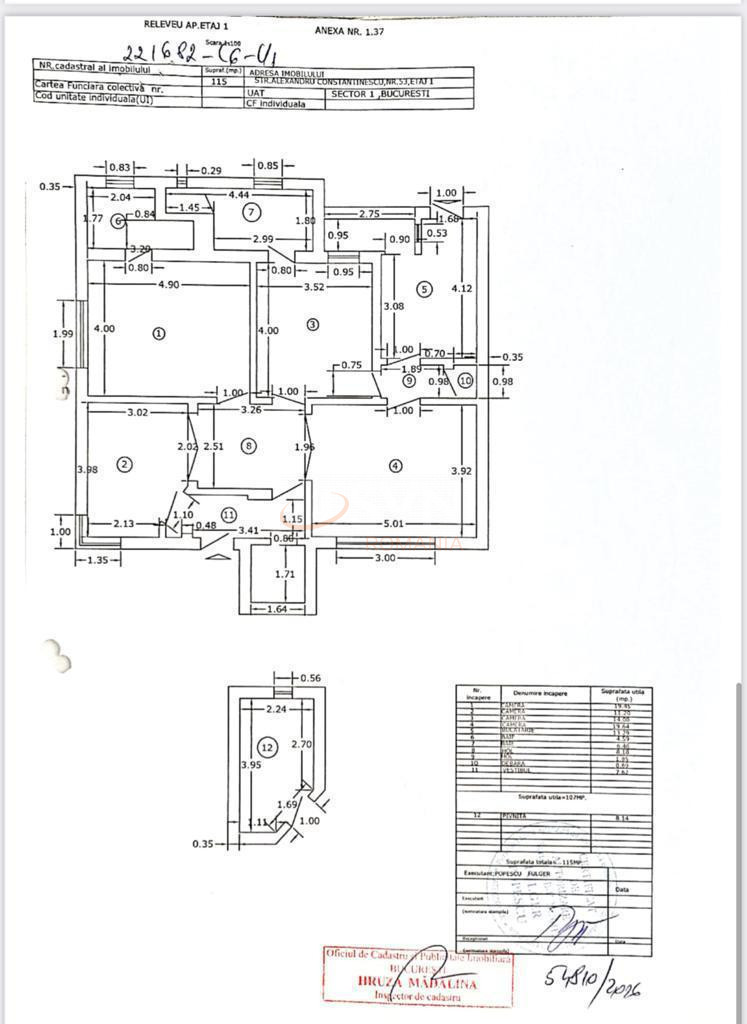
Apartamentul dispune si de o anexa in spatele cladirii, precum si o boxa la demisol.
Incalzirea se face atat prin centrala termica proprie, cat si prin intermediul sobelor care sunt functionale.
Nu dispune de certificat energetic, dar va fi disponibil pana la momentul vanzarii.
Pentru mai multe detalii si vizionari, va rugam contactati brokerul.
Atribute
An constructie 1935
Suprafata construita 130 mp
Suprafata utila 107 mp
Regim Inaltime 1 / 2
Etaj 1
Nr. camere 4 camere
Nr. bai 2
Nr. balcoane 1 balcon
Confort 1
Tip constructie In bloc
Status constructie Finalizat
Disponibila incepand cu 2022-09-30
Judet Bucuresti
Oras/ Sector Sector 1
Zona Domenii
Gps lat 44.467572
Gps lng 26.071086
Facilitati
Cablu TV
Internet prin cablu
Geamuri termopan
Repartitoare
Parchet
Apometre
Boxa
Gresie
Telefon
Faianta
Gaz
Incalzire proprie
WC serviciu
Aer conditionat
APARTAMENT IN VILA DOMENII CASIN
Proprietate vanduta
Ai o proprietate similara? Vinde-o cu noi.
  Vinde apartament  
 
  
  
  
  
  
  
  
  
  
  
  
  
  
  
  
   
   
   
   
   
  
  
   
   
   
   
   
  
  
   
   
   
   
   
  
  
   
   
   
   
   
  
  
   
   
   
   
   
  
  
   
   
   
   
   
  
   
   
   
   
   
  
  
   
   
   
   
  