Dorobanti 4 camere 151.57 mp 4 2010

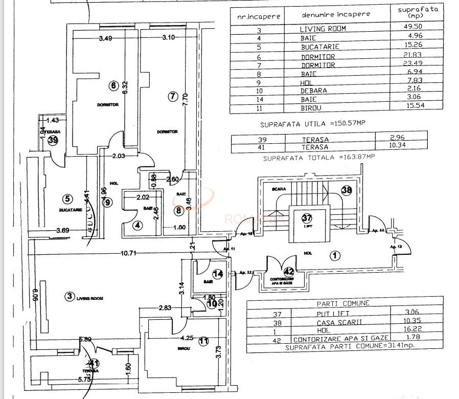
Situat in cartierul exclusivist Dorobanti, acest apartament premium, de patru camere, este o combinatie perfecta de spatiu si confort modern. Cu o suprafata utila de 151,6 mp utili, apartamentul se afla la etajul al 4-lea al unui bloc deosebit, edificat in anul 2010, si ofera o ambianta luminoasa si primitoare datorita suprafetelor vitrate mari.

Livingul impresionant, de 50 mp utili, este spatiul ideal pentru relaxare si socializare, fiind generos si luminat natural. Cele trei dormitoare spatioase, cu suprafete utile de 22, 23 si respectiv 15 metri patrati utili, sunt perfecte pentru odihna si relaxare dupa o zi lunga. Dormitorul matrimonial dispune de o baie proprie, oferind astfel un plus de intimitate si confort.

Bucataria de 15 mp utili, semimobilata, este bine dimensionata si pregatita pentru a fi echipata dupa preferintele noului proprietar. Apartamentul este dotat cu aparate de aer conditionat in fiecare camera, asigurand un climat optim pe tot parcursul anului. Cele trei bai nu dispun de obiecte sanitare, lasand astfel posibilitatea noilor proprietari de a le amenaja conform propriilor gusturi si nevoi.

Imobilul beneficiaza de geamuri termopan cu tamplarie din aluminiu, si de rulouri exterioare, care adauga un plus de confort si intimitate. Incalzirea este asigurata de centrala termica proprie.

Apartamentul se vinde impreuna cu un loc de parcare subteran, disponibil la pretul de 20000 de euro, oferind astfel siguranta pentru automobilul dvs..

Acest apartament din Dorobanti este ideal pentru cei care cauta un spatiu generos, intr-o zona exclusivista a Bucurestiului, cu acces facil la toate facilitatile necesare pentru un stil de viata modern si confortabil.

Va asteptam la vizionare.

An constructie 2010

Suprafata construita 191 mp

Suprafata utila 151.57 mp

Suprafata terasa 13 mp

Regim Inaltime 4 / 6

Etaj 4

Nr. camere 4 camere

Nr. bai 3

Nr. balcoane 0 balcoane

Confort 1

Compartimentare Semidecomandat

Tip constructie In bloc

Status constructie Finalizat

Disponibila incepand cu 2025-07-23

Judet Bucuresti

Oras/ Sector Sector 1

Zona Dorobanti

Gps lat 44.459892

Gps lng 26.094191

Nr. terase 2

Interfon

Curent electric

Cablu TV

Geamuri termopan

Parchet

Gresie

Faianta

Gaz

Incalzire proprie

Calorifere

WC serviciu

Bucatarie mobilata

Lift

Apartament premium 4 camere Dorobanti

Proprietate vanduta

Ai o proprietate similara? Vinde-o cu noi.
Vinde apartament

Cod: REA1020742

Proprietati similare

Bucuresti, Dorobanti

Apartament, 4 camere

170 mp 3 2012

715.000 EUR

Detalii

Bucuresti, Dorobanti, Capitale

Apartament, 4 camere

125 mp 2 1942

675.000 EUR

Detalii

Bucuresti, Aviatorilor

Apartament, 4 camere

135 mp 2 2024

685.000 EUR

Detalii

Bucuresti, Aviatorilor

Apartament, 4 camere

135 mp 2 2022

685.000 EUR

Detalii

Bucuresti, Floreasca

Apartament, 4 camere

155 mp P 2008

725.000 EUR

Detalii

Bucuresti, Floreasca

Apartament, 4 camere

121 mp 5 2022

635.000 EUR

Detalii

Bucuresti, Herastrau

4 camere cu loc parcare subteran inclus

147.04 mp 2 2009

750.000 EUR

Detalii

Bucuresti, Floreasca

Apartament, 4 camere

203 mp 3 2023

750.000 EUR

Detalii
Apartamente 4 camere vandute in Dorobanti, Bucuresti Apartamente 4 camere de vanzare in Dorobanti, Bucuresti

Afla primul de cele mai bune oferte
inainte sa ajunga pe piata

Aboneaza-te la newsletter

Aboneaza-te la notificari