Dorobanti 4 camere 97 mp 3 1980

SVN Romania va propune spre vanzare un apartament de 4 camere situat pe Calea Dorobantilor

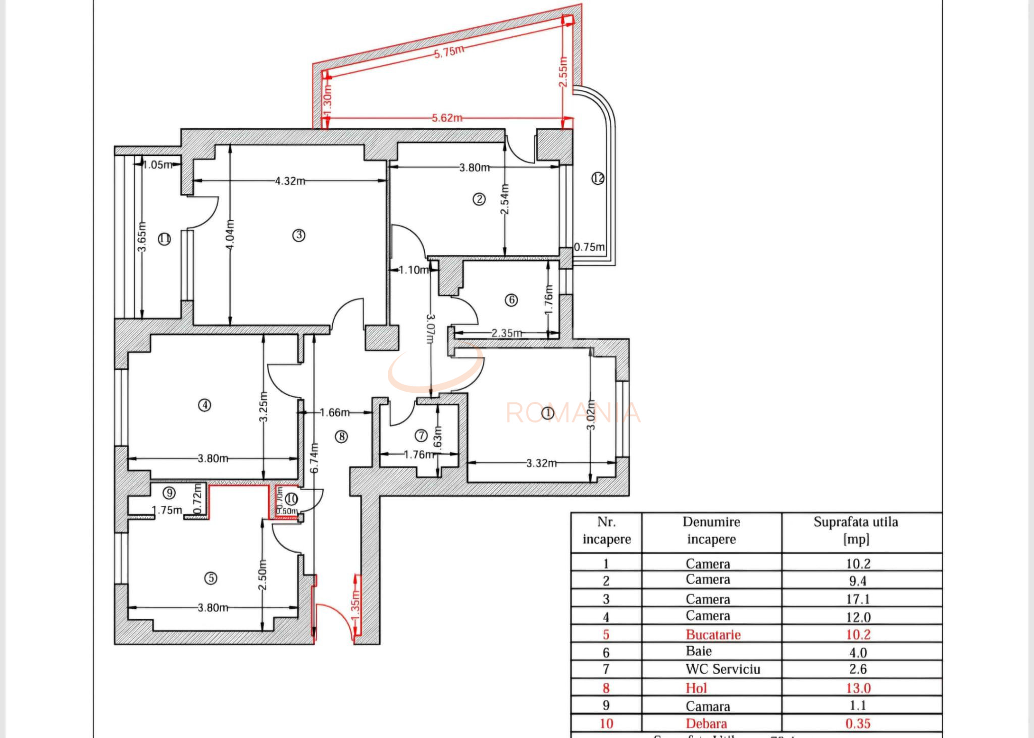
Locuinta este situata la etajul 3/10, semidecomandat, cu o suprafata utila de 97 mp, 2 balcoane generoase si o terasa

Apartamentul a fost reabilitat in anul 2014 , necesita renovare completa

Este situat intr-un imobil fara risc seismic, ideal pentru investitie

Zona beneficiaza de acces rapid la supermarketuri, cafenele, restaurante si diverse servicii, fiind una dintre cele mai apreciate artere din Sectorul 1. Proprietatea este bine conectata la transportul public, cu statia de metrou Piata Romana la aproximativ 10 minute de mers pietonal, precum si multiple linii de autobuz si troleibuz in proximitate. In apropiere se regasesc institutii de invatamant, clinici, sedii de birouri si zone verzi, oferind un echilibru ideal intre rezidential si urban activ.

Pentru mai multe informatii sau pentru programarea vizionarilor, contactul meu va sta la dispozitie

***Vizionarea acestui imobil se face doar în baza semnarii unui acord de vizionare conform codului civil, art 2.096-2.102.

An constructie 1980

Suprafata construita 111.55 mp

Suprafata utila 97 mp

Suprafata terasa 13 mp

Regim Inaltime 3 / 10

Etaj 3

Nr. camere 4 camere

Nr. bai 1

Nr. balcoane 2 balcoane

Confort 1

Compartimentare Semidecomandat

Tip constructie In bloc

Status constructie Finalizat

Disponibila incepand cu 2026-02-19

Judet Bucuresti

Oras/ Sector Sector 1

Zona Dorobanti

Gps lat 44.448475

Gps lng 26.099569

Nr. terase 1

Cablu TV

Curent electric

Internet prin fibra optica

Internet Wireless

Interfon

Supraveghere video

Geamuri termopan

Balcon inchis

Parchet

Apometre

Gresie

Faianta

Gaz

Loc parcare exterior

Mobilat

Bucatarie mobilata

Valoare proprietate (€)

Perioada (ani)

Procent avans (43.950 €)


Suma creditata 249.050

Dobanda 4.9%

Rata lunara 6.158 lei

Broker Imobiliar

Ramona Badea , Consultant imobiliar Vezi toate proprietatile

0317100200

Apartament 4 camere I Dorobanti I Facultatea de Stiinte Economice I De vanzare

Pret vanzare
293.000 €

Telefon Consultant imobiliar
0317100200

Cod: REA1027721

Proprietati similare

Bucuresti, Sector 1, P-ta Romana

Apartament, 4 camere

97 mp 3 1982

299.999 EUR

Detalii

Bucuresti, Sector 1, P-ta Romana

Apartament, 4 camere

108 mp P 1928

310.000 EUR

Detalii

Bucuresti, Dorobanti

Apartament, 4 camere

78 mp 2 1976

298.000 EUR

Detalii

Bucuresti, Dorobanti

Apartament, 4 camere

80.9 mp 4 1976

269.000 EUR

Detalii

Bucuresti, Ultracentral, Cismigiu

Apartament, 4 camere

160 mp 5 1932

310.000 EUR

Detalii

Bucuresti, Colentina, Bucur Obor

Apartament, 4 camere

127.8 mp 10 2026

315.200 EUR

Detalii

Bucuresti, Colentina, Bucur Obor

Apartament, 4 camere

114.3 mp 10 2025

284.480 EUR

Detalii

Bucuresti, Colentina, Bucur Obor

Apartament, 4 camere

95.6 mp 10 2025

266.825 EUR

Detalii
Apartamente 4 camere vandute in Dorobanti, Bucuresti Apartamente 4 camere de vanzare in Dorobanti, Bucuresti

Afla primul de cele mai bune oferte
inainte sa ajunga pe piata

Aboneaza-te la newsletter

Aboneaza-te la notificari