Dorobanti 6 camere 268.83 mp 3 2007

SVN Romania va propune spre vanzare un apartament de 6 camere, tip triplex, situat in zona Dorobanti - Floreasca, una dintre cele mai apreciate zone rezidentiale ale Bucurestiului.

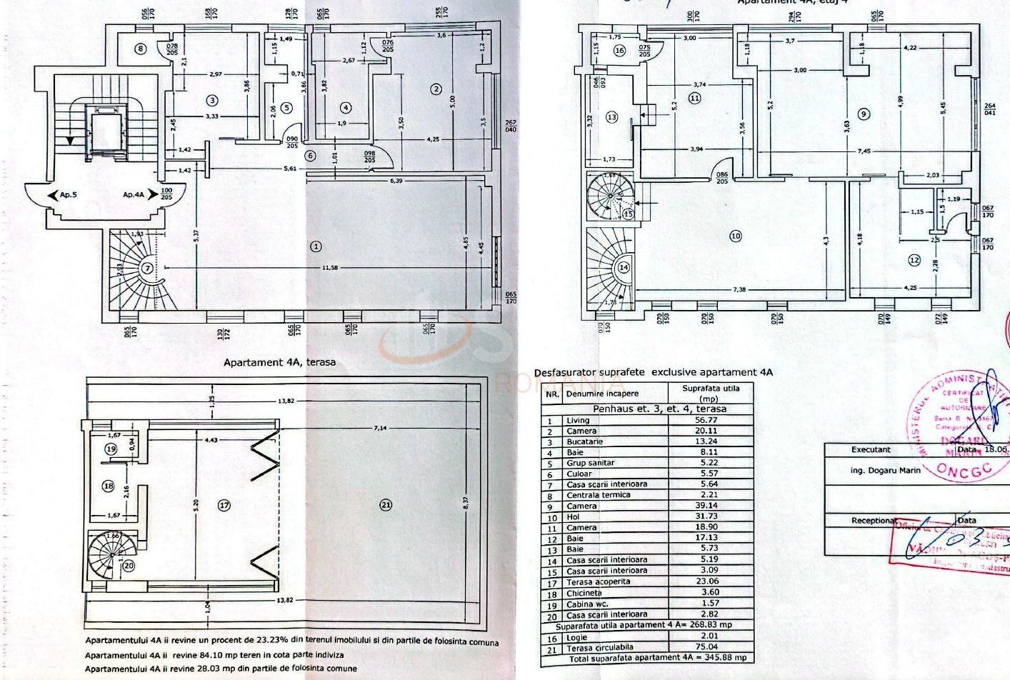
Apartamentul este dispus pe etajele 3–5/5 ale unei cladiri boutique construite in anul 2007. Proprietatea are o compartimentare semidecomandata, o suprafata utila de 268.83 mp, un balcon de 2 mp si o terasa generoasa cu o suprafata de 75 mp.

Terasa de 75 mp reprezinta unul dintre punctele forte ale proprietatii, fiind un spatiu ideal pentru petrecerea timpului liber alaturi de familie si prieteni, oferind totodata posibilitatea de a admira atat rasaritul, cat si apusul.

Cladirea este de tip boutique si gazduieste doar 6 apartamente, beneficiind de lift, acces securizat si spatii comerciale la parter.

Apartamentul este dispus pe trei niveluri si include 5 bai, dintre care 3 bai complete si 2 bai de serviciu. Proprietatea dispune de centrala termica proprie si boiler pentru apa calda.

Finisajele includ tamplarie din lemn cu geam termopan, ferestre Velux si parchet din lemn masiv de 3 cm. Fiecare incapere este dotata cu unitate de aer conditionat, acestea fiind instalate in anul 2025.

Locatia in care este situat apartamentul este una dintre cele mai apreciate și exclusiviste strazi din Dorobanți, o zonă recunoscută pentru standardul ridicat al locuirii și pentru comunitatea selectă de rezidenți.

La doar câteva minute de mers se află Piața Dorobanți, una dintre cele mai vibrante zone ale Bucureștiului, cunoscută pentru restaurantele, cafenelele și bistrourile sale premium. În proximitate se regăsesc numeroase locații apreciate pentru gastronomie și lifestyle, frecventate de antreprenori, expați și profesioniști din mediul corporate.

Zona beneficiază de acces rapid către unele dintre cele mai importante artere ale orașului, precum Calea Dorobanți, Calea Floreasca sau Ștefan cel Mare, ceea ce permite conexiuni rapide către Piața Victoriei, zona Aviatorilor sau centrul orașului.

Pentru mai multe informatii sau pentru programarea vizionarilor, contactul meu va sta la dispozitie.

***Vizionarea acestui imobil se face doar în baza semnarii unui acord de vizionare conform codului civil, art 2.096-2.102.

An constructie 2007

Suprafata construita 397.96 mp

Suprafata utila 268.83 mp

Suprafata terasa 77.05

Regim Inaltime 3 / 5

Etaj 3

Nr. camere 6 camere

Nr. bai 5

Nr. balcoane 1 balcon

Confort Lux

Compartimentare Semidecomandat

Tip constructie In bloc

Status constructie Finalizat

Disponibila incepand cu 2026-03-12

Judet Bucuresti

Oras/ Sector Sector 1

Zona Dorobanti

Gps lat 44.460872

Gps lng 26.098135

Nr. terase 1

Interfon

Internet prin fibra optica

Curent electric

Cablu TV

Supraveghere video

Detector de gaze

Geamuri termopan

Repartitoare

Parchet

Apometre

Gresie

Faianta

Gaz

Calorifere

Incalzire proprie

WC serviciu

Aer conditionat

Bloc reabiliat termic

Lift

Valoare proprietate (€)

Perioada (ani)

Procent avans (148.500 €)


Suma creditata 841.500

Dobanda 4.9%

Rata lunara 20.805 lei

Broker Imobiliar

Cristian Vasile , Consultant imobiliar Vezi toate proprietatile

0317100200

Triplex - 6 camere I Terasa 75 mp I View Superb I De vanzare

Pret vanzare
990.000 €

Telefon Consultant imobiliar
0317100200

Cod: REA0046801
Apartamente 6 camere vandute in Dorobanti, Bucuresti Apartamente 6 camere de vanzare in Dorobanti, Bucuresti

Afla primul de cele mai bune oferte
inainte sa ajunga pe piata

Aboneaza-te la newsletter

Aboneaza-te la notificari