Herastrau 2 camere 104.03 mp P 2008

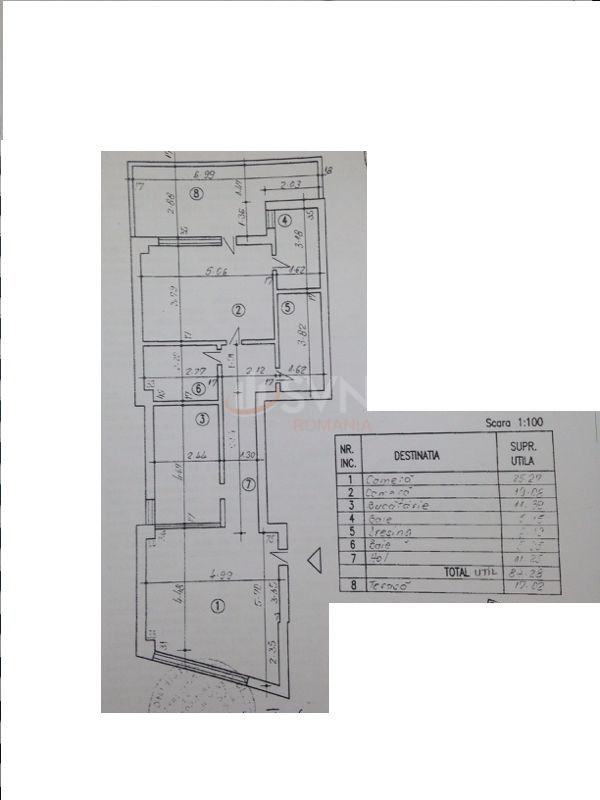
Apartament de 2 camere situat pe Soseaua Nordului, cu o suprafata utila de 104 mp si o suprafata construita de 130 mp. Apartamentul se afla la parterul unui bloc de 5 etaje, construit in anul 2008.

Acest apartament spatios ofera un living generos, cu multa lumina naturala, perfect pentru relaxare sau socializare. Dormitorul principal este spatios, oferind un spatiu confortabil si linistit pentru odihna, avand iesire pe terasa si acces la un dressing. Bucataria este complet echipata si utilata, fiind ideala pentru prepararea mesei, iar baia este moderna si functionala.

Apartamentul beneficiaza de centrala proprie, asigurand astfel confortul termic pe tot parcursul anului, si de aer conditionat, pentru zilele calde de vara. Finisajele sunt de calitate standard, oferind un ambient placut si modern.

Imobilul se vinde complet mobilat si utilat, astfel incat viitorii proprietari se pot muta imediat fara a mai face investitii suplimentare. Mobilierul este modern si functional, adaptat nevoilor unei familii sau ale unui cuplu.

Situat intr-o zona foarte buna, cu acces facil la mijloacele de transport in comun, magazine, scoli si alte facilitati, acest apartament reprezinta o oportunitate excelenta pentru cei care cauta un loc confortabil si practic de locuit.

An constructie 2008

Suprafata construita 130 mp

Suprafata utila 104.03 mp

Suprafata terasa 17.02 mp

Regim Inaltime P / 5

Etaj P

Nr. camere 2 camere

Nr. bai 2

Nr. balcoane 0 balcoane

Confort 1

Compartimentare Semidecomandat

Tip constructie In bloc

Status constructie Finalizat

Disponibila incepand cu 2024-07-25

Judet Bucuresti

Oras/ Sector Sector 1

Zona Herastrau

Gps lat 44.482797

Gps lng 26.087133

Nr. terase 1

Internet prin fibra optica

Internet Wireless

Interfon

Cablu TV

Curent electric

Geamuri termopan

Parchet

Apometre

Gresie

Telefon

Faianta

Gaz

Incalzire proprie

WC serviciu

Mobilat

Aer conditionat

Bucatarie mobilata

Apartament spatios de 2 camere cu dressing si terasa pe Soseaua Nordului

Proprietate vanduta

Ai o proprietate similara? Vinde-o cu noi.
Vinde apartament

Cod: REA0098830

Proprietati similare

Bucuresti, Herastrau

Apartament, 2 camere

60 mp 2 2022

281.510 EUR

Detalii

Bucuresti, Herastrau

Apartament, 2 camere

58 mp 2 2020

281.500 EUR

Detalii

Bucuresti, Herastrau

2 camere cu loc parcare subteran inclus

65.7 mp 1 2022

290.000 EUR

Detalii

Bucuresti, Herastrau

Apartament, 2 camere

73 mp 2 2012

289.500 EUR

Detalii

Bucuresti, Herastrau

Apartament, 2 camere

54 mp 4 2019

305.000 EUR

Detalii

Bucuresti, Herastrau

2 camere cu loc parcare subteran inclus

70 mp 2 2010

267.900 EUR

Detalii

Bucuresti, Herastrau

Apartament, 2 camere

58.8 mp P 2020

260.000 EUR

Detalii

Bucuresti, Floreasca

Apartament, 2 camere

51.3 mp 7 2024

265.000 EUR

Detalii
Apartamente 2 camere vandute in Herastrau, Bucuresti Apartamente 2 camere de vanzare in Herastrau, Bucuresti

Afla primul de cele mai bune oferte
inainte sa ajunga pe piata

Aboneaza-te la newsletter

Aboneaza-te la notificari