Herastrau 2 camere 107 mp 1 2010

SVN Romania va propune spre vanzare un apartament spatios, cu o suprafata utila de 107 m2, pozitionat intr-una dintre cele mai exclusiviste zone ale capitalei.

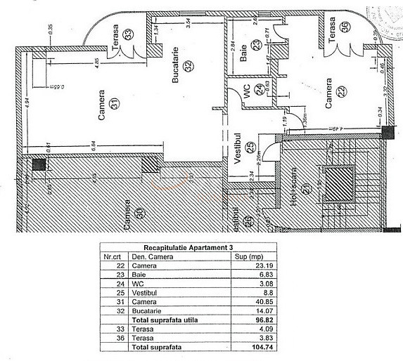
Spatiul generos al apartamentului se datoreaza unei impartiri decomandate astfel:
- living si bucatarie open space
-grup sanitar
- master bedroom
- baie
- hol
- 2 balcoane

Imobilul se afla intr-un bloc construit in anul 2007, geamurile fiind dotate cu rulouri actionate electric si plase de tantari. Camerele au parchet masiv, plinta inalta din lemn, iar baile sunt placate cu ceramica de cea mai inalta calitate.

Proprietatea dispune si de un loc de parcare subteran.

In proximitatea proprietatii se afla Parcul Herastrau / Regele Mihai I (2 minute de mers pe jos), restaurante (Il calcio-2 minute pe jos; Nuba-5 minute pe jos, Zen Sushi- 3 minute cu masina), magazine alimentare (Mega Image Shop&Go-1 minut de mers pe jos, Lidl si Mega Image Concept Store-10 minute de mers pe jos), malluri (Baneasa Shopping City-10 minute cu masina, Promenada Mall-5 minute cu masina); mijloace de transport in comun (autobuze STB-5 minute pe jos, metrou-15 minute pe jos), scoli, gradinite, zona de birouri, sali de fitness etc.

Atat pozitionarea foarte buna, cat si suprafata apartamentului mai mult decat generoasa recomanda aceasa proprietate drept o foarte buna investitie!



Pentru mai multe detalii/informatii sau pentru stabilirea unei vizionari nu ezitati sa ma contactati!!

An constructie 2010

Suprafata construita 120 mp

Suprafata utila 107 mp

Regim Inaltime 1 / 5

Etaj 1

Nr. camere 2 camere

Nr. bai 2

Nr. balcoane 2 balcoane

Confort Lux

Compartimentare Decomandat

Tip constructie In bloc

Status constructie Finalizat

Disponibila incepand cu 2024-04-17

Judet Bucuresti

Oras/ Sector Sector 1

Zona Herastrau

Gps lat 44.483503

Gps lng 26.089196

Geamuri termopan

Parchet

Apometre

Gresie

Loc parcare subteran

Faianta

Gaz

Incalzire proprie

WC serviciu

Mobilat

Aer conditionat

Bucatarie mobilata

Supraveghere 24/7

Detector de gaze

Internet prin Dial-Up

Internet prin fibra optica

Curent electric

Supraveghere video

Sistem de alarma

Interfon

Internet Wireless

Internet prin cablu

Cablu TV

Repartitoare

Telefon

Loc parcare exterior

Lift

Apartament 2 camere spatios Herastrau l loc parcare subteran

Proprietate vanduta

Ai o proprietate similara? Vinde-o cu noi.
Vinde apartament

Cod: REA1005133

Proprietati similare

Bucuresti, Herastrau

Apartament, 2 camere

73 mp 2 2012

289.500 EUR

Detalii

Bucuresti, Herastrau

Apartament, 2 camere

65 mp 3 2021

325.000 EUR

Detalii

Bucuresti, Herastrau

2 camere cu loc parcare subteran inclus

65.7 mp 1 2022

290.000 EUR

Detalii

Bucuresti, Herastrau

Apartament, 2 camere

58 mp 2 2020

281.500 EUR

Detalii

Bucuresti, Herastrau

Apartament, 2 camere

60 mp 2 2022

281.510 EUR

Detalii

Bucuresti, Herastrau

Apartament, 2 camere

54 mp 4 2019

305.000 EUR

Detalii

Bucuresti, Aviatiei

Apartament, 2 camere

60 mp 1 2022

274.000 EUR

Detalii

Bucuresti, Floreasca, Barbu Vacarescu

Apartament, 2 camere

63.96 mp 9 2025

308.000 EUR

Detalii
Apartamente 2 camere vandute in Herastrau, Bucuresti Apartamente 2 camere de vanzare in Herastrau, Bucuresti

Afla primul de cele mai bune oferte
inainte sa ajunga pe piata

Aboneaza-te la newsletter

Aboneaza-te la notificari