Herastrau 4 camere 95.2 mp 3 2005

SVN Romania va prezinta o oportunitate unica de achizitie: un apartament de 4 camere situat intr-o cladire eleganta construita in anul 2005 in zona lacului Herastrau.

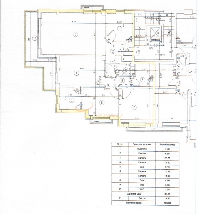
Apartamentul se afla la etajul 3, acest apartament generos are o suprafata totala de 106mp si este decomandat.

Cu o compartimentare bine gandita, spatiul ofera un living luminos si primitor cu o suprafata utila de 28.70 mp. Cele trei dormitoare spatioase, cu suprafete de 14.60mp, 10.35mp respectiv 11.90 mp, sunt locurile ideale pentru odihna si relaxare. Apartamentul dispune de doua bai, dotate cu geamuri de aerisire, aducand confortul si functionalitatea necesara si de o bucatarie cu o suprafata de 7.40mp.

Pe langa toate acestea, apartamentul dispune de un loc de parcare in garajul subteran, oferindu-va comoditate si siguranta pentru masina dumneavoastra.

Pentru mai multe detalii si vizionari nu ezitati sa ma contactati.

An constructie 2005

Suprafata construita 122.82 mp

Suprafata utila 95.2 mp

Suprafata terasa 11.6 mp

Regim Inaltime 3 / 5

Etaj 3

Nr. camere 4 camere

Nr. bai 1

Nr. balcoane 1 balcon

Confort 1

Compartimentare Decomandat

Tip constructie In bloc

Status constructie Finalizat

Disponibila incepand cu 2024-05-08

Judet Bucuresti

Oras/ Sector Sector 1

Zona Herastrau

Gps lat 44.478239

Gps lng 26.089103

Internet prin cablu

Curent electric

Supraveghere video

Sistem de alarma

Interfon

Internet Wireless

Internet prin fibra optica

Geamuri termopan

Parchet

Apometre

Gresie

Loc parcare subteran

Faianta

Gaz

Calorifere

Mobilat

Aer conditionat

Bucatarie mobilata

Apartament 4 camere Parcul Herastrau

Proprietate vanduta

Ai o proprietate similara? Vinde-o cu noi.
Vinde apartament

Cod: REA1019629

Proprietati similare

Bucuresti, Herastrau

4 camere cu loc parcare subteran inclus

105 mp 4 2018

429.000 EUR

Detalii

Bucuresti, Aviatiei

Apartament, 4 camere

122.5 mp 2 2024

465.000 EUR

Detalii

Bucuresti, Aviatiei

Apartament, 4 camere

125 mp 4 2023

469.900 EUR

Detalii

Bucuresti, Herastrau

Apartament, 4 camere

120 mp 4 2022

445.500 EUR

Detalii

Bucuresti, Aviatiei

Apartament, 4 camere

132.05 mp 3 2025

420.000 EUR

Detalii

Bucuresti, Floreasca

Apartament, 4 camere

114 mp 3 2024

449.000 EUR

Detalii

Bucuresti, Baneasa

Apartament, 4 camere

153 mp 9 2020

399.900 EUR

Detalii

Bucuresti, Floreasca, Barbu Vacarescu

Apartament, 4 camere

120.6 mp 10 2026

394.350 EUR

Detalii
Apartamente 4 camere vandute in Herastrau, Bucuresti Apartamente 4 camere de vanzare in Herastrau, Bucuresti

Afla primul de cele mai bune oferte
inainte sa ajunga pe piata

Aboneaza-te la newsletter

Aboneaza-te la notificari