Kiseleff 4 camere 143.86 mp P 2013

SVN Romania va prezinta la vanzare un apartament cu 4 camere situat in zona Aviatorilor- Kiseleff.
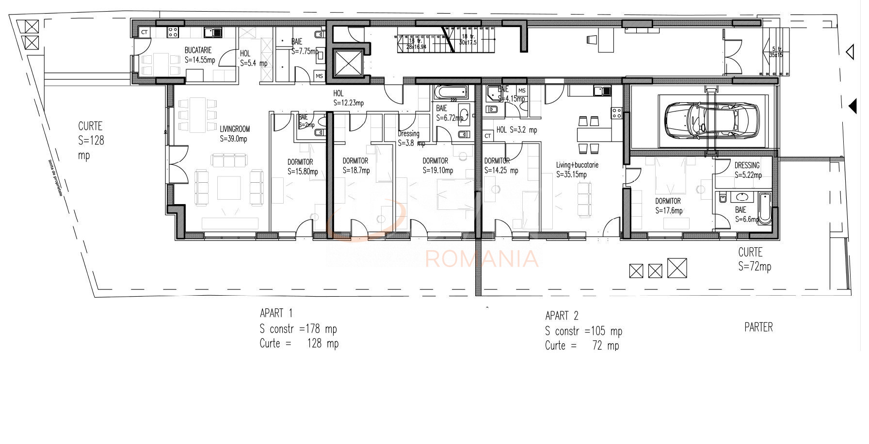
Apartamentul se afla la parterul unui bloc finalizat, in anul 2013, are o suprafata utila de 144 mp, la care se adauga o curte de 127 mp.
Compartimentarea este de tip decomandat, suprafatele camerelor fiind urmatoarele:
- Living: 39 mp
- Dormitor matrimonial: 19,10 mp
- Dormitor 2: 18,7 mp
- Dormitor 3: 15,8 mp
- Bucatarie: 14, 4 mp
- Baie matrimoniala: 6,6 mp
- Baie: 7,64 mp
- Grup sanitar: 2,09 mp
- Hol principal: 11,83 mp
- Hol secundar: 5,22 mp
- Dressing: 3,48 mp
- Terasa: 126,43 mp

Apartamentul a fost renovat de curand, mobilierul de bucatarie fiind unul nou

Suplimentar se pot achizitiona si 2 locuri de parcare( 25.000E/loc), dar si o boxa.

Terasa este orientata in lateral si pe spate, fiind ferita de zgomotul strazii.

Blocul se afla intre 2 parcuri importante ale Capitalei, respectiv Kiseleff( 2 min) si Herastrau(5 min).

Nu detinem informatii despre certificatul energetic al apartamentului.

An constructie 2013

Suprafata construita 303.99 mp

Suprafata utila 143.86 mp

Suprafata terasa 126.43

Regim Inaltime P / 5

Etaj P

Nr. camere 4 camere

Nr. bai 3

Nr. balcoane 0 balcoane

Confort 1

Tip constructie In bloc

Status constructie Finalizat

Disponibila incepand cu 2022-03-22

Judet Bucuresti

Oras/ Sector Sector 1

Zona Kiseleff

Gps lat 44.459575

Gps lng 26.083600

Nr. terase 1

Geamuri termopan

Parchet

Apometre

Gresie

Faianta

Gaz

Incalzire proprie

WC serviciu

Aer conditionat

Bucatarie mobilata

Bloc reabiliat termic

Apartament Aviatorilor - Kiseleff - curte 127 mp

Proprietate vanduta

Ai o proprietate similara? Vinde-o cu noi.
Vinde apartament

Cod: REA0097411

Proprietati similare

Bucuresti, Aviatorilor

Apartament, 4 camere

135 mp 2 2024

685.000 EUR

Detalii

Bucuresti, Aviatorilor

Apartament, 4 camere

135 mp 2 2022

685.000 EUR

Detalii

Bucuresti, Dorobanti

Apartament, 4 camere

170 mp 3 2012

715.000 EUR

Detalii

Bucuresti, Floreasca

Apartament, 4 camere

155 mp P 2008

725.000 EUR

Detalii

Bucuresti, Ultracentral, Stirbei Voda

Apartament, 4 camere

117.2 mp 6 2025

625.000 EUR

Detalii

Bucuresti, Floreasca

Apartament, 4 camere

121 mp 5 2022

635.000 EUR

Detalii

Bucuresti, Floreasca

Apartament, 4 camere

115 mp 8 2022

595.000 EUR

Detalii

Bucuresti, Ultracentral, Batistei

Apartament, 4 camere

163 mp 3 2005

600.000 EUR

Detalii
Apartamente 4 camere vandute in Kiseleff, Bucuresti Apartamente 4 camere de vanzare in Kiseleff, Bucuresti

Afla primul de cele mai bune oferte
inainte sa ajunga pe piata

Aboneaza-te la newsletter

Aboneaza-te la notificari