Kiseleff 4 camere 147 mp 3 2004

Avem placerea de a va oferi spre vanzare un apartament superb cu 4 camere situat la etajul 3 din 4 al unui imobil construit in anul 2004, in zona Arcul de Triumf- Marasti.

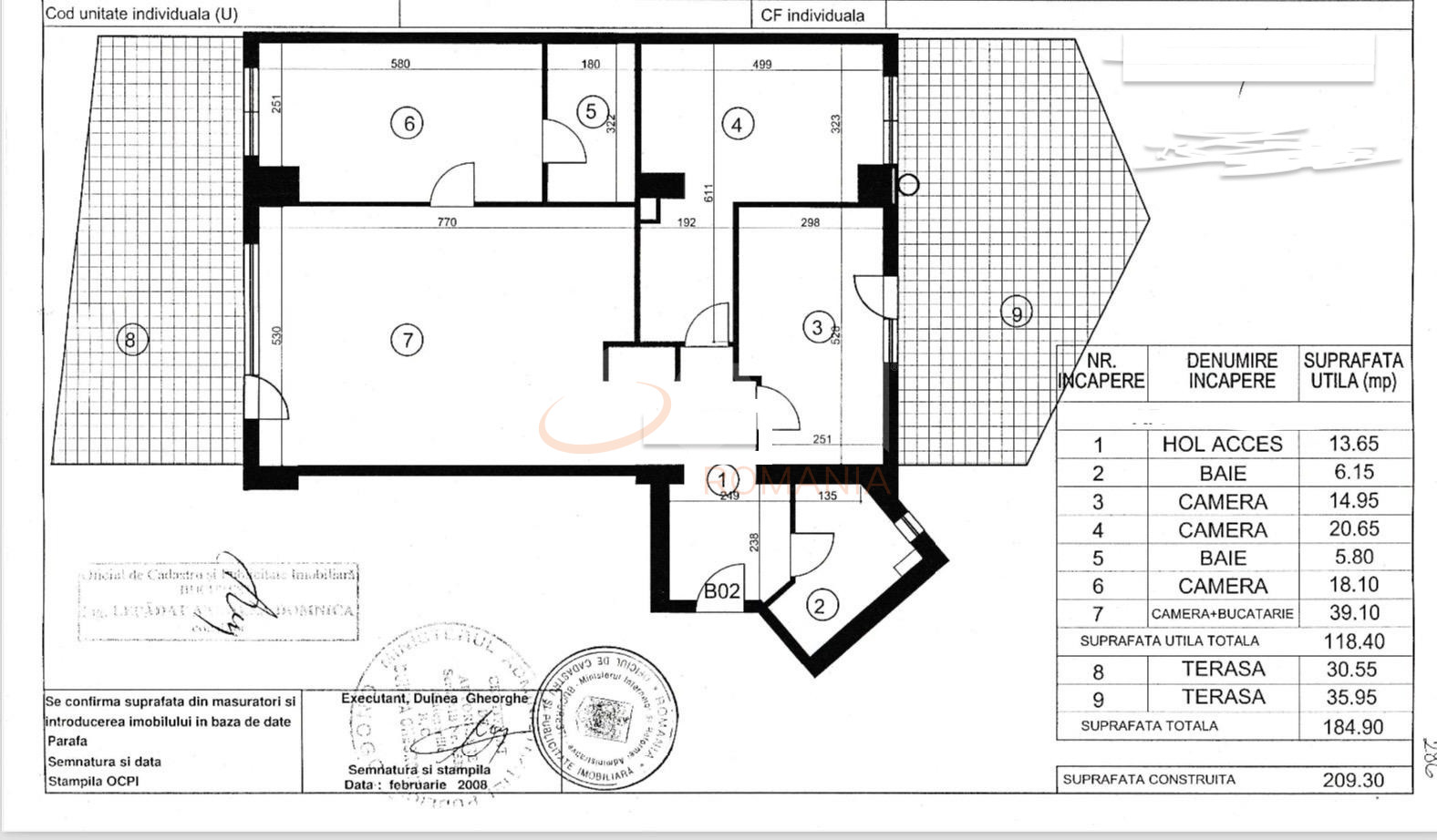
Apartamentul dispune de compartimentare semidecomandata si este format din living generos, 3 camere amenajate cu birouri, 3 bai, bucatarie inchisa, 2 logii, toate insumand suprafata utila totala de 150 mp.

Apartamentul a fost renovat integral cu finisaje de calitate superioara, parchet masiv, gresie, faianta, aer conditionat, mobilier birou , bucatarie complet mobilata si utilata.

Este o proprietate ideala atat pentru sediu firma , cat si pentru locuinta.

Imobilul nu are lift.

Amplasamentul este de exceptie, la doar cateva minute de metrou Aviatorilor, parcul Kiseleff, Arcul de Triumf, mijloace de transport in comun , restaurante, in imediata apropiere.

In pretul apartamentului este inclus un loc de parcare exterior.

Certificatul energetic va fi disponibil la vanzare.

Pentru mai multe detalii si vizionari va stau la dispozitie.

An constructie 2004

Suprafata construita 165 mp

Suprafata utila 147 mp

Suprafata terasa 5.4 mp

Regim Inaltime 3 / 4

Etaj 3

Nr. camere 4 camere

Nr. bai 3

Nr. balcoane 2 balcoane

Confort 1

Compartimentare Decomandat

Tip constructie Bloc

Status constructie Finalizat

Disponibila incepand cu 2025-11-18

Judet Bucuresti

Oras/ Sector Sector 1

Zona Kiseleff

Gps lat 44.465460

Gps lng 26.075925

Internet Wireless

Detector de gaze

Cablu TV

Interfon

Supraveghere 24/7

Curent electric

Geamuri termopan

Repartitoare

Parchet

Apometre

Gresie

Faianta

Gaz

Loc parcare exterior

Calorifere

Incalzire proprie

WC serviciu

Mobilat

Aer conditionat

Bucatarie mobilata

Valoare proprietate (€)

Perioada (ani)

Procent avans (74.985 €)


Suma creditata 424.915

Dobanda 4.9%

Rata lunara 10.506 lei

Broker Imobiliar

Raluca Utica , Consultant imobiliar Vezi toate proprietatile

0317100200

Apartament superb 4 camere bloc 2004 zona Arcul de Triumf- Marasti

Pret vanzare
499.900 €

Telefon Consultant imobiliar
0317100200

Cod: REA1007059

Proprietati similare

Bucuresti, Herastrau

4 camere cu loc parcare subteran inclus

108 mp 2 2005

505.000 EUR

Detalii

Bucuresti, Ultracentral, Victoriei

Apartament, 4 camere

110 mp P 2020

500.000 EUR

Detalii

Bucuresti, 1 Mai, Domenii

Apartament, 4 camere

112 mp 11 2020

500.000 EUR

Detalii

Bucuresti, Sector 1, P-ta Victoriei

4 camere cu loc parcare exterior inclus

138 mp 5 1941

549.000 EUR

Detalii

Bucuresti, Ultracentral, Victoriei

Apartament, 4 camere

105.5 mp P 2009

530.000 EUR

Detalii

Bucuresti, Herastrau, Soseaua Nordului

4 camere cu loc parcare exterior inclus

119.4 mp 5 2020

535.000 EUR

Detalii

Bucuresti, Herastrau, Nordului

4 camere cu loc parcare exterior inclus

124.9 mp 5 2020

535.000 EUR

Detalii

Bucuresti, Ultracentral, Calea Victoriei

Apartament, 4 camere

110.56 mp 1 1940

490.000 EUR

Detalii
Apartamente 4 camere vandute in Kiseleff, Bucuresti Apartamente 4 camere de vanzare in Kiseleff, Bucuresti

Afla primul de cele mai bune oferte
inainte sa ajunga pe piata

Aboneaza-te la newsletter

Aboneaza-te la notificari