Magheru 2 camere 51 mp 3 1959

SVN va propune spre vanzare un apartament cu 2 camere situat pe Bulevardul Magheru.

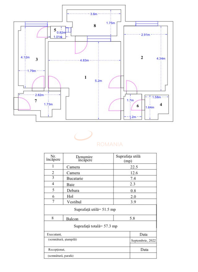
Apartamentul este situat la etajul 3/7.Cu o suprafata utila de 51.5 mp este compartimentat astfel:

-camera 22.5 mp
-camera 12.6 mp
-bucatarie 7.4 mp
-baie 2.3 mp
-debara 0.8 mp
-hol 2.0 mp
-vestibul 3.9 mp
-balcon 5.8 mp

Apartamentul este situat pe partea din spate a imobilului, beneficiind de o orientare estica si de un nivel ridicat de liniste, ferit de zgomotul stradal.

Pozitionarea ultracentrala il face potrivit atat pentru investitie, in vederea inchirierii in regim hotelier, cat si pentru locuinta proprie, avand acces facil catre principalele puncte de interes ale orasului.

Proprietatea necesita renovare, oferind astfel posibilitatea amenajarii si personalizarii conform preferintelor viitorului proprietar.

Imobilul este incadrat in clasa de risc seismic III, fiind eligibil pentru achizitie prin credit.

Pentru detalii sau vizionari nu ezitati sa ne contactati!

An constructie 1959

Suprafata construita 57 mp

Suprafata utila 51 mp

Suprafata terasa 5.8 mp

Regim Inaltime 3 / 7

Etaj 3

Nr. camere 2 camere

Nr. bai 1

Nr. balcoane 1 balcon

Confort 1

Compartimentare Semidecomandat

Tip constructie Bloc

Status constructie Finalizat

Disponibila incepand cu 2026-04-16

Judet Bucuresti

Oras/ Sector Sector 1

Zona Magheru

Gps lat 44.443429

Gps lng 26.098549

Seismic risk 8

Cablu TV

Interfon

Geamuri termopan

Parchet

Gresie

Telefon

Faianta

Gaz

Calorifere

Mobilat

Fara imbunatatiri

Bucatarie mobilata

Lift

Valoare proprietate (€)

Perioada (ani)

Procent avans (18.375 €)


Suma creditata 104.125

Dobanda 4.9%

Rata lunara 2.575 lei

Broker Imobiliar

Iustina Dragu , Consultant imobiliar Vezi toate proprietatile

0317100200

Apartament 2 camere Magheru

Pret vanzare
122.500 €

Telefon Consultant imobiliar
0317100200

Cod: REA1019075

Proprietati similare

Bucuresti, Sector 1, P-ta Amzei

Apartament, 2 camere

42.43 mp 8 1960

134.000 EUR

Detalii

Bucuresti, Sector 1, P-ta Romana

Apartament, 2 camere

40 mp 2 1959

130.000 EUR

Detalii

Bucuresti, Sector 1, P-ta Romana

Apartament, 2 camere

43.76 mp 2 1960

120.000 EUR

Detalii

Bucuresti, Sector 1, P-ta Universitatii

Apartament, 2 camere

45 mp 6 1960

130.000 EUR

Detalii

Bucuresti, Ultracentral, Sala Palatului

Apartament, 2 camere

44 mp 1 1961

130.000 EUR

Detalii

Bucuresti, Sector 1, P-ta Universitatii

Apartament, 2 camere

46.96 mp 1 1962

129.000 EUR

Detalii

Bucuresti, Ultracentral, Cismigiu

Apartament, 2 camere

42.22 mp 5 1960

124.000 EUR

Detalii

Bucuresti, Ultracentral, Cismigiu

Apartament, 2 camere

36 mp 3 1960

130.000 EUR

Detalii
Apartamente 2 camere vandute in Ultracentral, Bucuresti Apartamente 2 camere de vanzare in Ultracentral, Bucuresti

Afla primul de cele mai bune oferte
inainte sa ajunga pe piata

Aboneaza-te la newsletter

Aboneaza-te la notificari