P-Ta Universitatii 2 camere 48 mp 6 1959

SVN Residentialist va propune spre vanzare un apartament de 2 camere situat ultracentral.

Pentru aceasta locuinta, comisionul este de 0%.

Acesta se vinde nemobilat si neutilat, lasand loc pentru amenjare dupa bunul plac.

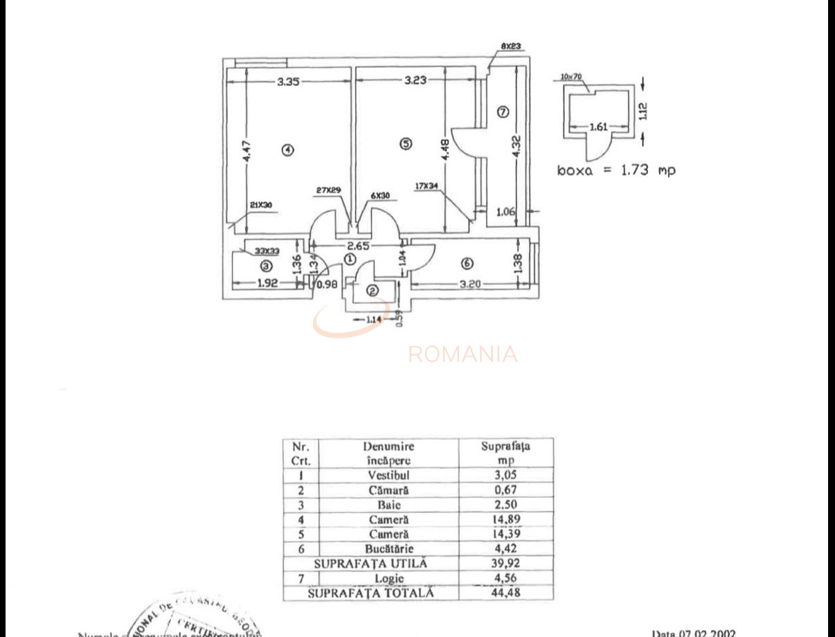
Este situat la etajul 6/7, decomandat, cu o suprafata utila de 48 mp si o boxa de 1,73 mp.

Apartamentul este renovat si beneficiaza de finisaje de buna calitate, fiind situat intr-un imobil care nu este incadrat in nicio clasa de risc seismic, ceea ce il face potrivit atat pentru locuinta, cat si pentru investitie.

Beneficaza de centrala proprie, o compartimentare eficienta, aer conditionat si ventiloconvectoare.

Zona dispune de o pozitie ultracentrala in inima Centrului Vechi, la doar cateva minute de Piata Unirii si principalele puncte de interes ale orasului.

Statia de metrou Unirii find la o distanta pietonala de 3 minute.

Proprietatea are acces rapid la metrou, restaurante premium, cafenele, magazine si zone de promenada, fiind ideala atat pentru locuit, cat si pentru investitie sau regim hotelier.

Atmosfera vibranta si accesibilitatea excelenta fac din aceasta locatie una dintre cele mai cautate zone din Bucuresti.

Pentru mai multe informatii sau pentru programarea vizionarilor, contactul meu va sta la dispozitie

***Vizionarea acestui imobil se face doar în baza semnarii unui acord de vizionare conform codului civil, art 2.096-2.102.

An constructie 1959

Suprafata construita 59 mp

Suprafata utila 48 mp

Regim Inaltime 6 / 7

Etaj 6

Nr. camere 2 camere

Nr. bai 1

Nr. balcoane 0 balcoane

Confort Lux

Compartimentare Decomandat

Tip constructie Bloc

Status constructie Finalizat

Disponibila incepand cu 2026-05-18

Judet Bucuresti

Oras/ Sector Sector 1

Zona P-Ta Universitatii

Gps lat 44.431442

Gps lng 26.103503

Interfon

Parchet

Apometre

Gresie

Faianta

Gaz

Incalzire proprie

Calorifere

Mobilat

Bucatarie mobilata

Lift

Internet prin cablu

Curent electric

Cablu TV

Geamuri termopan

Boxa

Aer conditionat

Valoare proprietate (€)

Perioada (ani)

Procent avans (14.985 €)


Suma creditata 84.915

Dobanda 4.9%

Rata lunara 2.100 lei

Broker Imobiliar

Ramona Badea , Consultant imobiliar Vezi toate proprietatile

0317100200

Comision 0 I Apartament 2 Camere I Universitate I Ultracentral I De vanzare

Pret vanzare
99.900 €

Telefon Consultant imobiliar
0317100200

Cod: REA1017890

Proprietati similare

Bucuresti, Sector 3, Unirii

Apartament, 2 camere

48 mp 6 1959

99.900 EUR

Detalii

Bucuresti, Sector 1, P-ta Romana

Apartament, 2 camere

38 mp 3 1962

104.000 EUR

Detalii

Bucuresti, Ultracentral, Calea Victoriei

Apartament, 2 camere

40.94 mp P 1946

90.000 EUR

Detalii

Bucuresti, Stefan Cel Mare

Apartament, 2 camere

40 mp 4 1960

90.000 EUR

Detalii
Exclusiv Discount

Bucuresti, Colentina, Obor

Apartament, 2 camere

46.08 mp 5 1962

108.000 EUR

Detalii
Exclusiv Discount

Bucuresti, Iancului

Apartament, 2 camere

49.77 mp 5 1962

108.000 EUR

Detalii

Bucuresti, Stefan Cel Mare

Apartament, 2 camere

43.17 mp 3 1964

92.000 EUR

Detalii

Bucuresti, Gara De Nord

Apartament, 2 camere

40 mp 4 1965

97.999 EUR

Detalii
Apartamente 2 camere vandute in Sector 1, Bucuresti Apartamente 2 camere de vanzare in Sector 1, Bucuresti

Afla primul de cele mai bune oferte
inainte sa ajunga pe piata

Aboneaza-te la newsletter

Aboneaza-te la notificari