Piata Victoriei 1 camera 36 mp 5 2017

SVN Residentialist va propune spre achizitie un apartament tip studio, localizat intr-un bloc nou din zona Victoriei, la doar cateva minute de metroul Piata Victoriei.

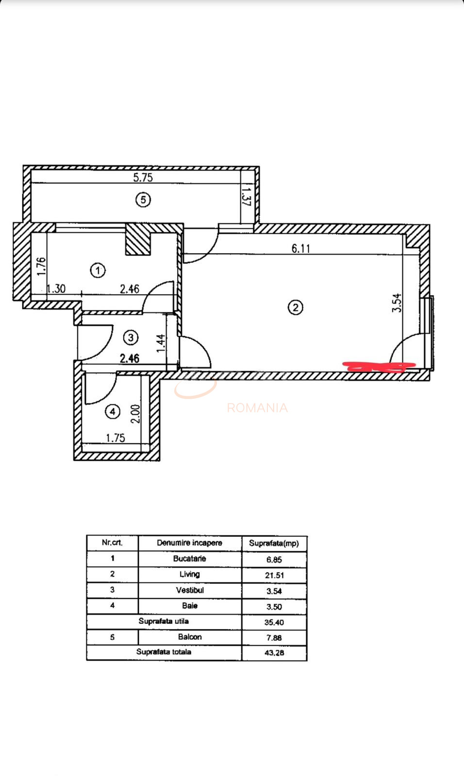
Dispune de o suprafata utila de 36 mp la care se adauga un balcon de 8 mp.
Orientarea este pe Sud Est, asigurand lumina pe intregul parcurs al zilei.

Incalzirea se face prin intermediul centralei de apartament, cu sistem prin pardoseala si calorifere.

Se vinde complet mobilat si utilat.

Certificatul energetic va fi disponibil la momentul vanzarii.

Pentru detalii si vizionari, sunati-ne chiar acum!

An constructie 2017

Suprafata construita 40 mp

Suprafata utila 36 mp

Suprafata terasa 8 mp

Regim Inaltime 5 / 5

Etaj 5

Nr. camere 1 camera

Nr. bai 1

Nr. balcoane 1 balcon

Confort 1

Compartimentare Semidecomandat

Tip constructie In bloc

Status constructie Finalizat

Disponibila incepand cu 2024-06-06

Judet Bucuresti

Oras/ Sector Sector 1

Zona Piata Victoriei

Gps lat 44.450971

Gps lng 26.083521

Cablu TV

Curent electric

Interfon

Geamuri termopan

Parchet

Gresie

Faianta

Gaz

Calorifere

Incalzire prin pardoseala

Incalzire proprie

Mobilat

Aer conditionat

Bucatarie mobilata

Lift

Studio Bloc Nou Victoriei I Metrou

Proprietate vanduta

Ai o proprietate similara? Vinde-o cu noi.
Vinde apartament

Cod: REA1020081

Proprietati similare

Bucuresti, Ultracentral, Calea Plevnei

Garsoniera

43.58 mp 10 1990

145.000 EUR

Detalii

Bucuresti, Sector 1, P-ta Victoriei

1 camera cu loc parcare exterior inclus

40 mp 4 1982

126.000 EUR

Detalii

Bucuresti, Ultracentral, Cismigiu

Garsoniera

27.1 mp 2 1939

119.900 EUR

Detalii

Bucuresti, Crangasi, Regie

Garsoniera

38 mp 2 2020

124.999 EUR

Detalii

Bucuresti, Militari, Politehnica

Garsoniera

42.04 mp 3 2028

132.600 EUR

Detalii

Bucuresti, Colentina, Bucur Obor

Garsoniera

55.9 mp 1 2025

121.295 EUR

Detalii

Bucuresti, Colentina, Bucur Obor

Garsoniera

45.6 mp 2 2025

121.295 EUR

Detalii

Bucuresti, Tineretului, Timpuri Noi

Garsoniera

37.48 mp 1 2002

125.000 EUR

Detalii
Apartamente 1 camera vandute in Ultracentral, Bucuresti Apartamente 1 camera de vanzare in Ultracentral, Bucuresti

Afla primul de cele mai bune oferte
inainte sa ajunga pe piata

Aboneaza-te la newsletter

Aboneaza-te la notificari