Pipera 1 camera 42 mp 1 2018

SVN Residentialist va propune spre vanzare un Studio, situat in Residence 5, zona Pipera, Erou Iancu Nicolae.

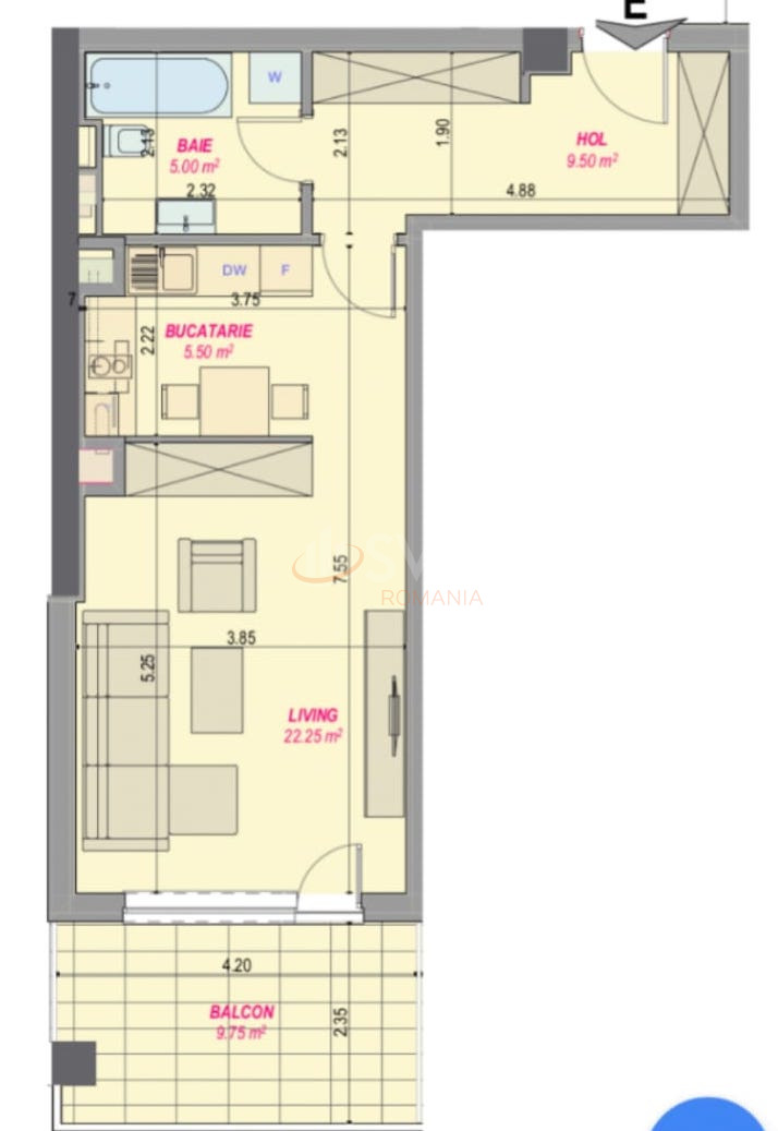
Locuinta este semidecomandata cu o suprafata utila de 42 mp la care se adauga suprafata balconului de 10 mp si se afla la etajul 1/4 al unui imobil finalizat in anul 2018.

Acest apartament se vinde complet mobilat si utilat, dispune de centrala proprie si aer conditionat.

Cu o amplasare ideala in nordul capitalei, in apropierea imobilului se afla Baneasa Shopping City, Promenada Mall, sala de fitness World Class Jollie Villle, Mega Image, Lidl, zona de business cele mai prestigioase unitati de invatamant, atat private, cat si de stat, diverse restaurante si cafenele, dar si mijloace de transport in comun.

Separat se poate achizitiona si un loc de parcare subteran la pretul de 25 000 de euro.

Siguranta este o prioritate iar ansamblul dispune de paza 24/24, oferindu-va linistea si confortul intr-un mediu sigur.

Contactati SVN Residentialist pentru mai multe detalii si pentru a programa o vizionare.

An constructie 2018

Suprafata construita 52 mp

Suprafata utila 42 mp

Suprafata terasa 10 mp

Regim Inaltime 1 / 4

Etaj 1

Nr. camere 1 camera

Nr. bai 1

Nr. balcoane 1 balcon

Confort 1

Compartimentare Semidecomandat

Tip constructie In bloc

Status constructie Finalizat

Disponibila incepand cu 2025-10-07

Judet Bucuresti

Oras/ Sector Sector 1

Zona Pipera

Gps lat 44.514770

Gps lng 26.108836

Internet prin fibra optica

Internet Wireless

Interfon

Sistem de alarma

Detector de gaze

Supraveghere video

Cablu TV

Supraveghere 24/7

Curent electric

Geamuri termopan

Repartitoare

Parchet

Apometre

Gresie

Telefon

Loc parcare subteran

Faianta

Gaz

Calorifere

Incalzire proprie

Mobilat

Aer conditionat

Bucatarie mobilata

Lift

Valoare proprietate (€)

Perioada (ani)

Procent avans (23.400 €)


Suma creditata 132.600

Dobanda 4.9%

Rata lunara 3.279 lei

Broker Imobiliar

Anamaria Halasanu , Consultant imobiliar Vezi toate proprietatile

0317100200

Studio I Residence 5 I Iancu Nicolae

Pret vanzare
155.999 €

Telefon Consultant imobiliar
0317100200

Cod: REA1015823

Proprietati similare

Bucuresti, Pipera, Iancu Nicolae

Garsoniera

39 mp 4 2025

168.500 EUR

Detalii

Bucuresti, Aviatiei

Garsoniera

46 mp 6 2020

162.000 EUR

Detalii

Bucuresti, Pipera

1 camera cu loc parcare subteran inclus

42 mp 1 2022

163.000 EUR

Detalii

Bucuresti, Aviatiei

Garsoniera

46 mp 1 2020

157.900 EUR

Detalii

Bucuresti, Floreasca

Garsoniera

43 mp 1 2018

159.000 EUR

Detalii

Bucuresti, Herastrau

Garsoniera

26.2 mp P 2022

168.000 EUR

Detalii

Bucuresti, Mosilor

Garsoniera

34 mp P 2025

161.200 EUR

Detalii

Bucuresti, Mosilor

Garsoniera

40.67 mp P 2026

167.087 EUR

Detalii
Apartamente 1 camera vandute in Pipera, Bucuresti Apartamente 1 camera de vanzare in Pipera, Bucuresti

Afla primul de cele mai bune oferte
inainte sa ajunga pe piata

Aboneaza-te la newsletter

Aboneaza-te la notificari