Pipera 2 camere 71 mp 4 2023

SVN va propune un apartament de 2 camere intr-un proiect exclusivist North Avenue ce porneste de la 4 principii solide: Profesionalism, Calitate, Siguranta si Incredere.

Aducem in centrul atentiei un proiect rezidential premium, desfasurat pe o suprafata de peste 12.000 metri patrati, care cuprinde 101 unitati locative dispuse pe 7 etaje: apartamente cu 2, 3, 4 camere si penthouse-uri.

North Avenue este o capodopera rezidentiala in care clasicul se imbina cu rafinamentul si eficienta, iar parcul exterior este piesa de rezistenta, menita sa atraga toate privirile.

In ceea ce prives?te dotarile, proiectul North Avenue va dispune de fatada ventilata, terase spatioase, incalzire in pardoseala, sala de sport, coffee shop, peste 1.100 metri de spat?ii verzi, piscina pe terasele penthouse-urilor etc.

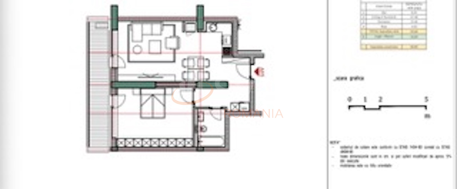
Apartamentul are o suprafata utila de 60 mp la care se adauga o terasa de 11 mp si este situat la etajul 4.

Pentru mai multe detalii si vizionari va rog sa ma contactati.

An constructie 2023

Suprafata construita 84 mp

Suprafata utila 71 mp

Suprafata terasa 11 mp

Regim Inaltime 4 / 7

Etaj 4

Nr. camere 2 camere

Nr. bai 1

Nr. balcoane 1 balcon

Confort 1

Compartimentare Decomandat

Tip constructie In bloc

Status constructie Nefinalizat

Disponibila incepand cu 2023-08-16

Judet Bucuresti

Oras/ Sector Sector 1

Zona Pipera

Gps lat 44.489266

Gps lng 26.128982

Cablu TV

Interfon

Internet prin cablu

Internet Wireless

Detector de gaze

Geamuri termopan

Parchet

Gresie

Faianta

Gaz

Incalzire proprie

Incalzire prin pardoseala

Aer conditionat

Lift

Best Price 2 camere North Avenue

Proprietate vanduta

Ai o proprietate similara? Vinde-o cu noi.
Vinde apartament

Cod: REA1013664

Proprietati similare

Bucuresti, Pipera

Apartament, 2 camere

66.32 mp 4 2027

152.500 EUR

Detalii

Bucuresti, Pipera

Apartament, 2 camere

54.8 mp P 2025

145.900 EUR

Detalii

Bucuresti, Pipera

Apartament, 2 camere

55.3 mp P 2025

139.900 EUR

Detalii

Bucuresti, Pipera

Apartament, 2 camere

56 mp 1 2024

137.900 EUR

Detalii

Bucuresti, Pipera

Apartament, 2 camere

56 mp 6 2025

139.000 EUR

Detalii

Bucuresti, Pipera

Apartament, 2 camere

56 mp 4 2024

153.000 EUR

Detalii

Bucuresti, Pipera

Apartament, 2 camere

72.19 mp 2 2026

145.882 EUR

Detalii

Bucuresti, Pipera

Apartament, 2 camere

66.18 mp P 2027

143.000 EUR

Detalii
Apartamente 2 camere vandute in Pipera, Bucuresti Apartamente 2 camere de vanzare in Pipera, Bucuresti

Afla primul de cele mai bune oferte
inainte sa ajunga pe piata

Aboneaza-te la newsletter

Aboneaza-te la notificari