Pipera 2 camere 37.4 mp 7 2024

SVN Residentialist va propune spre achizitie un studio dublu modern, complet mobilat si utilat, situat in complexul rezidential Ivory Residence, zona Rond OMV – Pipera.

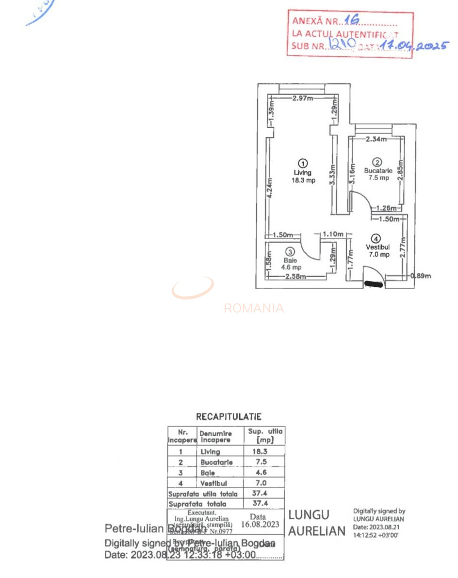
Caracteristici apartament
An constructie: 2024, faza 2
Etaj: 7/7
Suprafata utila: 37,4 metri patrati
Compartimentare: living spatios, bucatarie inchisa si baie
Incalzire in pardoseala, finisaje premium, mobilier si electrocasnice de calitate superioara

Beneficii
Apartament luminos si primitor
Complet mobilat si utilat – gata de mutare imediata
Complex modern, construit recent, cu standarde ridicate

Zona si accesibilitate
Ivory Residence se afla in imediata apropiere a rondului OMV Pipera, cu acces facil catre statia de metrou Pipera, zona de birouri Dimitrie Pompeiu si cartierul Aviatiei.
In apropiere se gasesc magazine, restaurante, centre comerciale, sali de fitness si toate facilitatile necesare unui stil de viata modern.

Pretabil atat ca locuinta proprie, cat si ca investitie, cu potential de inchiriere la un randament foarte bun.

Pretul este de 110.000 euro + TVA pentru apartament; Pret parcare la parter 17.000 euro + TVA sau 12.000 euro + TVA la etajul 4 in cladirea de parcari din interiorul complexului;


Pentru mai multe detalii si pentru vizionari va stam la dispozitie!

An constructie 2024

Suprafata construita 43.01 mp

Suprafata utila 37.4 mp

Regim Inaltime 7 / 7

Etaj 7

Nr. camere 2 camere

Nr. bai 1

Nr. balcoane 0 balcoane

Confort 1

Compartimentare Decomandat

Tip constructie Bloc

Status constructie Finalizat

Disponibila incepand cu 2026-05-12

Judet Bucuresti

Oras/ Sector Sector 1

Zona Pipera

Gps lat 44.493642

Gps lng 26.124451

Interfon

Supraveghere 24/7

Curent electric

Sistem de alarma

Supraveghere video

Detector de gaze

Geamuri termopan

Parchet

Apometre

Gresie

Faianta

Incalzire prin pardoseala

Incalzire proprie

Mobilat

Aer conditionat

Bucatarie mobilata

Lift

Valoare proprietate (€)

Perioada (ani)

Procent avans (16.500 €)


Suma creditata 93.500

Dobanda 4.9%

Rata lunara 2.312 lei

Broker Imobiliar

Nicusor Gavrila , Consultant imobiliar Vezi toate proprietatile

0317100200

Studio dublu I Ivory Residence I Pipera

Pret vanzare
110.000 €

Telefon Consultant imobiliar
0317100200

Cod: REA1028712

Proprietati similare

Bucuresti, Pipera

Apartament, 2 camere

40.7 mp 3 2024

120.000 EUR

Detalii

Bucuresti, Pipera

Apartament, 2 camere

55 mp P 2025

115.900 EUR

Detalii

Bucuresti, Pipera

Apartament, 2 camere

54.4 mp P 2026

115.900 EUR

Detalii

Bucuresti, Pipera

Apartament, 2 camere

54.4 mp P 2025

115.900 EUR

Detalii
Exclusiv Discount

Bucuresti, Pipera

Apartament, 2 camere

54.4 mp P 2025

115.900 EUR

Detalii

Bucuresti, Pipera

Apartament, 2 camere

44.2 mp 3 2026

99.999 EUR

Detalii

Bucuresti, Pipera

Apartament, 2 camere

40 mp 2 2025

100.000 EUR

Detalii

Bucuresti, Floreasca, Barbu Vacarescu

2 camere cu loc parcare exterior inclus

48 mp 3 1980

106.900 EUR

Detalii
Apartamente 2 camere vandute in Pipera, Bucuresti Apartamente 2 camere de vanzare in Pipera, Bucuresti

Afla primul de cele mai bune oferte
inainte sa ajunga pe piata

Aboneaza-te la newsletter

Aboneaza-te la notificari