Lacul Tei 4 camere 93.1 mp 2 2018

SVN Residentialist Victoriei propune spre vanzare un apartament cu 4 camere, situat in zona Lacul Tei - Petricani - Pipera, cu vedere directa catre Lacul Tei.

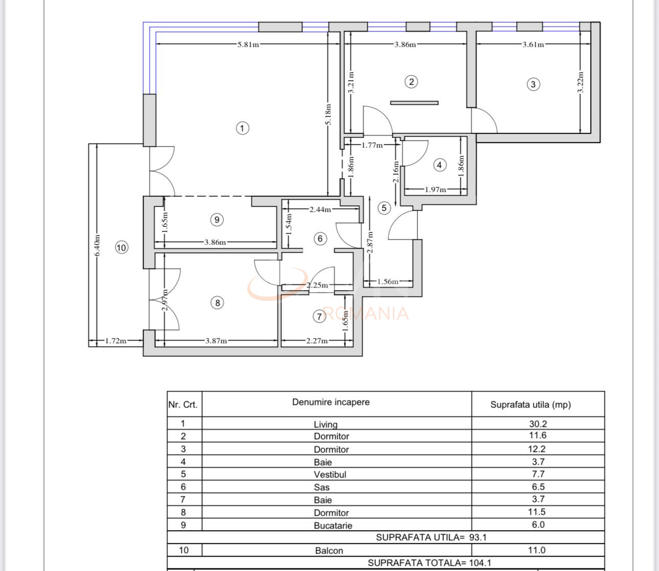
Locuinta se afla la etajul 2 al unui imobil tip boutique cu regim de inaltime S+P+3, construit in anul 2018. Apartamentul este decomandat, are o suprafata utila de 93 mp si beneficiaza de un balcon de 11 mp.

Se vinde complet mobilat si utilat, conform prezentarii din fotografii, si dispune de: incalzire proprie prin centrala termica, incalzire in pardoseala si calorifere, 4 unitati de aer conditionat, masina de spalat vase, masina de spalat rufe, masina de uscat rufe, tamplarie din aluminiu si multiple spatii de depozitare.

Compartimentarea este practica si include: hol cu spatii de depozitare, zona de bucatarie, living si dining in regim open space, dormitor matrimonial cu dressing si baie proprie, doua dormitoare secundare, o baie completa si un balcon generos cu acces din living si dormitorul matrimonial, ce poate fi inchis pe timpul iernii.

Optional, se poate achizitiona un loc de parcare suprateran la pretul de 10.000 euro.

Imobilul gazduieste o comunitate restransa, formata din doar 10 apartamente (3 pe etaj), si este administrat de o asociatie de proprietari.

Optional, pentru cei care isi doresc un spatiu suplimentar sau doresc sa aiba membrii ai familiei in apropiere, in acelasi imobil este disponibil spre vanzare si un studio dublu, cu suprafata utila de 46 mp.

Pentru detalii suplimentare sau pentru programarea unei vizionari, va stau cu drag la dispozitie.

An constructie 2018

Suprafata construita 119.71 mp

Suprafata utila 93.1 mp

Suprafata terasa 11 mp

Regim Inaltime 2 / 3

Etaj 2

Nr. camere 4 camere

Nr. bai 2

Nr. balcoane 1 balcon

Confort 1

Compartimentare Decomandat

Tip constructie Bloc

Status constructie Finalizat

Disponibila incepand cu 2026-05-19

Judet Bucuresti

Oras/ Sector Sector 2

Zona Lacul Tei

Gps lat 44.471865

Gps lng 26.124530

Clasa energetica 1

Curent electric

Sistem de alarma

Detector de gaze

Geamuri termopan

Parchet

Gresie

Faianta

Gaz

Incalzire proprie

Incalzire prin pardoseala

WC serviciu

Mobilat

Aer conditionat

Bucatarie mobilata

Supraveghere video

Interfon

Apometre

Loc parcare exterior

Calorifere

Valoare proprietate (€)

Perioada (ani)

Procent avans (46.500 €)


Suma creditata 263.500

Dobanda 4.9%

Rata lunara 6.515 lei

Broker Imobiliar

Cristian Vasile , Consultant imobiliar Vezi toate proprietatile

0317100200

Apartament de vanzare I 4 camere I Lacul Tei - Petricani

Pret vanzare
310.000 €

Telefon Consultant imobiliar
0317100200

Cod: REA1024633

Proprietati similare

Bucuresti, Colentina

Apartament, 4 camere

112 mp 2 2026

312.900 EUR

Detalii

Bucuresti, Colentina, Andronache

4 camere cu loc parcare exterior inclus

115 mp 4 2026

299.900 EUR

Detalii

Bucuresti, Pipera

Apartament, 4 camere

129.73 mp 6 2027

299.900 EUR

Detalii

Bucuresti, Aviatiei

Apartament, 4 camere

81 mp P 1987

280.000 EUR

Detalii

Bucuresti, Aviatiei

4 camere cu loc parcare exterior inclus

89 mp 1 1987

295.000 EUR

Detalii

Bucuresti, Colentina, Bucur Obor

Apartament, 4 camere

95.5 mp 10 2026

323.000 EUR

Detalii

Bucuresti, Colentina, Bucur Obor

Apartament, 4 camere

109.9 mp 9 2026

329.000 EUR

Detalii

Bucuresti, Pipera

Apartament, 4 camere

136.3 mp 3 2025

305.710 EUR

Detalii
Apartamente 4 camere vandute in Tei, Bucuresti Apartamente 4 camere de vanzare in Tei, Bucuresti

Afla primul de cele mai bune oferte
inainte sa ajunga pe piata

Aboneaza-te la newsletter

Aboneaza-te la notificari