Sisesti 2 camere 44.33 mp 5 2022

SVN Romania va prezinta un apartament de 2 camere dintr-un complex rezidential din nordul Bucurestiului, amplasat perfect intr-o zona verde, aerisita si linistita, cu acces facil catre principalele zone de interes, oferind privelisti spectaculoase si unice din fiecare apartament.

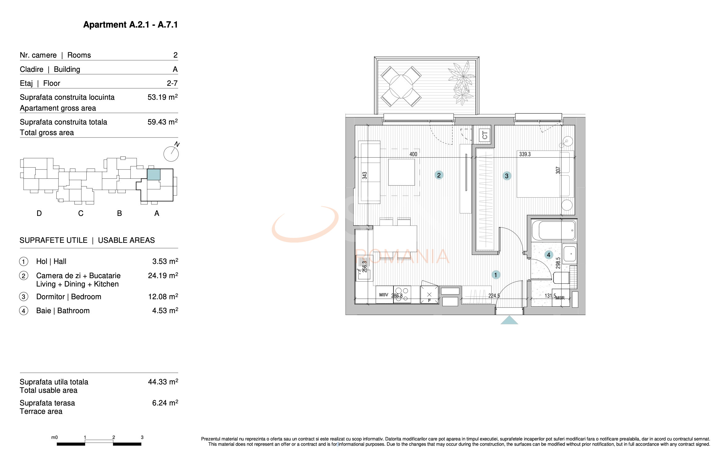
Configuratia apartamentului asigura doua spatii bine definite: zona de zi de 24,19 metri patrati, cu living, dining si bucatarie deschisa, si o zona de noapte, cu un dormitor de 12,08 metri patrati, pentru o suprafata utila totala de 50,57 metri patrati dintre care 6,24 ii constituie terasa.

Printre beneficiile acestei proprietati includ complexul cu acces securizat, poarta cu bariera, portar si peste 150 de locuri de parcare subterane, precum si locuri de parcare pentru vizitatori la parter.

Spatii verzi frumos amenajate in curtea ansamblului rezidential completeaza experienta, iar finisajele de inalta calitate si varietatea de tipuri de apartamente satisfac toate preferintele.

Lifturile de ultima generatie si sistemul de supraveghere video asigura confortul si securitatea, iar terasele generoase aduc un plus de relaxare.

*Pardoseala este acoperita temporar pentru a proteja parchetul triplu stratificat din lemn.

Aveti posibilitatea de a achizitiona un loc de parcare suprateran la pretul de 13,500 EUR + TVA sau subteran la 16,000 EUR + TVA.

Pentru persoane fizice la pretul afisat se adauga TVA, iar pentru achizitia pe persoana juridica, se aplica taxare inversa.

Certificatul energetic va fi disponibil la data semnarii contractului de vanzare-cumparare.

Contactati-ne acum pentru mai multe detalii si pentru a programa o vizionare a acestei proprietati atractive!

An constructie 2022

Suprafata construita 59.43 mp

Suprafata utila 44.33 mp

Suprafata terasa 6.24 mp

Regim Inaltime 5 / 8

Etaj 5

Nr. camere 2 camere

Nr. bai 1

Nr. balcoane 0 balcoane

Confort Lux

Compartimentare Decomandat

Tip constructie In bloc

Status constructie Finalizat

Disponibila incepand cu 2024-01-04

Judet Bucuresti

Oras/ Sector Sector 1

Zona Sisesti

Gps lat 44.488586

Gps lng 26.068150

Complex rezidential Ansamblu rezidential Lacul Baneasa

Nr. terase 1

Internet Wireless

Internet prin cablu

Internet prin Dial-Up

Supraveghere video

Cablu TV

Internet prin fibra optica

Interfon

Supraveghere 24/7

Curent electric

Geamuri termopan

Parchet

Apometre

Gresie

Telefon

Loc parcare subteran

Faianta

Gaz

Loc parcare exterior

Incalzire prin pardoseala

Incalzire proprie

Aer conditionat

Bloc reabiliat termic

Lift

I Direct Dezvoltator I Apartament 2 camere I Comision 0

Proprietate vanduta

Ai o proprietate similara? Vinde-o cu noi.
Vinde apartament

Cod: REA1017348

Proprietati similare

Bucuresti, Bucurestii Noi

Apartament, 2 camere

57.13 mp 2 2011

130.000 EUR

Detalii

Bucuresti, 1 Mai

Apartament, 2 camere

46.75 mp 3 1964

125.000 EUR

Detalii

Bucuresti, 1 Mai

Apartament, 2 camere

44 mp 3 1961

124.000 EUR

Detalii

Bucuresti, Aviatiei

2 camere cu loc parcare exterior inclus

41 mp 3 2016

129.000 EUR

Detalii

Bucuresti, Floreasca, Barbu Vacarescu

2 camere cu loc parcare exterior inclus

48 mp 2 1980

129.000 EUR

Detalii

Bucuresti, Baneasa, Sisesti

Apartament, 2 camere

47.99 mp 10 2026

133.400 EUR

Detalii

Bucuresti, Floreasca

Apartament, 2 camere

50 mp 2 1950

125.000 EUR

Detalii

Bucuresti, Baneasa, Sisesti

Apartament, 2 camere

44 mp 10 2022

120.000 EUR

Detalii
Apartamente 2 camere vandute in Baneasa, Bucuresti Apartamente 2 camere de vanzare in Baneasa, Bucuresti

Afla primul de cele mai bune oferte
inainte sa ajunga pe piata

Aboneaza-te la newsletter

Aboneaza-te la notificari