Sisesti 6 camere 200.55 mp 3 2008

SVN Residentialist va propune un apartament deosebit cu 6 camere, situat in zona Sisesti – o zona rezidentiala in continua dezvoltare, linistita si bine conectata cu punctele cheie ale orasului. Pozitionarea asigura acces rapid catre Baneasa, Pipera, centre comerciale, scoli si gradinite de prestigiu, dar si catre natura – fiind aproape de Padurea Baneasa si lacuri.

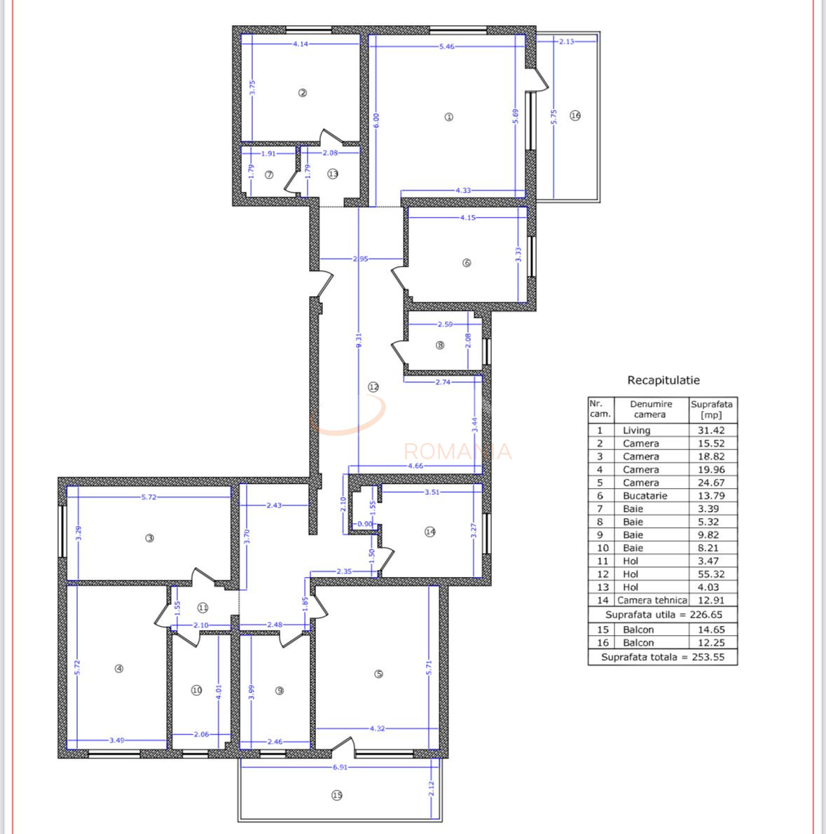
Locuinta are o suprafata totala de 200 mp si este excelent compartimentata pentru a raspunde nevoilor unei familii numeroase sau a celor care cauta un spatiu generos si bine organizat. La intrare, se deschide un hol spatios de intampinare, ce include o zona de dining perfecta pentru mesele in familie sau socializare. Accesul se face catre livingul luminos, care beneficiaza de un balcon cu vedere deschisa.

Dormitorul matrimonial este completat de o baie proprie, iar pe hol se continua catre celelalte camere si o terasa inchisa, ideala pentru relaxare sau activitati indoor. Apartamentul dispune in total de 4 bai oferind confort maxim pentru locuitori si oaspeti.


Separat avem 2 locuri de parcare supraterane, un avantaj important pentru zona, disponibile la 30.000 euro.

Este o proprietate spatioasa si bine luminata natural, potrivita atat ca locuinta permanenta, cat si pentru cei care isi doresc sa imbine spatiul personal cu activitatea profesionala sau nevoia unui apartament multifunctional.

Va asteptam la vizionare!

An constructie 2008

Suprafata construita 250.58 mp

Suprafata utila 200.55 mp

Suprafata terasa 27

Regim Inaltime 3 / 5

Etaj 3

Nr. camere 6 camere

Nr. bai 4

Nr. balcoane 2 balcoane

Confort 1

Compartimentare Decomandat

Tip constructie In bloc

Status constructie Finalizat

Disponibila incepand cu 2025-08-27

Judet Bucuresti

Oras/ Sector Sector 1

Zona Sisesti

Gps lat 44.504034

Gps lng 26.043669

Cablu TV

Curent electric

Internet prin fibra optica

Interfon

Acoperis mansardat

Geamuri termopan

Balcon inchis

Parchet

Apometre

Gresie

Faianta

Gaz

Incalzire proprie

WC serviciu

Aer conditionat

Bucatarie mobilata

Lift

Supraveghere video

Loc parcare exterior

Bloc reabiliat termic

Valoare proprietate (€)

Perioada (ani)

Procent avans (96.000 €)


Suma creditata 544.000

Dobanda 4.9%

Rata lunara 13.450 lei

Broker Imobiliar

Alexandra Duma , Consultant imobiliar Vezi toate proprietatile

0317100200

Apartament 6 Camere l Spatios l Sisesti

Pret vanzare
640.000 €

Telefon Consultant imobiliar
0317100200

Cod: REA1023405

Proprietati similare

Bucuresti, Kiseleff

6 camere cu loc parcare subteran inclus

142 mp 2 1940

595.000 EUR

Detalii
Apartamente 6 camere vandute in Baneasa, Bucuresti Apartamente 6 camere de vanzare in Baneasa, Bucuresti

Afla primul de cele mai bune oferte
inainte sa ajunga pe piata

Aboneaza-te la newsletter

Aboneaza-te la notificari