Titulescu 2 camere 54 mp 7 2019

SVN Romania va propune spre achizitie un apartament cu doua camere, complet mobilat si utilat, situat intr-un bloc finalizat in 2019. Detaliile proprietatii sunt urmatoarele:

Centrala proprie pentru incalzirea eficienta a locuintei
Sistem de incalzire in pardosea cu termostat pentru confort maxim
Aer conditionat multisplit pentru reglarea optima a temperaturii
Utilitati electrocasnice de ultima generatie: masina de spalat vase, masina de spalat rufe, plita, cuptor, combina frigorifica
Echipare completa cu mobilier de calitate, inclusiv televizor UHD 4K smart
Locuinta a fost finisata cu atentie la detalii si cu materiale de inalta calitate

Aceasta proprietate ofera un stil de viata modern si confortabil, beneficiind de facilitatile tehnologice si de utilitatile necesare pentru a satisface toate nevoile locative.

Pentru mai multe informatii sau pentru a programa o vizionare, va rugam sa ne contacta Suntem bucurosi sa va oferim toate detaliile suplimentare si sa va ghidam in procesul de achizitie inclusiv prin optiuni de creditare favorabile.

Va multumim pentru interesul acordat si asteptam cu nerabdare sa va aratam aceasta proprietate exceptionala!

An constructie 2019

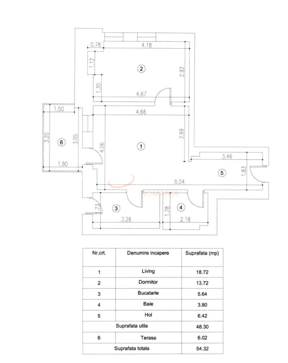
Suprafata construita 62 mp

Suprafata utila 54 mp

Regim Inaltime 7 / 7

Etaj 7

Nr. camere 2 camere

Nr. bai 1

Nr. balcoane 1 balcon

Confort 1

Compartimentare Decomandat

Tip constructie In bloc

Status constructie Finalizat

Disponibila incepand cu 2024-01-17

Judet Bucuresti

Oras/ Sector Sector 1

Zona Titulescu

Gps lat 44.451035

Gps lng 26.074524

Geamuri termopan

Parchet

Gresie

Faianta

Incalzire proprie

Incalzire prin pardoseala

Mobilat

Aer conditionat

Bucatarie mobilata

Apartament 2 camere Titulescu

Proprietate vanduta

Ai o proprietate similara? Vinde-o cu noi.
Vinde apartament

Cod: REA1017940

Proprietati similare

Bucuresti, Militari, Grozavesti

Apartament, 2 camere

56 mp P 2018

168.900 EUR

Detalii

Bucuresti, Crangasi, Regie

2 camere cu loc parcare exterior inclus

50 mp 3 2018

169.000 EUR

Detalii

Bucuresti, Ultracentral, Stirbei Voda

Apartament, 2 camere

41 mp 1 1960

165.000 EUR

Detalii

Bucuresti, Ultracentral, Cismigiu

Apartament, 2 camere

38.02 mp 2 1960

170.000 EUR

Detalii

Bucuresti, Militari, Grozavesti

Apartament, 2 camere

50 mp P 2020

174.000 EUR

Detalii

Bucuresti, Ultracentral, Cismigiu

Apartament, 2 camere

40.7 mp 1 1940

165.000 EUR

Detalii

Bucuresti, Sector 1, P-ta Romana

Apartament, 2 camere

37 mp 3 1965

155.000 EUR

Detalii

Bucuresti, Dorobanti

Apartament, 2 camere

55 mp 4 1967

179.500 EUR

Detalii
Apartamente 2 camere vandute in 1 Mai, Bucuresti Apartamente 2 camere de vanzare in 1 Mai, Bucuresti

Afla primul de cele mai bune oferte
inainte sa ajunga pe piata

Aboneaza-te la newsletter

Aboneaza-te la notificari