Universitate (s1) 4 camere 90 mp 7 1980

SVN Residentialist va propune spre vanzare un apartament cu 4 camere dntr-un imobil situat in zona Universitate.

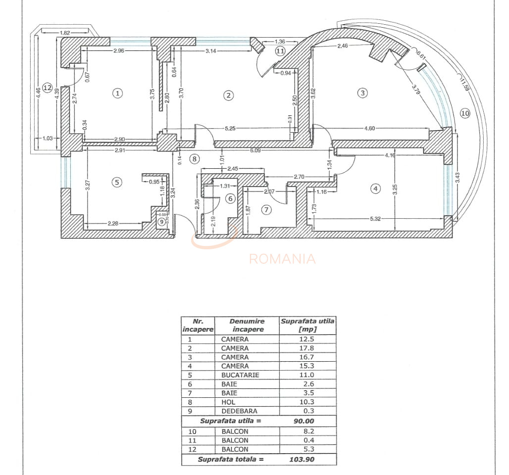
Aflat la etajul 7 dintr-un total de 10, acest apartament ofera o suprafata utila de 90mp si trei balcoane cu o suprafata totala de 13.9mp,ce ofera o vedere panoramica asupra orasului.

Cu un sistem de supraveghere video si paza 24/24, siguranta este o prioritate. În plus, locurile de parcare disponibile în curtea blocului asigura comoditatea în parcarea vehiculelor.

Este o oportunitate ideala pentru cei care cauta o proprietate intr-o zona centrala, cu acces usor catre facilitatile si serviciile din jur.

Apartamentul are centrala proprie noua, geamuri tripan cu plase, rulouri de aluminium si a fost complet renovat in anul 2022.


Certificatul energetic va fi disponibil la momentul vanzarii.


Pentru mai multe informatii si pentru a stabili o vizionare nu ezitati sa ma contactati.

An constructie 1980

Suprafata construita 130 mp

Suprafata utila 90 mp

Suprafata terasa 14 mp

Regim Inaltime 7 / 10

Etaj 7

Nr. camere 4 camere

Nr. bai 2

Nr. balcoane 0 balcoane

Confort 1

Compartimentare Semidecomandat

Tip constructie In bloc

Status constructie Finalizat

Disponibila incepand cu 2025-06-05

Judet Bucuresti

Oras/ Sector Sector 1

Zona Universitate (s1)

Gps lat 44.436825

Gps lng 26.101322

Curent electric

Internet Wireless

Internet prin cablu

Cablu TV

Internet prin fibra optica

Supraveghere 24/7

Geamuri termopan

Repartitoare

Balcon inchis

Parchet

Apometre

Gresie

Faianta

Gaz

Calorifere

Incalzire proprie

WC serviciu

Mobilat

Aer conditionat

Bucatarie mobilata

Lift

Apartament 4 Camere Zona Universitate

Proprietate vanduta

Ai o proprietate similara? Vinde-o cu noi.
Vinde apartament

Cod: REA1018633

Proprietati similare

Bucuresti, Ultracentral, Piata Romana

Apartament, 4 camere

100 mp 2 1983

375.000 EUR

Detalii

Bucuresti, Unirii, Piata Unirii (s3)

Apartament, 4 camere

96 mp 1 1980

370.000 EUR

Detalii

Bucuresti, Unirii, Piata Unirii (s3)

Apartament, 4 camere

112 mp 8 2022

395.000 EUR

Detalii

Bucuresti, Ultracentral, Piata Victoriei

Apartament, 4 camere

100 mp 3 1995

370.000 EUR

Detalii

Bucuresti, Tineretului, Timpuri Noi

Apartament, 4 camere

118 mp 9 2023

399.900 EUR

Detalii

Bucuresti, Ultracentral, Piata Victoriei

Apartament, 4 camere

137 mp 1 1940

360.000 EUR

Detalii

Bucuresti, Tei, Lacul Tei

Apartament, 4 camere

108.86 mp P 2025

420.000 EUR

Detalii

Bucuresti, Iancului

Apartament, 4 camere

118 mp 4 2024

390.000 EUR

Detalii
Apartamente 4 camere vandute in Ultracentral, Bucuresti Apartamente 4 camere de vanzare in Ultracentral, Bucuresti

Afla primul de cele mai bune oferte
inainte sa ajunga pe piata

Aboneaza-te la newsletter

Aboneaza-te la notificari