Victoriei 4 camere 125 mp 3 1967

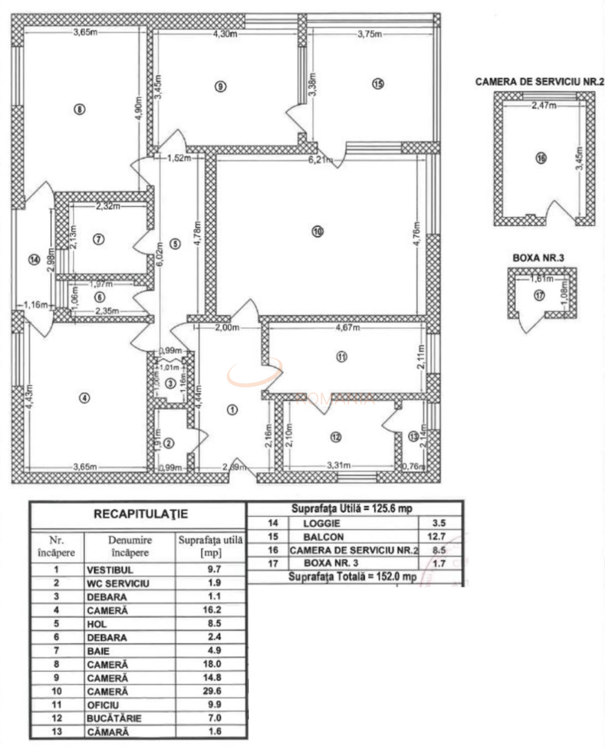
SVN Romania propune spre vanzare un apartament decomandat, intr-o zona selecta a Bucurestiului, spatios, cu suprafata utila de 125 mp si totala de 152 mp, compus din 3 dormitoare, sufragerie, bucatarie, baie, WC serviciu, loggie, balcon, camera de serviciu, boxa si garaj.

Apartameul este situat la etajul 3, intr-un bloc cu 3 niveluri, in zona Kiseleff, aproape de Arcul de Triumf, Parcul Herastrau, statia de metrou Aviatorilor, Spitalul Universitar de Urgenta Elias, Biserica Casin, Scoala Gimnaziala Pia Bratianu.

Garajul, in suprafata de 16 mp, camera de serviciu de serviciu in suprafata de 8.5 mp si boxa, sunt incluse in pretul de vanzare al apartamentului.

In apropriere se regaseste o retea dezvoltata de transport in comun, unitati comerciale, de invatamant, bancare, de cult si de agrement.

Apartamentul nu este locuit si este disponibil imediat.

Certificatul energetic va fi disponibil la momentul vanzarii.

Pentru mai multe detalii, va rugam sa ne contactati.

An constructie 1967

Suprafata construita 152 mp

Suprafata utila 125 mp

Suprafata terasa 16 mp

Regim Inaltime 3 / 3

Etaj 3

Nr. camere 4 camere

Nr. bai 1

Nr. balcoane 1 balcon

Confort 1

Compartimentare Decomandat

Tip constructie In bloc

Status constructie Finalizat

Disponibila incepand cu 2024-06-08

Judet Bucuresti

Oras/ Sector Sector 1

Zona Victoriei

Gps lat 44.465059

Gps lng 26.080704

Nr. terase 1

Internet prin fibra optica

Internet Wireless

Internet prin Dial-Up

Interfon

Detector de gaze

Cablu TV

Curent electric

Internet prin cablu

Geamuri termopan

Balcon inchis

Parchet

Apometre

Boxa

Gresie

Telefon

Loc parcare subteran

Faianta

Gaz

Calorifere

WC serviciu

Fara imbunatatiri

Apartament 4 Camere si Garaj de Vanzare Kiseleff Sector 1

Proprietate vanduta

Ai o proprietate similara? Vinde-o cu noi.
Vinde apartament

Cod: REA1019835

Proprietati similare

Bucuresti, Aviatorilor

Apartament, 4 camere

135 mp 2 2022

685.000 EUR

Detalii

Bucuresti, Aviatorilor

Apartament, 4 camere

135 mp 2 2024

685.000 EUR

Detalii

Bucuresti, Dorobanti

Apartament, 4 camere

170 mp 3 2012

715.000 EUR

Detalii

Bucuresti, Dorobanti, Capitale

Apartament, 4 camere

105 mp 2 1935

630.000 EUR

Detalii

Bucuresti, Herastrau

4 camere cu loc parcare subteran inclus

147.04 mp 2 2009

750.000 EUR

Detalii

Bucuresti, Floreasca

Apartament, 4 camere

177 mp 3 2007

650.000 EUR

Detalii

Bucuresti, Floreasca

Apartament, 4 camere

144 mp 4 2006

750.000 EUR

Detalii

Bucuresti, Dorobanti

4 camere cu loc parcare exterior inclus

145 mp P 2025

749.900 EUR

Detalii
Apartamente 4 camere vandute in Ultracentral, Bucuresti Apartamente 4 camere de vanzare in Ultracentral, Bucuresti

Afla primul de cele mai bune oferte
inainte sa ajunga pe piata

Aboneaza-te la newsletter

Aboneaza-te la notificari