Barbu Vacarescu 2 camere 53.3 mp 3 2023

SVN Residentialist va propune spre vanzare un apartament modern cu 2 camere, situat intr-un bloc nou, amplasat intr-una dintre cele mai cautate zone din nordul Capitalei – Barbu Vacarescu- Fabrica de Glucoza.

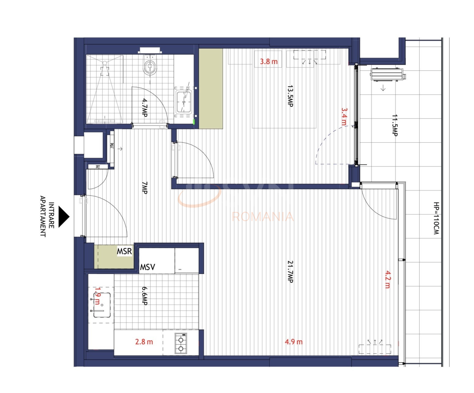
Apartamentul are o suprafata utila generoasa de 53,30 metri patrati si este compartimentat eficient, oferind un echilibru ideal intre zona de zi si cea de noapte.
Livingul spatios cu bucatarie separata , finisaje premium si acces la o terasa generoasa de aproximativ 12 mp este ideal pentru petrecerea timpului in familie sau cu prietenii.

Zona de noapte cuprinde un dormitor cu spatii bine proportionate si multa lumina naturala.

Imobilul face parte dintr-un ansamblu residential, cu acces securizat si standarde ridicate de constructie.

Separat se poate achizitiona un loc de parcare subteran.

Localizarea in zona Pipera – Floreasca ofera acces rapid catre centre de business, scoli internationale, restaurante, centre comerciale si mijloace de transport, fiind o alegere excelenta atat pentru locuire proprie, cat si pentru investitie.

Pentru mai multe informatii sau pentru programarea unei vizionari, va stam cu placere la dispozitie.

An constructie 2023

Suprafata construita 66.2 mp

Suprafata utila 53.3 mp

Suprafata terasa 11.5 mp

Regim Inaltime 3 / 8

Etaj 3

Nr. camere 2 camere

Nr. bai 1

Nr. balcoane 1 balcon

Confort 1

Compartimentare Semidecomandat

Tip constructie In bloc

Status constructie Finalizat

Disponibila incepand cu 2026-01-23

Judet Bucuresti

Oras/ Sector Sector 2

Zona Barbu Vacarescu

Gps lat 44.476558

Gps lng 26.114613

Nr. terase 1

Supraveghere 24/7

Cablu TV

Curent electric

Internet prin fibra optica

Interfon

Supraveghere video

Geamuri termopan

Parchet

Gresie

Loc parcare subteran

Faianta

Gaz

Incalzire prin pardoseala

Calorifere

Incalzire proprie

Aer conditionat

Bloc reabiliat termic

Lift

Valoare proprietate (€)

Perioada (ani)

Procent avans (32.850 €)


Suma creditata 186.150

Dobanda 4.9%

Rata lunara 4.603 lei

Broker Imobiliar

Alexandra Duma , Consultant imobiliar Vezi toate proprietatile

0317100200

Apartament 2 camere spatios Fabrica de Glucoza Pipera

Pret vanzare + TVA
219.000 €

Telefon Consultant imobiliar
0317100200

Cod: REA1027097

Proprietati similare

Bucuresti, Floreasca, Barbu Vacarescu

Apartament, 2 camere

49.5 mp 1 2025

210.000 EUR

Detalii

Bucuresti, Aviatiei

Apartament, 2 camere

50 mp 1 2025

204.950 EUR

Detalii

Bucuresti, Floreasca

Apartament, 2 camere

52 mp 5 2024

224.500 EUR

Detalii

Bucuresti, Floreasca

Apartament, 2 camere

52 mp 4 2024

224.500 EUR

Detalii

Bucuresti, Floreasca, Barbu Vacarescu

Apartament, 2 camere

73.57 mp 6 2010

225.000 EUR

Detalii

Bucuresti, Floreasca

2 camere cu loc parcare exterior inclus

72.64 mp 5 2024

210.000 EUR

Detalii

Bucuresti, Floreasca, Barbu Vacarescu

Apartament, 2 camere

55 mp 6 2025

229.000 EUR

Detalii

Bucuresti, Floreasca, Barbu Vacarescu

Apartament, 2 camere

58.19 mp 1 2025

218.900 EUR

Detalii
Apartamente 2 camere vandute in Floreasca, Bucuresti Apartamente 2 camere de vanzare in Floreasca, Bucuresti

Afla primul de cele mai bune oferte
inainte sa ajunga pe piata

Aboneaza-te la newsletter

Aboneaza-te la notificari