Apartament, 4 camere, Bucuresti / Floreasca / Barbu Vacarescu
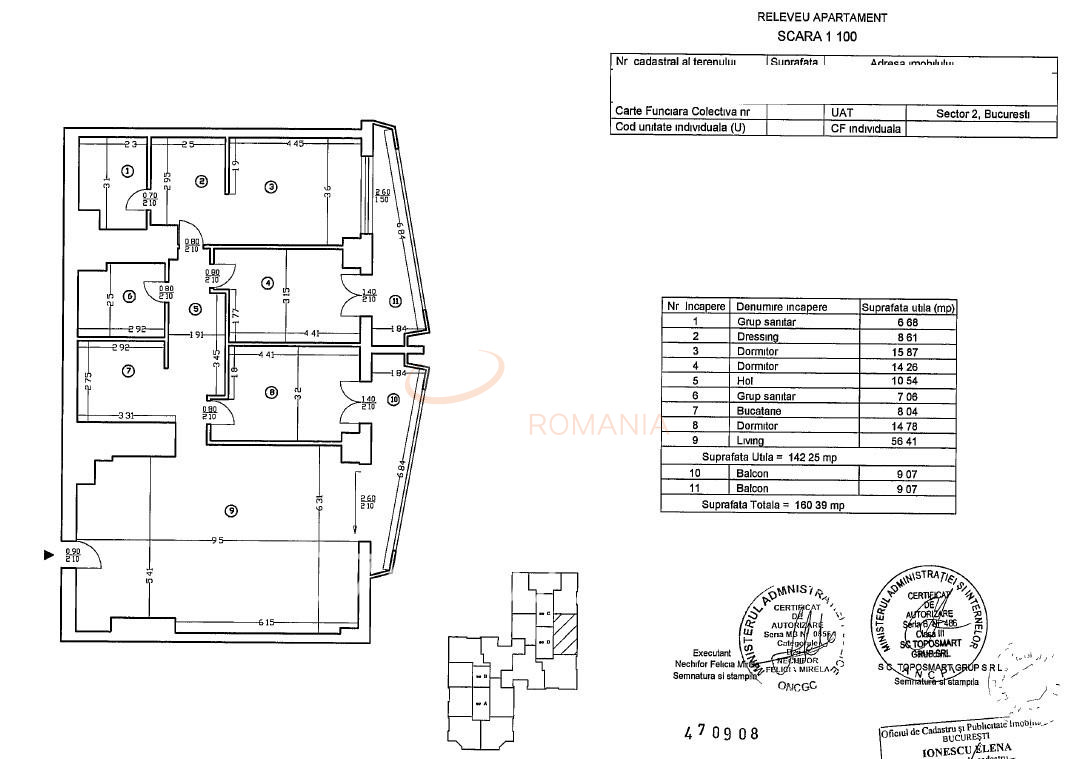
Apartamentul este foarte generos , compus din living cu suprafata de 56 mp, dormitor matrimonial cu dressing si baie proprie (30 mp), doua dormitoare cu suprafete similiare, respectiv 16 si 15 mp, bucatarie, baie si hol, 2 terase, toate acestea insumand suprafata totala de 162 mp.
Apartamentul a fost renovat integral cu materiale de calitate superioara : parchet lemn masiv, centrala noua Viessmann ce asigura un consum redus, terasa renovata etc.
Pozitionarea pe Est si suprafetele vitrate mari confera apartamentului luminozitate pe tot parcursul zilei.
Separat, se pot achizitiona 2 locuri de parcare subterane (16.000 euro/loc) si o boxa (4000 euro).
Certificatul energetic va fi disponibil la vanzare.
In anunt regasiti randari realizate de catre un arhitect pentru reamenajarea apartamentului.
Amplasamentul este de exceptie, la numai cateva minute fata de statia de metrou, mall Promenada, autostrada A3, restaurante si cafenele la parterul blocului etc.
Pentru mai multe detalii si vizionari va stau la dispozitie.
Atribute
An constructie 2013
Suprafata construita 195 mp
Suprafata utila 142 mp
Suprafata terasa 20
Regim Inaltime 15 / 16
Etaj 15
Nr. camere 4 camere
Nr. bai 2
Nr. balcoane 2 balcoane
Confort 1
Compartimentare Semidecomandat
Tip constructie In bloc
Status constructie Finalizat
Disponibila incepand cu 2023-08-08
Judet Bucuresti
Oras/ Sector Sector 2
Zona Barbu Vacarescu
Gps lat 44.478480
Gps lng 26.114624
Facilitati
Supraveghere video
Interfon
Cablu TV
Detector de gaze
Internet Wireless
Supraveghere 24/7
Curent electric
Geamuri termopan
Repartitoare
Parchet
Apometre
Boxa
Gresie
Loc parcare subteran
Faianta
Incalzire proprie
Calorifere
WC serviciu
Aer conditionat
Lift
Apartament 4 camere 162 mp Upground Residence
Proprietate vanduta
Ai o proprietate similara? Vinde-o cu noi.
  Vinde apartament  
 
  
  
  
  
  
  
  
  
  
  
  
  
  
   
   
   
   
   
  
  
   
   
   
   
   
  
  
   
   
   
   
   
  
  
   
   
   
   
   
  
  
   
   
   
   
   
  
  
   
   
   
   
   
  
   
   
   
   
   
  
  
   
   
   
  