Bucur Obor 2 camere 54.2 mp 5 1982

SVN Romania va propune spre vanzare un apartament cu 2 camere situat la intersectia dintre Calea Mosilor si Soseaua Mihai Bravu, chiar langa gura de metrou Obor.
Apartamentul se afla la etajul 5 al unui bloc construit in anul 1982.
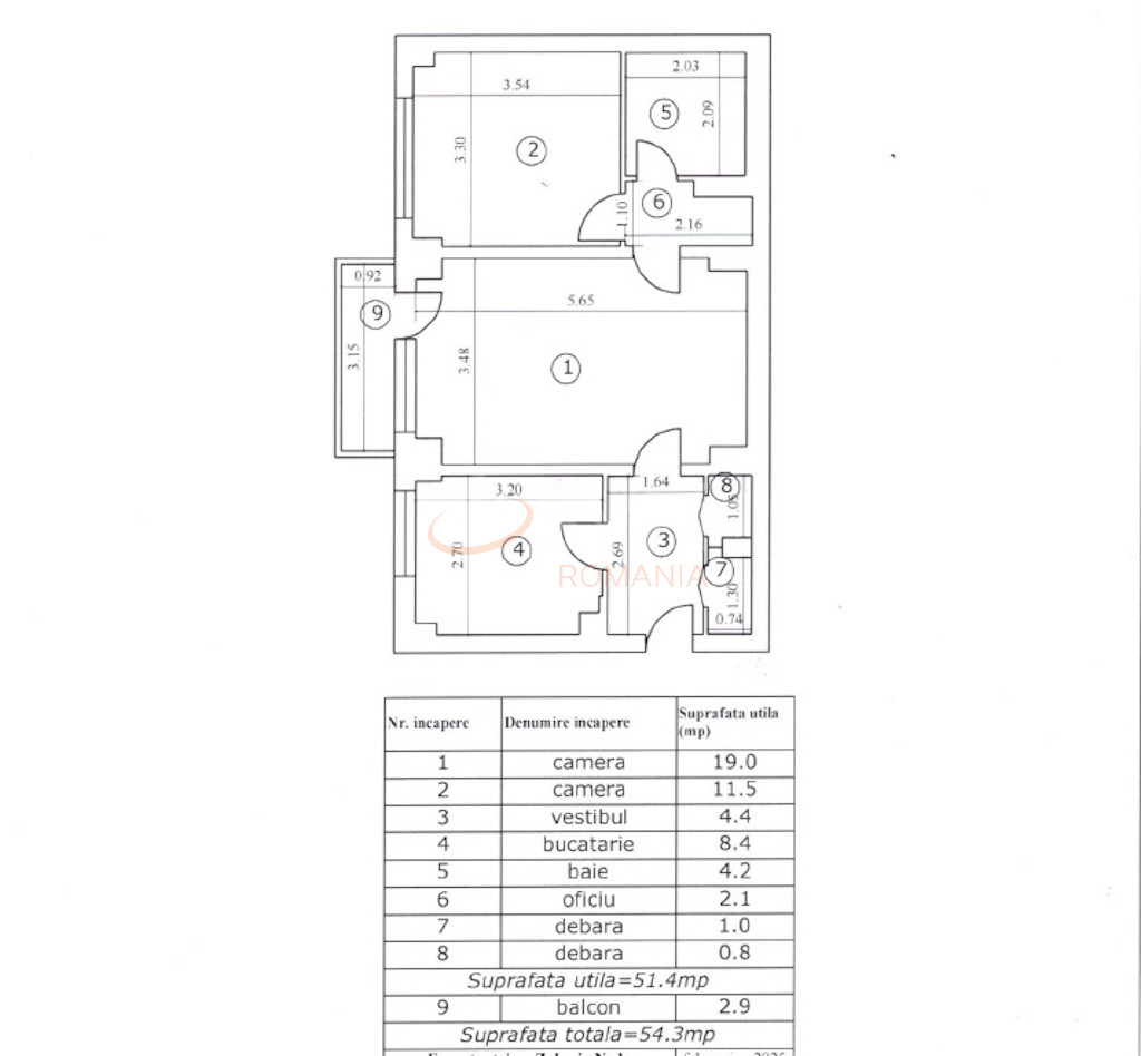
Compartimentarea este de tip semidecomandat cu o suprafata interiora de 54,3 mp( din care 2,9 mp este suprafata balconului.
Principalele avantaje ale acestui apartament sunt urmatoarele:
- gura de metrou Obor langa bloc
- pozitionare spate(sud)
- bloc reabilitat
- scara curata
- an constructie: 1982

Pentru mai multe informatii, nu ezitati sa ne contactati.

Certificatul energetic o sa fie disponibil la momentul vanzarii.

An constructie 1982

Suprafata construita 60 mp

Suprafata utila 54.2 mp

Suprafata terasa 2.9 mp

Regim Inaltime 5 / 10

Etaj 5

Nr. camere 2 camere

Nr. bai 1

Nr. balcoane 1 balcon

Confort 1

Compartimentare Semidecomandat

Tip constructie In bloc

Status constructie Finalizat

Disponibila incepand cu 2025-03-12

Judet Bucuresti

Oras/ Sector Sector 2

Zona Bucur Obor

Gps lat 44.449271

Gps lng 26.123945

Interfon

Geamuri termopan

Balcon inchis

Parchet

Apometre

Calorifere

Aer conditionat

Bloc reabiliat termic

Lift

Pozitionare excelenta langa gura de metrou - vedere spate

Proprietate vanduta

Ai o proprietate similara? Vinde-o cu noi.
Vinde apartament

Cod: REA1023001

Proprietati similare

Exclusiv Discount

Bucuresti, Colentina, Bucur Obor

Apartament, 2 camere

55.9 mp 1 2026

114.065 EUR

Detalii
Exclusiv Discount

Bucuresti, Colentina, Bucur Obor

Apartament, 2 camere

64.3 mp 4 2026

124.295 EUR

Detalii

Bucuresti, Stefan Cel Mare

Apartament, 2 camere

52 mp 4 1962

115.000 EUR

Detalii

Bucuresti, Iancului

Apartament, 2 camere

54.26 mp 8 1960

109.000 EUR

Detalii

Bucuresti, Ultracentral, Piata Universitatii

Apartament, 2 camere

70 mp D 1930

116.000 EUR

Detalii
Exclusiv Discount

Bucuresti, Colentina

Apartament, 2 camere

51 mp 4 2019

119.500 EUR

Detalii

Bucuresti, Ultracentral, Batistei

Apartament, 2 camere

42 mp P 1960

115.000 EUR

Detalii

Bucuresti, Dorobanti

Apartament, 2 camere

50.38 mp 5 1962

120.000 EUR

Detalii
Apartamente 2 camere vandute in Colentina, Bucuresti Apartamente 2 camere de vanzare in Colentina, Bucuresti

Afla primul de cele mai bune oferte
inainte sa ajunga pe piata

Aboneaza-te la newsletter

Aboneaza-te la notificari