Colentina 2 camere 55 mp P 2009

Avem deosebita placere de a va oferi spre vanzare un apartament de 2 camere situat la parterul unui imobil cu 10 etaje din cadrul complexului de exceptie Rose Garden, din zona Colentina.

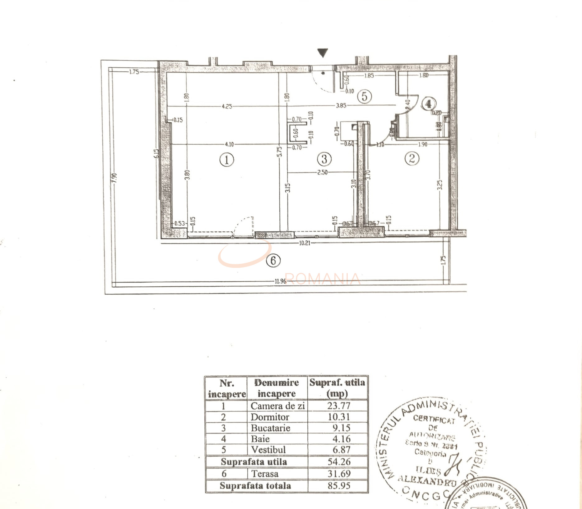
Apartamentul dispune de o impartire decomandata, fiind compus din: hol, dormitor, baie, living cu bucatarie open space, avand o suprafata utila de 55 mp la care se adauga o terasa generoasa de 32 mp, astfel suprafata totala a apartamentului fiind de 86 mp.

Apartamentul detine 1 loc de parcare subteran si se ofera spre vanzare mobilat si utilat.

Complexul Rose Garden dispune de paza 24/24 asigurata de firma BGS, accesul in complex fiind securizat. In incinta complexului se gaseste si un loc de joaca pentru copii.

In vecinatate se afla Parcul Plumbuita, magazine, scoli, gradinite si alte spatii comerciale. De asemenea, la Rose Garden ai acces rapid la mijloacele de transport in comun: statia de metrou Bucur Obor, precum si statii RATB care se afla chiar in fata complexului rezidential.

Pentru mai multe detalii si vizionari va stau la dispozitie.

An constructie 2009

Suprafata construita 70 mp

Suprafata utila 55 mp

Suprafata terasa 32

Regim Inaltime P / 10

Etaj P

Nr. camere 2 camere

Nr. bai 1

Nr. balcoane 0 balcoane

Confort 1

Compartimentare Decomandat

Tip constructie In bloc

Status constructie Finalizat

Disponibila incepand cu 2024-03-15

Judet Bucuresti

Oras/ Sector Sector 2

Zona Colentina

Gps lat 44.458173

Gps lng 26.132750

Nr. terase 1

Curent electric

Internet Wireless

Detector de gaze

Cablu TV

Interfon

Supraveghere 24/7

Geamuri termopan

Repartitoare

Parchet

Apometre

Gresie

Telefon

Loc parcare subteran

Faianta

Gaz

Calorifere

Incalzire proprie

Mobilat

Aer conditionat

Bucatarie mobilata

Lift

Apartament 2 camere Rose Garden Colentina

Proprietate vanduta

Ai o proprietate similara? Vinde-o cu noi.
Vinde apartament

Cod: REA1018917

Proprietati similare

Exclusiv Discount

Bucuresti, Tei

Apartament, 2 camere

45.97 mp 3 1970

127.500 EUR

Detalii

Bucuresti, Colentina, Doamna Ghica

Apartament, 2 camere

51 mp 1 2025

113.500 EUR

Detalii
Exclusiv Discount

Bucuresti, Tei, Lacul Tei

Apartament, 2 camere

48 mp 8 1986

114.500 EUR

Detalii

Bucuresti, Tei, Lacul Tei

Apartament, 2 camere

49 mp P 1985

117.000 EUR

Detalii

Bucuresti, Stefan Cel Mare

Apartament, 2 camere

53.2 mp 8 1981

119.000 EUR

Detalii

Bucuresti, Colentina, Bucur Obor

Apartament, 2 camere

52.7 mp 3 2025

132.350 EUR

Detalii

Bucuresti, Colentina, Bucur Obor

Apartament, 2 camere

49.6 mp 1 2026

131.600 EUR

Detalii
Exclusiv Discount

Bucuresti, Colentina, Bucur Obor

Apartament, 2 camere

55.9 mp 1 2026

131.600 EUR

Detalii
Apartamente 2 camere vandute in Colentina, Bucuresti Apartamente 2 camere de vanzare in Colentina, Bucuresti

Afla primul de cele mai bune oferte
inainte sa ajunga pe piata

Aboneaza-te la newsletter

Aboneaza-te la notificari