Dacia 2 camere 53 mp P 2023

SVN Residentialist Romania va prezinta spre vanzare un bloc boutique situat in inima orasului in zona centrala care iti oferta acces rapid catre toate arterele principale ale capitalei precum Str. Mihai Eminescu, Bulevardul Dacia si Universitate.

Apartamentele inteligent compartimentate de 2 si 3 camere din cadrul proiectului au fost gandite astfel incat sa ofere toate facilitatile unei vieti mondene in zona centrala dar si spatiu de relaxare si terase generoase.

Finisaje:
* Fatada Ventilata placata cu Vata Bazaltica + AlucoBond si Fibrociment
* Incalzire prin pardoseala -Tecce
* Centrale termice : Saunier Duval
* Tamplarie pvc Salamander tripan Blue Edition
* Lift Schindler
* Gresie si faianta Italia Marazzi
* Ceramica premium parti comune
* Usi Italia - Pinum - Usi intrare Italia - Pinum
* Parchet Triplu Stratificat
* Obiectele sanitare sunt de la Rocca cu baterii Hans Grohe
* Prize si intrerupatoare Bticino
* Video-interfon.

Parcarea este disponibila separat la suprateran la pretul de 10.000 plus Tva iar la subteran la pretul de 20.000 plus Tva.

Pentru mai multe detalii si vizionari te rog sa ne contactezi.

An constructie 2023

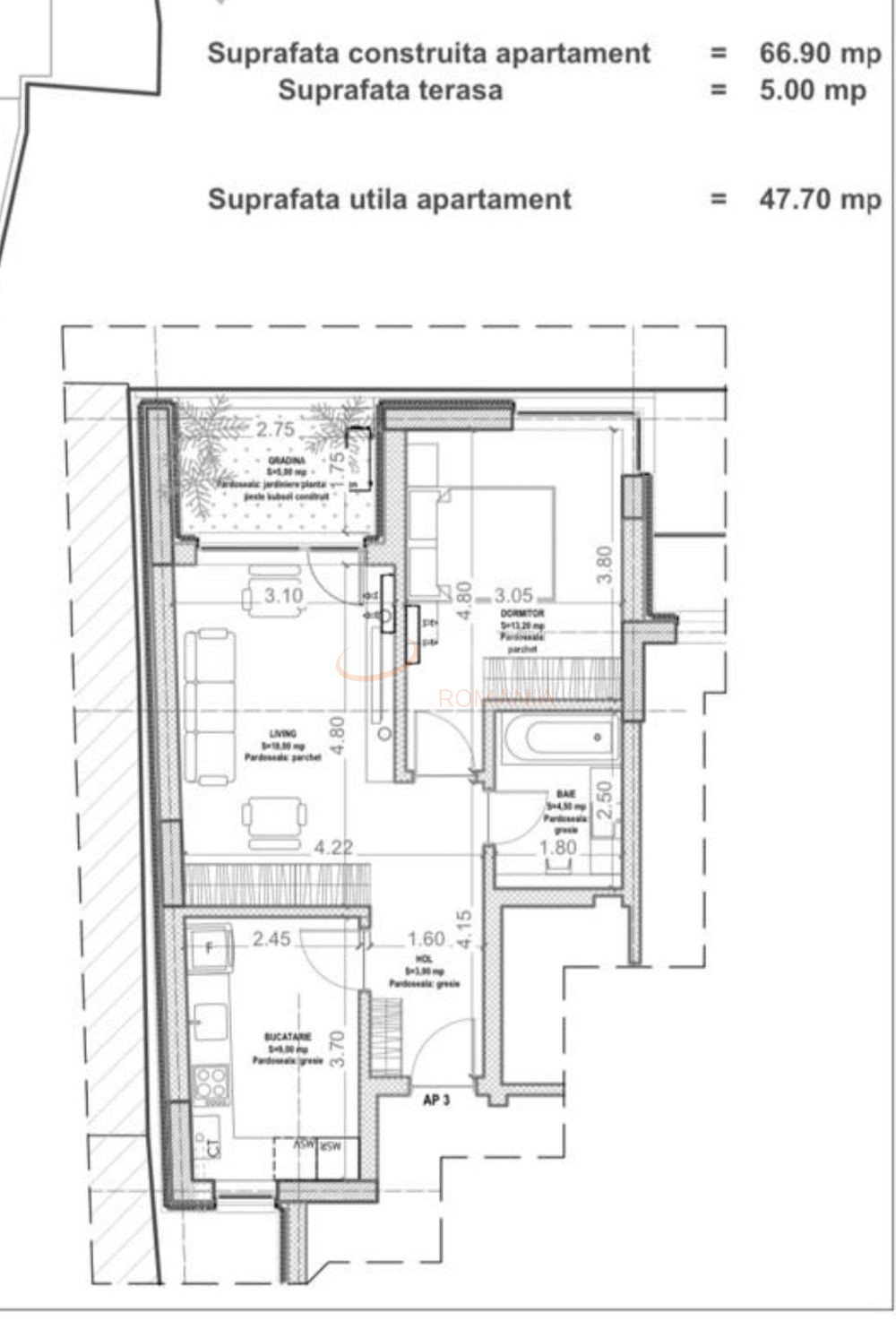
Suprafata construita 67 mp

Suprafata utila 53 mp

Suprafata terasa 5 mp

Regim Inaltime P / 3

Etaj P

Nr. camere 2 camere

Nr. bai 1

Nr. balcoane 1 balcon

Confort 1

Compartimentare Semidecomandat

Tip constructie In bloc

Status constructie Finalizat

Disponibila incepand cu 2023-08-03

Judet Bucuresti

Oras/ Sector Sector 2

Zona Dacia

Gps lat 44.446251

Gps lng 26.120140

Cablu TV

Curent electric

Supraveghere 24/7

Interfon

Geamuri termopan

Parchet

Gresie

Faianta

Gaz

Loc parcare exterior

Incalzire proprie

Incalzire prin pardoseala

Aer conditionat

Lift

2 camere Dacia Bloc Boutique

Proprietate vanduta

Ai o proprietate similara? Vinde-o cu noi.
Vinde apartament

Cod: REA1015966

Proprietati similare

Bucuresti, Ferdinand

Apartament, 2 camere

43.9 mp 5 2026

159.000 EUR

Detalii
Exclusiv Discount

Bucuresti, Colentina, Bucur Obor

Apartament, 2 camere

64.3 mp 4 2026

155.855 EUR

Detalii
Exclusiv Discount

Bucuresti, Colentina, Bucur Obor

Apartament, 2 camere

55.9 mp 1 2026

142.985 EUR

Detalii

Bucuresti, Colentina, Bucur Obor

Apartament, 2 camere

51 mp 6 2025

135.610 EUR

Detalii

Bucuresti, Calea Calarasilor

2 camere cu loc parcare subteran inclus

40.83 mp 1 2015

145.000 EUR

Detalii

Bucuresti, Ultracentral, Piata Universitatii

Apartament, 2 camere

75 mp 5 1969

155.000 EUR

Detalii

Bucuresti, Muncii, Piata Muncii

Apartament, 2 camere

52 mp P 1936

140.000 EUR

Detalii

Bucuresti, Ultracentral, Piata Romana

Apartament, 2 camere

43 mp 7 1960

140.000 EUR

Detalii
Apartamente 2 camere vandute in Dacia, Bucuresti Apartamente 2 camere de vanzare in Dacia, Bucuresti

Afla primul de cele mai bune oferte
inainte sa ajunga pe piata

Aboneaza-te la newsletter

Aboneaza-te la notificari