Doamna Ghica 2 camere 90 mp 11 2011

Avem placerea de a va propunem spre achizitie un apartament spatios de 2 camere situat in cadrul complexului Rose Garden din zona Colentina, complex ce a fost fnalizat in anul 2009.

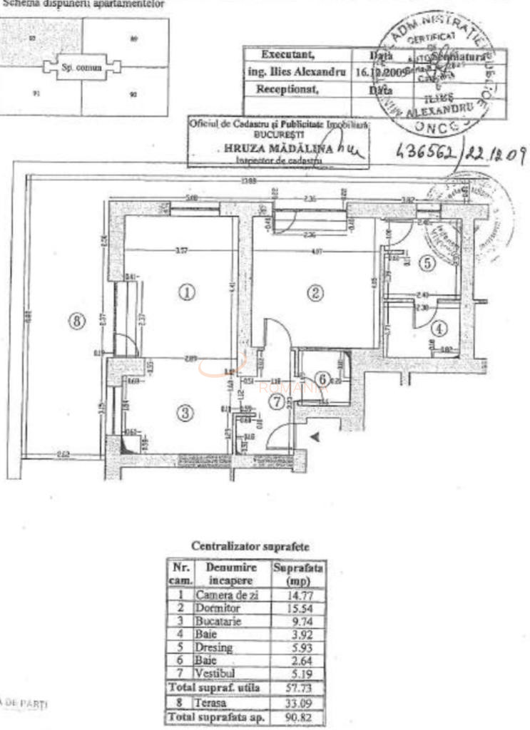
Apartamentul este situat la etajul 11 din 12 dispune de o impartire decomandata si este compus din living, bucatarie, un dormitor matrimonial cu baie proprie si dressing, terasa, hol, toate acestea insumand suprafata totala de 90 mp din care 33 mp terasa si 58 mp utili.

Proprietatea se ofera spre vanzare complet mobilata si utilata.

Un loc de parcare subteran si o boxa incluse in pretul de vanzare.

Apartamentul este in curs de renovare urmeaza sa fie montate usi noi, zugravit etc.


Complexul Rose Garden dispune de paza 24/24 asigurata de firma BGS, accesul in complex fiind securizat. In incinta complexului se gaseste si un loc de joaca pentru copii.

In vecinatate se afla Parcul Plumbuita, magazine, scoli, gradinite si alte spatii comerciale. Acces rapid la mijloacele de transport in comun: statia de metrou Bucur Obor, precum si statii RATB care se afla chiar in fata complexului rezidential.

Nu detinem informatii despre clasa energetica a imobilului. Certificatul energetic va fi disponibil la momentul vanzarii.

Pentru mai multe detalii si vizionari va stau la dispozitie.

An constructie 2011

Suprafata construita 104 mp

Suprafata utila 90 mp

Suprafata terasa 33

Regim Inaltime 11 / 12

Etaj 11

Nr. camere 2 camere

Nr. bai 2

Nr. balcoane 0 balcoane

Confort 1

Compartimentare Decomandat

Tip constructie In bloc

Status constructie Finalizat

Disponibila incepand cu 2023-09-28

Judet Bucuresti

Oras/ Sector Sector 2

Zona Doamna Ghica

Gps lat 44.457809

Gps lng 26.133383

Nr. terase 1

Curent electric

Interfon

Supraveghere video

Internet prin cablu

Supraveghere 24/7

Cablu TV

Internet Wireless

Detector de gaze

Geamuri termopan

Repartitoare

Parchet

Apometre

Boxa

Gresie

Loc parcare subteran

Faianta

Gaz

Calorifere

Incalzire proprie

WC serviciu

Mobilat

Aer conditionat

Bucatarie mobilata

Lift

Apartament Rose Garden Colentina parcare si boxa

Proprietate vanduta

Ai o proprietate similara? Vinde-o cu noi.
Vinde apartament

Cod: REA1015750

Proprietati similare

Exclusiv Discount

Bucuresti, Colentina, Bucur Obor

Apartament, 2 camere

64.3 mp 4 2026

155.855 EUR

Detalii

Bucuresti, Mosilor

Apartament, 2 camere

44.5 mp 3 2025

163.000 EUR

Detalii

Bucuresti, Colentina, Andronache

2 camere cu loc parcare subteran inclus

66 mp 7 2025

159.000 EUR

Detalii

Bucuresti, Tei

Apartament, 2 camere

46 mp 2 2018

160.000 EUR

Detalii

Bucuresti, Ferdinand

Apartament, 2 camere

43.9 mp 5 2026

159.000 EUR

Detalii

Bucuresti, Ferdinand, Foisorul De Foc

Apartament, 2 camere

50.15 mp 6 2026

169.000 EUR

Detalii

Bucuresti, Ferdinand, Foisorul De Foc

Apartament, 2 camere

50.15 mp 6 2026

169.000 EUR

Detalii

Bucuresti, Ferdinand

Apartament, 2 camere

54.8 mp 1 2026

174.000 EUR

Detalii
Apartamente 2 camere vandute in Colentina, Bucuresti Apartamente 2 camere de vanzare in Colentina, Bucuresti

Afla primul de cele mai bune oferte
inainte sa ajunga pe piata

Aboneaza-te la newsletter

Aboneaza-te la notificari