Ferdinand 2 camere 63.04 mp 1 2026

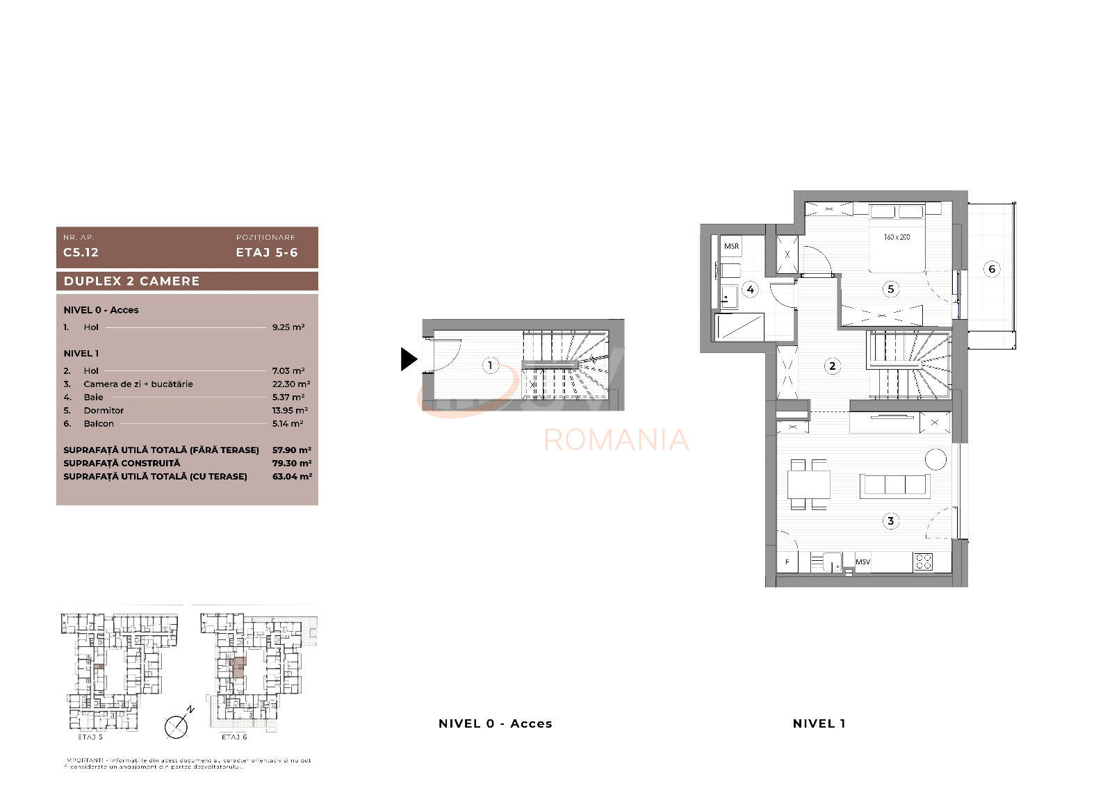
SVN Romania va propune spre achizitie un apartament de tip duplex de doua camere la etajele 5-6 in ansamblul rezidential in zona Foisorul de Foc, la 10 minute cu masina de Piata Universitatii si la 7 minute de mers pe jos de Metrou Piata Iancului.
Amplasarea ideala a proiectului va asigura proximitatea de centrul orasului, de mijloacele de transport in comun (metrou, tramvai, autobuz) si un acces facil catre institutii de invatamant, restaurante, locuri de socializare si alte puncte de interes.
Dezvoltat cu un pas in viitor, proiectul rezidential este unul din primele proiecte de aceasta dimensiune intr-o zona urbana din Romania ce utilizeaza integral sisteme inovatoare de incalzire cu pompe de caldura si panouri fotovoltaice, respectand standardul de cladire cu emisii zero (ZEB) ce urmeaza sa fie obligatoriu incepand cu anul 2030, aliniindu-se la obiectivul pe termen lung de neutralitate climatica.
Proiectul supus este un ansamblu rezidential format din 170 de apartamente (studiouri, 2, 3, 4, 5, 6 camere) si spatii comerciale spre Blvd Ferdinand.
Ansamblul va fi compus dintr-un imobil cu regimul de inaltime 2S+DS+P+4E+5ER+6-7 (2 subsoluri, Demisol, Parter si 7 etaje), cu 3 scari de intrare in bloc. Parcarile sunt pozitionate exclusiv la subteran pe 2 niveluri – total de 211 parcari.
Apartamentele de la etajele superioare o sa beneficieze de o panorama deosebita asupra orasului!

Pretul apartamentului este 195.000 eur+TVA

An constructie 2026

Suprafata construita 79.3 mp

Suprafata utila 63.04 mp

Suprafata terasa 5.14 mp

Regim Inaltime 1 / 7

Etaj 1

Nr. camere 2 camere

Nr. bai 1

Nr. balcoane 0 balcoane

Confort 1

Compartimentare Semidecomandat

Tip constructie In bloc

Status constructie Nefinalizat

Disponibila incepand cu 2025-10-01

Judet Bucuresti

Oras/ Sector Sector 2

Zona Ferdinand

Gps lat 44.442360

Gps lng 26.125491

Internet Wireless

Interfon

Supraveghere video

Curent electric

Geamuri termopan

Repartitoare

Parchet

Apometre

Gresie

Faianta

Incalzire prin pardoseala

Aer conditionat

Bloc reabiliat termic

Lift

Pompe de caldură

Panouri solare

Valoare proprietate (€)

Perioada (ani)

Procent avans (29.250 €)


Suma creditata 165.750

Dobanda 4.9%

Rata lunara 4.098 lei

Broker Imobiliar

Stefan Pop , Consultant imobiliar Vezi toate proprietatile

0317100200

Duplex 2 camere Bulevardul Ferdinand

Pret vanzare
195.000 €

Telefon Consultant imobiliar
0317100200

Cod: REA1023694

Proprietati similare

Bucuresti, Mosilor

Apartament, 2 camere

55 mp 3 2025

185.500 EUR

Detalii

Bucuresti, Colentina, Bucur Obor

Apartament, 2 camere

73.5 mp 2 2026

178.280 EUR

Detalii

Bucuresti, Dacia

Apartament, 2 camere

55 mp 3 2025

190.000 EUR

Detalii

Bucuresti, Stefan Cel Mare

Apartament, 2 camere

56 mp 6 2015

177.000 EUR

Detalii

Bucuresti, Stefan Cel Mare

Apartament, 2 camere

55 mp 1 2025

183.400 EUR

Detalii

Bucuresti, Decebal

Apartament, 2 camere

53.23 mp 1 2005

195.000 EUR

Detalii

Bucuresti, Stefan Cel Mare

Apartament, 2 camere

57 mp 1 1960

179.000 EUR

Detalii

Bucuresti, Stefan Cel Mare

Apartament, 2 camere

49.79 mp 1 1984

184.000 EUR

Detalii
Apartamente 2 camere vandute in Ferdinand, Bucuresti Apartamente 2 camere de vanzare in Ferdinand, Bucuresti

Afla primul de cele mai bune oferte
inainte sa ajunga pe piata

Aboneaza-te la newsletter

Aboneaza-te la notificari