Floreasca 2 camere 58 mp 20 2025

SVN Romania vă propune spre achiziție un apartament elegant de 2 camere, situat în cadrul complexului rezidențial premium UpSite Towers, în zona exclusivistă Floreasca.

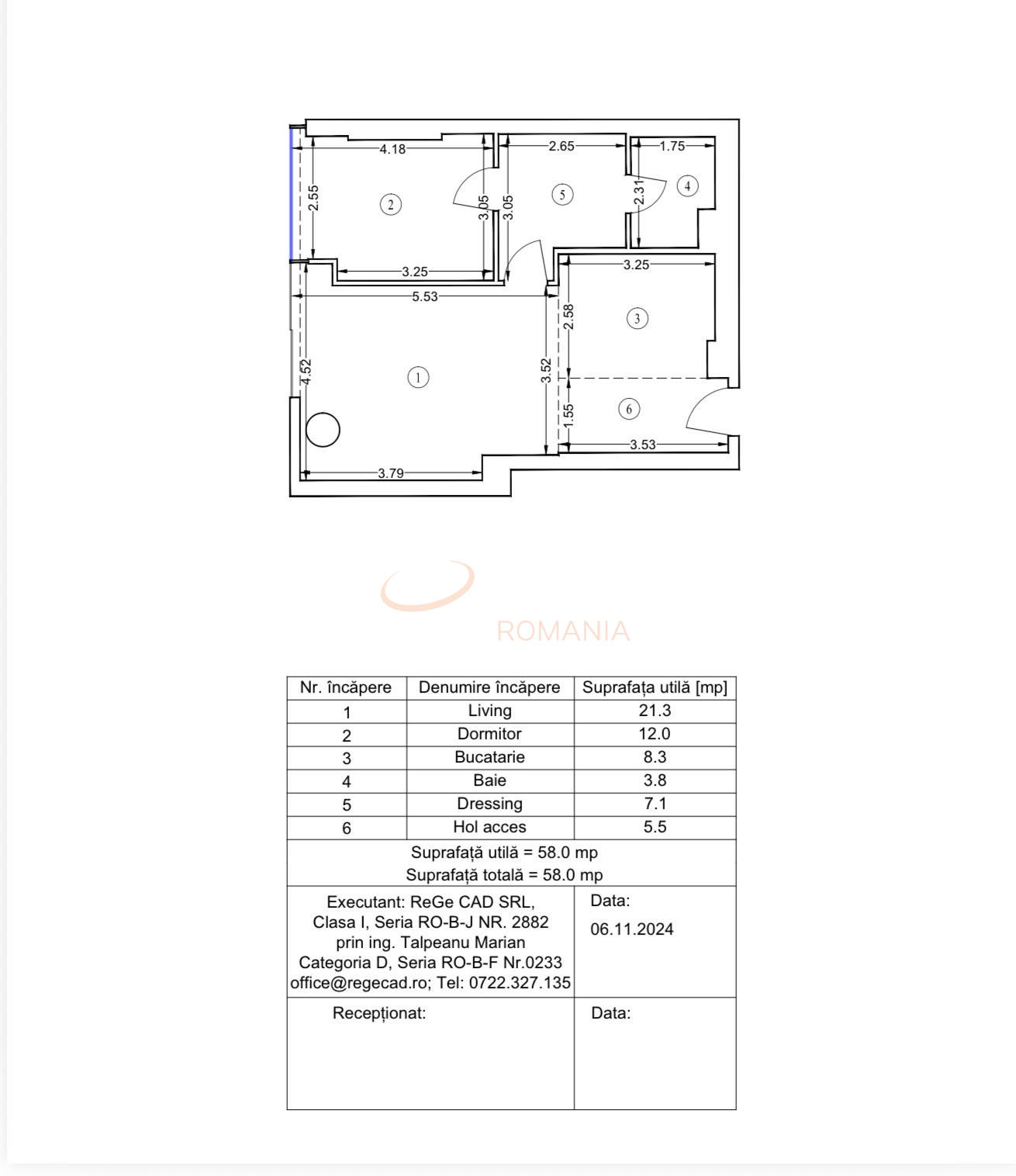
Apartamentul este poziționat la etajul 20 din 25 și beneficiază de o suprafață utilă de 58 mp, fiind ideal atât pentru locuire, cât și pentru investiție. Amplasarea oferă acces rapid către Lacul Floreasca și Parcul Floreasca, precum și către zona de business din nordul Capitalei.

Proprietatea este compartimentată eficient, incluzând un living luminos cu bucătărie open space și zonă de dining, un dormitor confortabil, o baie modernă și spații de depozitare bine gândite. Suprafața vitrată generoasă oferă lumină naturală din plin și pune în valoare vederea spectaculoasă către lac.

Un avantaj important îl reprezintă boxa inclusă în preț, ideală pentru depozitare suplimentară. De asemenea, locul de parcare subteran poate fi achiziționat opțional la prețul de 35.000 € + TVA.

Finisajele sunt premium, iar dotările includ sisteme moderne de climatizare și încălzire eficientă energetic, alături de soluții smart pentru un confort sporit.

Complexul UpSite Towers oferă facilități de top: piscină interioară, sală de fitness complet echipată, spații de relaxare și servicii de concierge disponibile 24/7, asigurând un stil de viață exclusivist și confortabil.

Această proprietate reprezintă alegerea ideală pentru cei care își doresc un apartament modern, cu vedere deosebită, într-una dintre cele mai bune locații din București.

La pret se va adauga TVA-ul.

Pentru mai multe detalii și programarea unei vizionări, nu ezitați să mă contactați.

An constructie 2025

Suprafata construita 66.07 mp

Suprafata utila 58 mp

Regim Inaltime 20 / 25

Etaj 20

Nr. camere 2 camere

Nr. bai 1

Nr. balcoane 0 balcoane

Confort Lux

Compartimentare Decomandat

Tip constructie Bloc

Status constructie Finalizat

Disponibila incepand cu 2026-05-12

Judet Bucuresti

Oras/ Sector Sector 2

Zona Floreasca

Gps lat 44.476395

Gps lng 26.101440

Interfon

Acoperis mansardat

Supraveghere 24/7

Internet Wireless

Internet prin cablu

Curent electric

Cablu TV

Sistem de alarma

Supraveghere video

Geamuri termopan

Parchet

Boxa

Gresie

Faianta

Loc parcare exterior

Incalzire prin pardoseala

Incalzire proprie

Aer conditionat

Lift

Valoare proprietate (€)

Perioada (ani)

Procent avans (49.500 €)


Suma creditata 280.500

Dobanda 4.9%

Rata lunara 6.935 lei

Broker Imobiliar

Andreea Amarie , Consultant imobiliar Vezi toate proprietatile

0317100200

2 CAMERE UPSITE CU VEDERE CATRE LAC

Pret vanzare
330.000 €

Telefon Consultant imobiliar
0317100200

Cod: REA1028681

Proprietati similare

Bucuresti, Floreasca

Apartament, 2 camere

51.08 mp 20 2025

315.000 EUR

Detalii

Bucuresti, Floreasca

Apartament, 2 camere

58.7 mp 20 2026

330.000 EUR

Detalii

Bucuresti, Herastrau

Apartament, 2 camere

61 mp 7 2019

298.900 EUR

Detalii

Bucuresti, Herastrau

Apartament, 2 camere

54 mp 4 2019

305.000 EUR

Detalii

Bucuresti, Floreasca, Barbu Vacarescu

Apartament, 2 camere

63.96 mp 9 2025

308.000 EUR

Detalii

Bucuresti, Floreasca

Apartament, 2 camere

53 mp 9 2023

305.000 EUR

Detalii

Bucuresti, Herastrau

Apartament, 2 camere

58 mp 1 2022

344.990 EUR

Detalii

Bucuresti, Floreasca

Apartament, 2 camere

59 mp 10 2022

317.000 EUR

Detalii
Apartamente 2 camere vandute in Floreasca, Bucuresti Apartamente 2 camere de vanzare in Floreasca, Bucuresti

Afla primul de cele mai bune oferte
inainte sa ajunga pe piata

Aboneaza-te la newsletter

Aboneaza-te la notificari