Iancului 2 camere 35.95 mp 10 2010

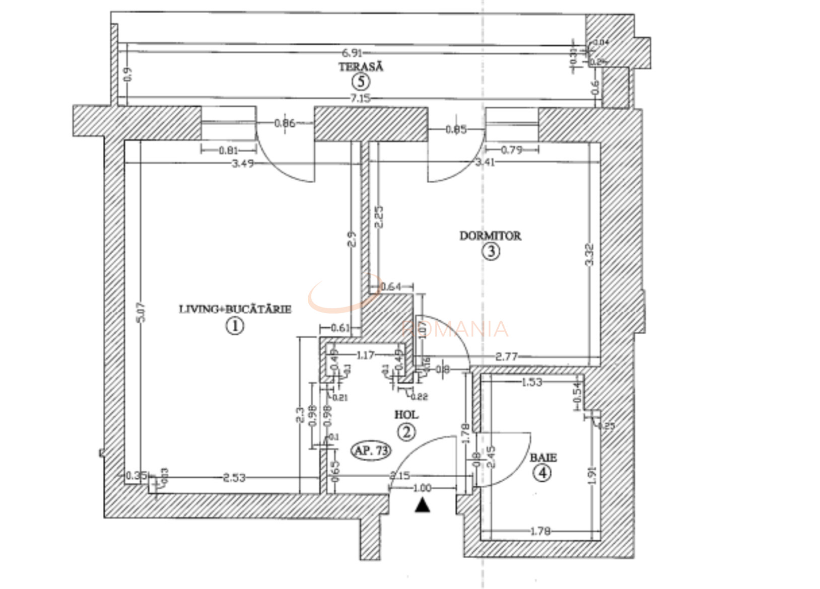
SVN Romania, va propune spre vanzare un apartament cu 2 camere, decomandat cu o suprafata utila de 35,95 mp + loggie de 6,39 mp.

Apartamentul se afla la etajul 10.

Caracteristici:
- Utilitati generale: curent electric, apa, canalizare, gaz, catv.
- Sistem incalzire: centrala proprie, calorifere.
- Stare imobil: finisat.

Vecinatati: METROU IANCULUI, MEGA IMAGE, MAGAZIN NON-STOP, PROFI, LIDL, PARCUL GRADINA ENGLEZA, SCOALA GIMNAZIALA NR.46, spatii comerciale, financiare, educationale etc.

Acces facil la mijloacele de transport in comun.

Disponibil imediat!

Pentru mai multe informatii, contactul meu va sta la dispozitie!

An constructie 2010

Suprafata construita 60 mp

Suprafata utila 35.95 mp

Suprafata terasa 6.39 mp

Regim Inaltime 10 / 10

Etaj 10

Nr. camere 2 camere

Nr. bai 1

Nr. balcoane 1 balcon

Confort 1

Compartimentare Decomandat

Tip constructie In bloc

Status constructie Finalizat

Disponibila incepand cu 2023-03-24

Judet Bucuresti

Oras/ Sector Sector 2

Zona Iancului

Gps lat 44.442156

Gps lng 26.133286

Internet prin fibra optica

Supraveghere video

Cablu TV

Interfon

Supraveghere 24/7

Curent electric

Geamuri termopan

Repartitoare

Parchet

Apometre

Gresie

Faianta

Incalzire proprie

Aer conditionat

Lift

2 camere decomandat bloc nou

Proprietate vanduta

Ai o proprietate similara? Vinde-o cu noi.
Vinde apartament

Cod: REA1014294

Proprietati similare

Discount

Bucuresti, Ultracentral, Universitate (s1)

Apartament, 2 camere

38 mp 7 1930

65.000 EUR

Detalii

Bucuresti, Tei, Lacul Tei

Apartament, 2 camere

36.6 mp 2 1963

60.000 EUR

Detalii

Bucuresti, Giulesti

Apartament, 2 camere

56 mp 4 1962

66.000 EUR

Detalii
Apartamente 2 camere vandute in Iancului, Bucuresti Apartamente 2 camere de vanzare in Iancului, Bucuresti

Afla primul de cele mai bune oferte
inainte sa ajunga pe piata

Aboneaza-te la newsletter

Aboneaza-te la notificari