Lacul Tei 2 camere 48 mp 8 1986

SVN Romania va propune spre vanzare un apartament de 2 camere in zona Lacul Tei.

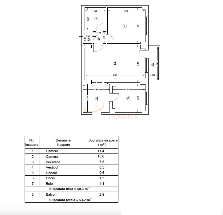
Apartamentul se afla la etajul 8/8, intr-un bloc construit in 1986, decomandat, cu o suprafata utila de 48 mp si o logie de 3.22 mp.

Dispune de contorizare individuala pentru curent, apa rece si caldura (exista repartitoare pe calorifere) iar pentru apa calda este instalat boiler, rulouri electrice exterioare si 2 unitati de aer conditionat.

De asemenea, teava de gaz pentru instalarea centralei termice este trasa pana la etajul 7.

Imobilul se vinde complet mobilat si utilat, iar in prezent lucrandu-se la alte mici finisaje moderne.

Din constructie acesta beneficiaza de 2 spatii pentru depozitare pe hol si de o camara in bucatarie.

Blocul dispune de 2 lift-uri, a fost reabilitat in anul 2019, inclusiv toata membrana hidroizolatiei acoperisului a fost complet refacuta.

In apropiere sunt 3 puncte termice.

Este pozitionat pe Sud iar costurile de intretinere sunt in general mici.

Pentru mai multe informatii sau pentru programarea vizionarilor, contactul meu va sta la dispozitie!

An constructie 1986

Suprafata construita 58.9 mp

Suprafata utila 48 mp

Suprafata terasa 3.22 mp

Regim Inaltime 8 / 8

Etaj 8

Nr. camere 2 camere

Nr. bai 1

Nr. balcoane 1 balcon

Confort 1

Compartimentare Decomandat

Tip constructie In bloc

Status constructie Finalizat

Disponibila incepand cu 2026-01-21

Judet Bucuresti

Oras/ Sector Sector 2

Zona Lacul Tei

Gps lat 44.460224

Gps lng 26.122874

Internet prin fibra optica

Interfon

Detector de gaze

Supraveghere video

Geamuri termopan

Repartitoare

Balcon inchis

Parchet

Apometre

Gresie

Faianta

Gaz

Calorifere

Mobilat

Aer conditionat

Bucatarie mobilata

Bloc reabiliat termic

Lift

Valoare proprietate (€)

Perioada (ani)

Procent avans (17.700 €)


Suma creditata 100.300

Dobanda 4.9%

Rata lunara 2.480 lei

Broker Imobiliar

Anamaria Enoiu , Consultant imobiliar Vezi toate proprietatile

0317100200

Apartament 2 camere I Bloc 1986 I Lacul Tei I De vanzare

Pret vanzare
118.000 €

Telefon Consultant imobiliar
0317100200

Cod: REA1024276

Proprietati similare

Bucuresti, Tei, Lacul Tei

Apartament, 2 camere

49 mp P 1985

117.000 EUR

Detalii

Bucuresti, Tei, Lacul Tei

Apartament, 2 camere

53.5 mp 10 1980

119.000 EUR

Detalii

Bucuresti, Stefan Cel Mare

Apartament, 2 camere

52 mp 4 1962

115.000 EUR

Detalii

Bucuresti, Iancului

Apartament, 2 camere

47.77 mp 7 1963

117.000 EUR

Detalii

Bucuresti, Floreasca, Barbu Vacarescu

2 camere cu loc parcare exterior inclus

48 mp 2 1980

106.900 EUR

Detalii

Bucuresti, Floreasca, Barbu Vacarescu

2 camere cu loc parcare exterior inclus

48 mp 2 1980

129.000 EUR

Detalii
Exclusiv Discount

Bucuresti, Ultracentral, Piata Victoriei

Apartament, 2 camere

43 mp 2 1961

126.990 EUR

Detalii

Bucuresti, Ultracentral, Piata Romana

Apartament, 2 camere

52 mp 2 1940

125.000 EUR

Detalii
Apartamente 2 camere vandute in Tei, Bucuresti Apartamente 2 camere de vanzare in Tei, Bucuresti

Afla primul de cele mai bune oferte
inainte sa ajunga pe piata

Aboneaza-te la newsletter

Aboneaza-te la notificari