Lacul Tei 4 camere 82.42 mp 2 1981

SVN Romania va prezinta spre vanzare un apartament de 4 camere, situat in zona Lacul Tei.

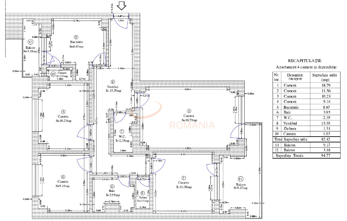
Apartamentul este amplasat la etajul 2 din 10, intr-un bloc construit in anul 1981, decomandat, cu o suprafata utila de 82,42 mp si doua balcoane inchise, cu o suprafata totala de 12,35 mp.

Blocul a fost reabilitat termic in perioada 2018–2020.

Compartimentarea este urmatoarea: hol cu acces catre fiecare incapere, living cu balcon, bucatarie cu balcon, trei dormitoare, doua bai complete si doua debarale.

Apartamentul necesita renovare integrala, nefiind realizate imbunatatiri.

In prezent se desfasoara procesul de eliberare completa a apartamentului.

Vederea este mixta: catre bulevard sunt orientate livingul si un dormitor, iar catre partea din spate bucataria si celelalte doua dormitoare.

Pozitionarea este una excelenta: la un minut de mers pe jos se afla Parcul Circului, supermarketuri, clinici medicale, gradinite si scoli. Lidl este amplasat chiar vizavi de bloc, iar statia de metrou „Stefan cel Mare” se afla la o distanta de 15 minute de mers pe jos.

Parcul Lacul Tei si Parcul Plumbuita sunt situate la aproximativ 5 minute de mers pietonal.

Pentru detalii suplimentare sau pentru programarea unei vizionari, va stau la dispozitie!

An constructie 1981

Suprafata construita 108.98 mp

Suprafata utila 82.42 mp

Suprafata terasa 12.35 mp

Regim Inaltime 2 / 10

Etaj 2

Nr. camere 4 camere

Nr. bai 2

Nr. balcoane 2 balcoane

Confort 1

Compartimentare Decomandat

Tip constructie In bloc

Status constructie Finalizat

Disponibila incepand cu 2025-09-12

Judet Bucuresti

Oras/ Sector Sector 2

Zona Lacul Tei

Gps lat 44.459915

Gps lng 26.114026

Interfon

Geamuri termopan

Balcon inchis

Gaz

Calorifere

Fara imbunatatiri

Bloc reabiliat termic

Lift

Valoare proprietate (€)

Perioada (ani)

Procent avans (37.500 €)


Suma creditata 212.500

Dobanda 4.9%

Rata lunara 5.254 lei

Broker Imobiliar

Cristian Vasile , Consultant imobiliar Vezi toate proprietatile

0317100200

4 Camere I Decomandat I Lacul Tei I 1981 I Parcul Circului I De vanzare

Pret vanzare
250.000 €

Telefon Consultant imobiliar
0317100200

Cod: REA1025052

Proprietati similare

Bucuresti, Colentina, Bucur Obor

Apartament, 4 camere

109.9 mp 9 2026

255.580 EUR

Detalii

Bucuresti, Colentina, Bucur Obor

Apartament, 4 camere

95.5 mp 10 2026

250.775 EUR

Detalii

Bucuresti, Colentina

Apartament, 4 camere

112 mp 2 2025

260.250 EUR

Detalii

Bucuresti, 1 Mai, Titulescu

Apartament, 4 camere

79.36 mp 4 1979

260.000 EUR

Detalii

Bucuresti, 1 Mai

Apartament, 4 camere

80 mp 3 1981

230.000 EUR

Detalii

Bucuresti, Ultracentral, Cismigiu

Apartament, 4 camere

88.43 mp P 1918

259.000 EUR

Detalii

Bucuresti, 1 Mai

Apartament, 4 camere

80 mp 8 1982

247.000 EUR

Detalii

Bucuresti, Ultracentral, Kogalniceanu

Apartament, 4 camere

140 mp 1 1895

260.000 EUR

Detalii
Apartamente 4 camere vandute in Tei, Bucuresti Apartamente 4 camere de vanzare in Tei, Bucuresti

Afla primul de cele mai bune oferte
inainte sa ajunga pe piata

Aboneaza-te la newsletter

Aboneaza-te la notificari