Mosilor 2 camere 82 mp D 2010

SVN Residentialist va propune spre vanzare un apartament de 2 camere situat in sectorul 2, zona Mosilor.

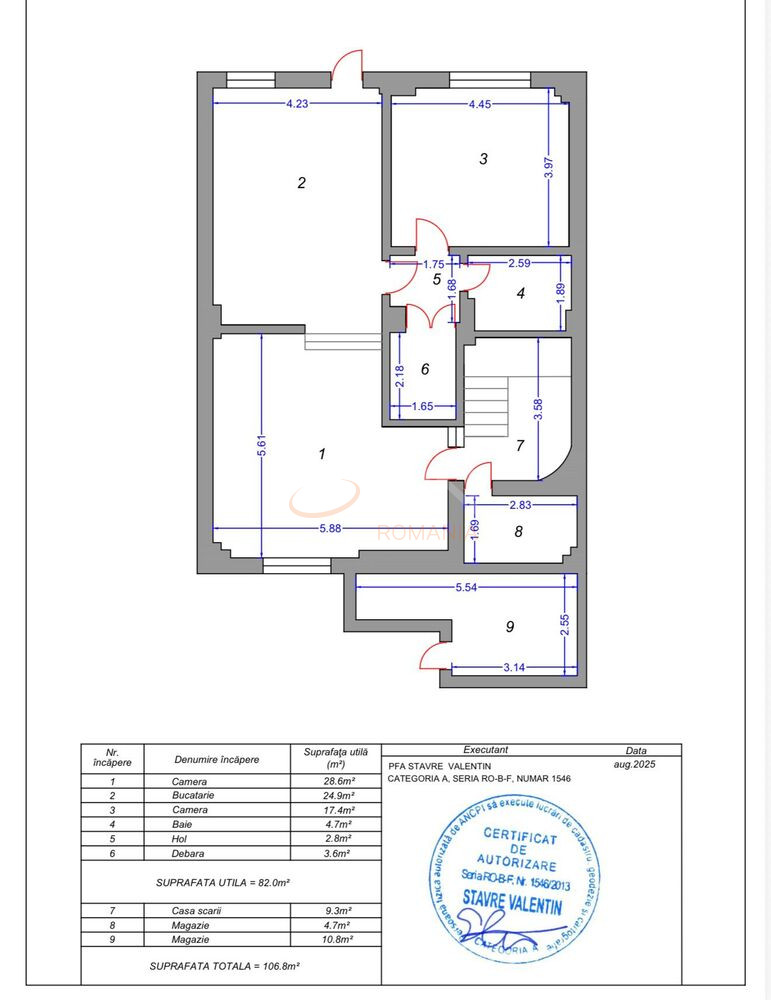
Cu un mix rar de spatiu generos si functionalitate, apartamentul ofera 82 mp utili inteligent compartimentati la nivel de demisol, un avantaj real pentru cei care cauta confort urban fara compromisuri.

Este echipat cu aer conditionat, dispune de o debara practica si nu una, ci doua magazii + inca 2 spatii suplimentare de depozitare, perfecte pentru a organiza tot ce ai nevoie.

Locatia e un punct forte in sine: acces instant la statiile tramvai si autobuz, la cateva minute de magazine, restaurante.

Un apartament cu potential real, fie ca il vezi ca un camin primitor sau o investitie smart in inima orasului.

Nu ezitati sa ne contactati pentru mai multe detalii si vizionari!

An constructie 2010

Suprafata construita 106.08 mp

Suprafata utila 82 mp

Regim Inaltime D / 3

Etaj D

Nr. camere 2 camere

Nr. bai 1

Nr. balcoane 0 balcoane

Confort 1

Compartimentare Decomandat

Tip constructie In bloc

Status constructie Finalizat

Disponibila incepand cu 2025-11-28

Judet Bucuresti

Oras/ Sector Sector 2

Zona Mosilor

Gps lat 44.445764

Gps lng 26.123028

Supraveghere video

Sistem de alarma

Interfon

Cablu TV

Curent electric

Internet prin cablu

Internet Wireless

Geamuri termopan

Parchet

Gresie

Telefon

Faianta

Gaz

Calorifere

Incalzire proprie

Mobilat

Aer conditionat

Bucatarie mobilata

Lift

Valoare proprietate (€)

Perioada (ani)

Procent avans (33.000 €)


Suma creditata 187.000

Dobanda 4.9%

Rata lunara 4.624 lei

Broker Imobiliar

Andrei Dicu , Consultant imobiliar Vezi toate proprietatile

0317100200

Apartament 2 Camere I De Vanzare I Mosilor

Pret vanzare
220.000 €

Telefon Consultant imobiliar
0317100200

Cod: REA1026614

Proprietati similare

Bucuresti, Mosilor

Apartament, 2 camere

57 mp 4 2025

233.500 EUR

Detalii

Bucuresti, Mosilor

Apartament, 2 camere

47.5 mp P 2025

218.000 EUR

Detalii

Bucuresti, Colentina, Bucur Obor

Apartament, 2 camere

90.2 mp 7 2026

214.745 EUR

Detalii

Bucuresti, Dacia, Eminescu

Apartament, 2 camere

63.36 mp 1 2025

205.000 EUR

Detalii

Bucuresti, Decebal

Apartament, 2 camere

59 mp 3 2026

225.000 EUR

Detalii

Bucuresti, Unirii, Piata Unirii (s3)

Apartament, 2 camere

47 mp 2 2023

240.000 EUR

Detalii

Bucuresti, Floreasca, Barbu Vacarescu

Apartament, 2 camere

59.62 mp 3 2021

239.000 EUR

Detalii

Bucuresti, Floreasca, Barbu Vacarescu

Apartament, 2 camere

62 mp 2 2025

225.000 EUR

Detalii
Apartamente 2 camere vandute in Mosilor, Bucuresti Apartamente 2 camere de vanzare in Mosilor, Bucuresti

Afla primul de cele mai bune oferte
inainte sa ajunga pe piata

Aboneaza-te la newsletter

Aboneaza-te la notificari