Pantelimon 4 camere 86 mp 7 1976

SVN Romania va ofera spre vanzare un apartament de 4 camere ce are o vedere panoramica spectaculoasa, in zona Pantelimon, vis-a-vis de centrul comercial Mega Mall.

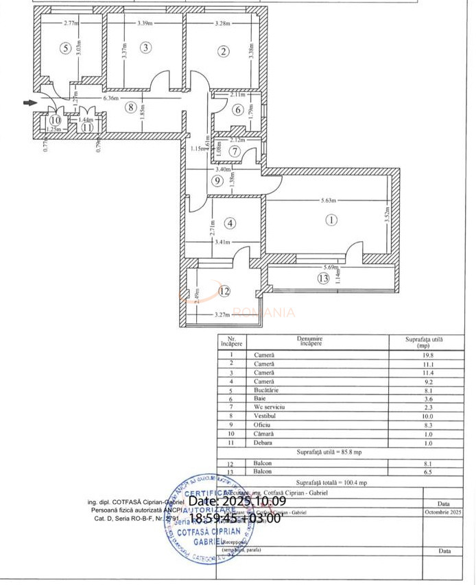
Apartamentul este situat la etajul 7 din 10 al unui imobil construit in anul 1976 (bloc anvelopat), este decomandat, fiind compus din: hol acces, living, bucatarie inchisa, baie (cu geam), 3 dormitoare, 2 balcoane, baie de serviciu (cu geam) si 2 debarale, toate acestea avand suprafata totala de 100 mp.

Apartamentul este spatios, foarte luminos, orientare S-E si se vinde complet mobilat si utilat. Detine 2 aparate de aer conditionat si boiler.

Imobilul nu are risc seismic, fiind situat intr-o zona dezvoltata la maxim cu o legatura minunata de transport in comun cu linii de autobuze, troleibuze, tramvaie si cu statia de metrou Costin Georgian (la doar 15 minute de mers pe jos).
Vis-a-vis de bloc regasim centrul comercial Mega Mall, Kaufland, benzinaria OMV si Arena Nationala la cateva minute.

Pentru mai multe detalii sau vizionari va stau la dispozitie.

An constructie 1976

Suprafata construita 100 mp

Suprafata utila 86 mp

Regim Inaltime 7 / 10

Etaj 7

Nr. camere 4 camere

Nr. bai 2

Nr. balcoane 2 balcoane

Confort 1

Compartimentare Decomandat

Tip constructie In bloc

Status constructie Finalizat

Disponibila incepand cu 2025-12-15

Judet Bucuresti

Oras/ Sector Sector 2

Zona Pantelimon

Gps lat 44.443672

Gps lng 26.154422

Supraveghere video

Detector de gaze

Interfon

Cablu TV

Curent electric

Internet Wireless

Geamuri termopan

Repartitoare

Parchet

Apometre

Gresie

Faianta

Calorifere

WC serviciu

Mobilat

Aer conditionat

Bucatarie mobilata

Lift

Valoare proprietate (€)

Perioada (ani)

Procent avans (26.850 €)


Suma creditata 152.150

Dobanda 4.9%

Rata lunara 3.762 lei

Broker Imobiliar

Raluca Utica , Consultant imobiliar Vezi toate proprietatile

0317100200

Apartament 4 camere Mega Mall - Pantelimon

Pret vanzare
179.000 €

Telefon Consultant imobiliar
0317100200

Cod: REA1026265

Proprietati similare

Bucuresti, Ferdinand

Apartament, 4 camere

79 mp 1 1984

186.900 EUR

Detalii

Bucuresti, Unirii, Unirii (s3)

Apartament, 4 camere

89 mp 1 1936

175.000 EUR

Detalii

Bucuresti, Mosilor

Apartament, 4 camere

81 mp 4 1986

185.000 EUR

Detalii

Bucuresti, Stefan Cel Mare

Apartament, 4 camere

81 mp 10 1981

195.000 EUR

Detalii

Bucuresti, Ultracentral, Piata Romana

Apartament, 4 camere

128 mp 2 1947

180.000 EUR

Detalii

Bucuresti, Unirii, Piata Unirii (s4)

Apartament, 4 camere

92 mp 2 1930

179.000 EUR

Detalii

Bucuresti, Titan, Theodor Pallady

Apartament, 4 camere

97 mp P 2027

183.294 EUR

Detalii

Bucuresti, 1 Mai, Turda

Apartament, 4 camere

86.65 mp 6 1983

190.000 EUR

Detalii
Apartamente 4 camere vandute in Pantelimon, Bucuresti Apartamente 4 camere de vanzare in Pantelimon, Bucuresti

Afla primul de cele mai bune oferte
inainte sa ajunga pe piata

Aboneaza-te la newsletter

Aboneaza-te la notificari