Stefan Cel Mare 2 camere 53 mp 7 1982

Avem deosebita placere de a va oferi spre vanzare un apartament de 2 camere aflat la etajul 7 din 10, ce are o vedere panoramica spectaculoasa, deosebit ca amplasare, zona Dorobanti - Perla.

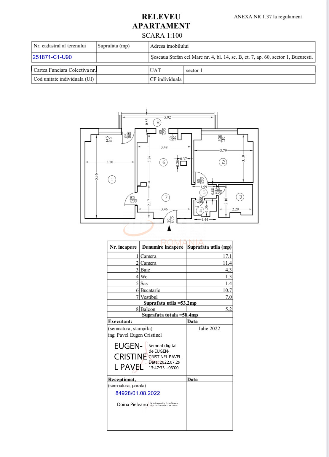
Apartamentul este decomandat, fiind compus din: hol, bucatarie, living, balcon cu intrare din bucatarie si din living, dormitor si 2 bai din care una de serviciu, toate acestea avand o suprafata totala de 58 mp.

Apartamentul este renovat integral (inclusiv instalatie electrica, termica si sanitara), se vinde complet mobilat si utilat, dispune de camere luminoase, parchet, gresie, faianta, doua aere conditionate, interfon.
In balcon sunt montate calorifere dar fiind un apartament foarte calduros iarna nu s-au folosit niciodata.

Pozitionarea lui ultracentrala faciliteaza accesul rapid catre scoli, statii de metrou si autobuz, centre medicale, banci, supermarket-uri. In imediata apropiere se regasesc numeroase restaurante, cafenele si baruri renumite, precum si cladiri de birouri.

Nu detinem informatii despre clasa energetica in care este incadrat imobilul. Certificatul energetic va fi disponibil la vanzare.

Pentru mai multe detalii sau vizionari va stau la dispozitie.

An constructie 1982

Suprafata construita 62 mp

Suprafata utila 53 mp

Suprafata terasa 5 mp

Regim Inaltime 7 / 10

Etaj 7

Nr. camere 2 camere

Nr. bai 2

Nr. balcoane 1 balcon

Confort 1

Tip constructie In bloc

Status constructie Finalizat

Disponibila incepand cu 2022-08-31

Judet Bucuresti

Oras/ Sector Sector 2

Zona Stefan Cel Mare

Gps lat 44.452744

Gps lng 26.099748

Internet Wireless

Curent electric

Detector de gaze

Interfon

Internet prin cablu

Cablu TV

Geamuri termopan

Balcon inchis

Parchet

Gresie

Faianta

WC serviciu

Mobilat

Aer conditionat

Bucatarie mobilata

Bloc reabiliat termic

Lift

Apartament 2 camere Dorobanti - Perla

Proprietate vanduta

Ai o proprietate similara? Vinde-o cu noi.
Vinde apartament

Cod: REA1006767

Proprietati similare

Bucuresti, Dorobanti

Apartament, 2 camere

41.56 mp 7 1976

134.000 EUR

Detalii

Bucuresti, Floreasca

Apartament, 2 camere

48 mp 3 1960

130.000 EUR

Detalii
Exclusiv Discount

Bucuresti, Ultracentral, Piata Victoriei

Apartament, 2 camere

43 mp 2 1961

126.990 EUR

Detalii

Bucuresti, 1 Mai

Apartament, 2 camere

47.01 mp 7 1963

127.500 EUR

Detalii

Bucuresti, Ultracentral, Piata Romana

Apartament, 2 camere

52 mp 2 1940

125.000 EUR

Detalii

Bucuresti, Stefan Cel Mare

Apartament, 2 camere

52 mp 4 1962

115.000 EUR

Detalii

Bucuresti, Ultracentral, Stirbei Voda

Apartament, 2 camere

43 mp 4 1960

125.000 EUR

Detalii

Bucuresti, Ultracentral, Universitate (s1)

Apartament, 2 camere

41.95 mp 6 1960

124.000 EUR

Detalii
Apartamente 2 camere vandute in Stefan Cel Mare, Bucuresti Apartamente 2 camere de vanzare in Stefan Cel Mare, Bucuresti

Afla primul de cele mai bune oferte
inainte sa ajunga pe piata

Aboneaza-te la newsletter

Aboneaza-te la notificari