Stefan Cel Mare 2 camere 58 mp 5 1982

SVN va propune spre vanzare un apartament cu 2 camere, situat pe strada Polona, intr-una dintre cele mai apreciate zone centrale ale Capitalei, recunoscuta pentru arhitectura sa eleganta si proximitatea fata de Piata Romana, Dorobanti si zona de business.

Apartamentul este amplasat la etajul 5 din 8 al unui imobil anvelopat termic, ceea ce asigura un consum redus de energie si un confort termic optim pe tot parcursul anului. Proprietatea a fost recent renovata si se vinde complet mobilata si utilata, fiind pregatita pentru mutare imediata sau pentru investitie in scop locativ.

Designul este modern, cu finisaje de calitate si o compartimentare eficienta, oferind un spatiu ideal atat pentru locuire, cat si pentru inchiriere.

Zona Polona ofera acces facil la mijloace de transport in comun, restaurante, cafenele, centre universitare si comerciale, precum si la multiple puncte de interes cultural si profesional.

Pentru mai multe detalii sau pentru a programa o vizionare, nu ezitati sa ne contactati!

An constructie 1982

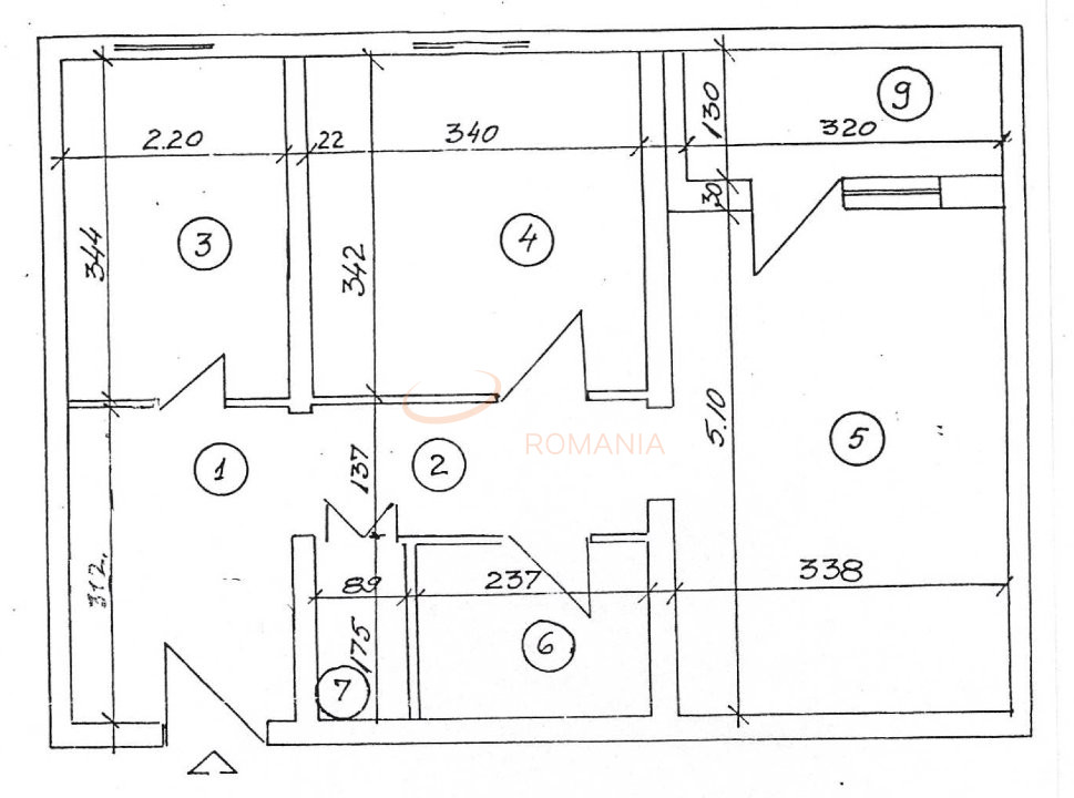
Suprafata construita 67 mp

Suprafata utila 58 mp

Regim Inaltime 5 / 8

Etaj 5

Nr. camere 2 camere

Nr. bai 1

Nr. balcoane 0 balcoane

Confort 1

Compartimentare Decomandat

Tip constructie In bloc

Status constructie Finalizat

Disponibila incepand cu 2025-04-29

Judet Bucuresti

Oras/ Sector Sector 2

Zona Stefan Cel Mare

Gps lat 44.452716

Gps lng 26.100697

Internet prin fibra optica

Internet prin cablu

Curent electric

Interfon

Internet Wireless

Geamuri termopan

Repartitoare

Balcon inchis

Parchet

Apometre

Gresie

Faianta

Gaz

Calorifere

Mobilat

Aer conditionat

Bucatarie mobilata

Bloc reabiliat termic

Lift

Valoare proprietate (€)

Perioada (ani)

Procent avans (27.000 €)


Suma creditata 153.000

Dobanda 4.9%

Rata lunara 3.783 lei

Broker Imobiliar

Dan Ghita , Consultant imobiliar Vezi toate proprietatile

0317100200

Apartament 2 Camere I De Vanzare I Dorobanti I Victoriei I Stefan cel Mare

Pret vanzare
180.000 €

Telefon Consultant imobiliar
0317100200

Cod: REA1023536

Proprietati similare

Bucuresti, Aviatiei

Apartament, 2 camere

50 mp 1 2026

175.000 EUR

Detalii

Bucuresti, Ultracentral, Piata Victoriei

Apartament, 2 camere

48.9 mp 4 1962

195.000 EUR

Detalii

Bucuresti, Floreasca

2 camere cu loc parcare exterior inclus

45.52 mp 1 1960

189.000 EUR

Detalii

Bucuresti, Ultracentral, Magheru

Apartament, 2 camere

70 mp 2 1921

180.000 EUR

Detalii

Bucuresti, Stefan Cel Mare

Apartament, 2 camere

55 mp 1 2025

183.400 EUR

Detalii

Bucuresti, Floreasca

Apartament, 2 camere

48 mp 3 1960

169.000 EUR

Detalii

Bucuresti, Ultracentral, Stirbei Voda

Apartament, 2 camere

41 mp 1 1960

170.000 EUR

Detalii

Bucuresti, Dacia

Apartament, 2 camere

55 mp 3 2025

190.000 EUR

Detalii
Apartamente 2 camere vandute in Stefan Cel Mare, Bucuresti Apartamente 2 camere de vanzare in Stefan Cel Mare, Bucuresti

Afla primul de cele mai bune oferte
inainte sa ajunga pe piata

Aboneaza-te la newsletter

Aboneaza-te la notificari