Tei 2 camere 60 mp 6 2010

SVN Romania va propune spre vanzare un apartament spatios si luminos de doua camere situat intr-un imobil construit recent, chiar vis-a-vis de Parcul Circului.

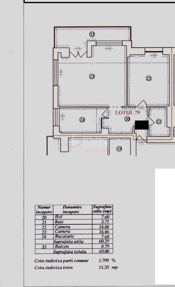
Fiind un imobil finalizat in anul 2010, apartamentul dispune de o suprafata utila generoasa, respectiv 60 mp utili, din care livingul de 27mp iar dormitorul de 15 mp. Proprietatea dispune de o compartimentare decomandata, din hol intrandu-se in fiecare incapere. Apartamentul beneficiaza de liniste si apusuri de soare splendide datorita pozitionarii pe vest/vest-nord.

Imobilul dispune de centrala proprie pentru incalzire si apa calda al carei randament este asigurat de automatizari si panouri solare. Ascensorul imobilului este protejat de generator propriu.

Locuinta beneficiaza de spatii de depozitare, bucataria este complet mobilata si utilata iar terasa spatioasa cu vedere libera poate fi amenajata cu mobilier adecvat.

Proprietatea se poate vinde optional cu un loc de parcare subteran la pretul de 20.000 Euro si o boxa pe acelasi nivel cu apartamentul la pretul de 10.000 Euro.

Locuinta se afla situata intr-o zona dinamica, in plina dezvoltare a orasului. Se afla la cateva minute de urmatoarele puncte de interes:
- Parcul Circului peste drum, Parcul Cinema Floreasca, Parcul Tei, Parcul Floreasca
- supermarketurile Mega Image, Lidl si Kaufland
- institutii de invatamant: Liceul Teoretic Traian, Scoala Gimnaziala Maria Rosetti, Liceul Teoretic C.A. Rosetti
- Spitale, centre medicale si farmacii
- Hub-ul de business centere din zona Aviatiei/Pipera
- Vestitele restaurante/cafenele si cluburi din zonele Floreasca/Dorobanti
- Centre sportive - Dinamo, Pescariu Sport Spa, dar si comerciale - Promenada Mall.

Certificatul energetic va fi disponibil la momentul tranzactiei.

Cu siguranta prezentarea acestui apartament nu poate fi cuprinsa in cateva paragrafe, astfel incat va stau la dispozitie pentru detalii suplimentare, urmate de vizionare.

An constructie 2010

Suprafata construita 70 mp

Suprafata utila 60 mp

Suprafata terasa 9 mp

Regim Inaltime 6 / 7

Etaj 6

Nr. camere 2 camere

Nr. bai 1

Nr. balcoane 1 balcon

Confort 1

Tip constructie In bloc

Status constructie Finalizat

Disponibila incepand cu 2023-02-11

Judet Bucuresti

Oras/ Sector Sector 2

Zona Tei

Gps lat 44.458454

Gps lng 26.109678

Curent electric

Interfon

Internet prin cablu

Cablu TV

Internet prin fibra optica

Geamuri termopan

Repartitoare

Parchet

Apometre

Boxa

Gresie

Loc parcare subteran

Faianta

Gaz

Calorifere

Mobilat

Aer conditionat

Bucatarie mobilata

Lift

Apartament spatios 2 camere Parcul Circului

Proprietate vanduta

Ai o proprietate similara? Vinde-o cu noi.
Vinde apartament

Cod: REA1013959

Proprietati similare

Bucuresti, Floreasca, Barbu Vacarescu

Apartament, 2 camere

59.62 mp 3 2021

230.000 EUR

Detalii

Bucuresti, Floreasca, Barbu Vacarescu

Apartament, 2 camere

64 mp 1 1990

209.000 EUR

Detalii

Bucuresti, Tei, Parcul Circului

Apartament, 2 camere

51 mp P 2025

189.000 EUR

Detalii

Bucuresti, Floreasca

2 camere cu loc parcare exterior inclus

45.52 mp 1 1960

189.000 EUR

Detalii

Bucuresti, Dacia, Eminescu

Apartament, 2 camere

63.36 mp 1 2025

205.000 EUR

Detalii

Bucuresti, Floreasca

Apartament, 2 camere

56 mp 1 2027

229.000 EUR

Detalii

Bucuresti, Floreasca, Barbu Vacarescu

Apartament, 2 camere

54.4 mp 3 2022

221.482 EUR

Detalii

Bucuresti, Dorobanti

Apartament, 2 camere

50 mp 3 1947

206.000 EUR

Detalii
Apartamente 2 camere vandute in Tei, Bucuresti Apartamente 2 camere de vanzare in Tei, Bucuresti

Afla primul de cele mai bune oferte
inainte sa ajunga pe piata

Aboneaza-te la newsletter

Aboneaza-te la notificari