Vatra Luminoasa 4 camere 97 mp 2 2021

Avem deosebita placere de a va oferi spre vanzare un duplex de 4 camere aflat in vila noua finalizata in anul 2021 cu regim de inaltime P+2E+3 retras (doar doua apartamente in vila), din zona Vatra Luminoasa.

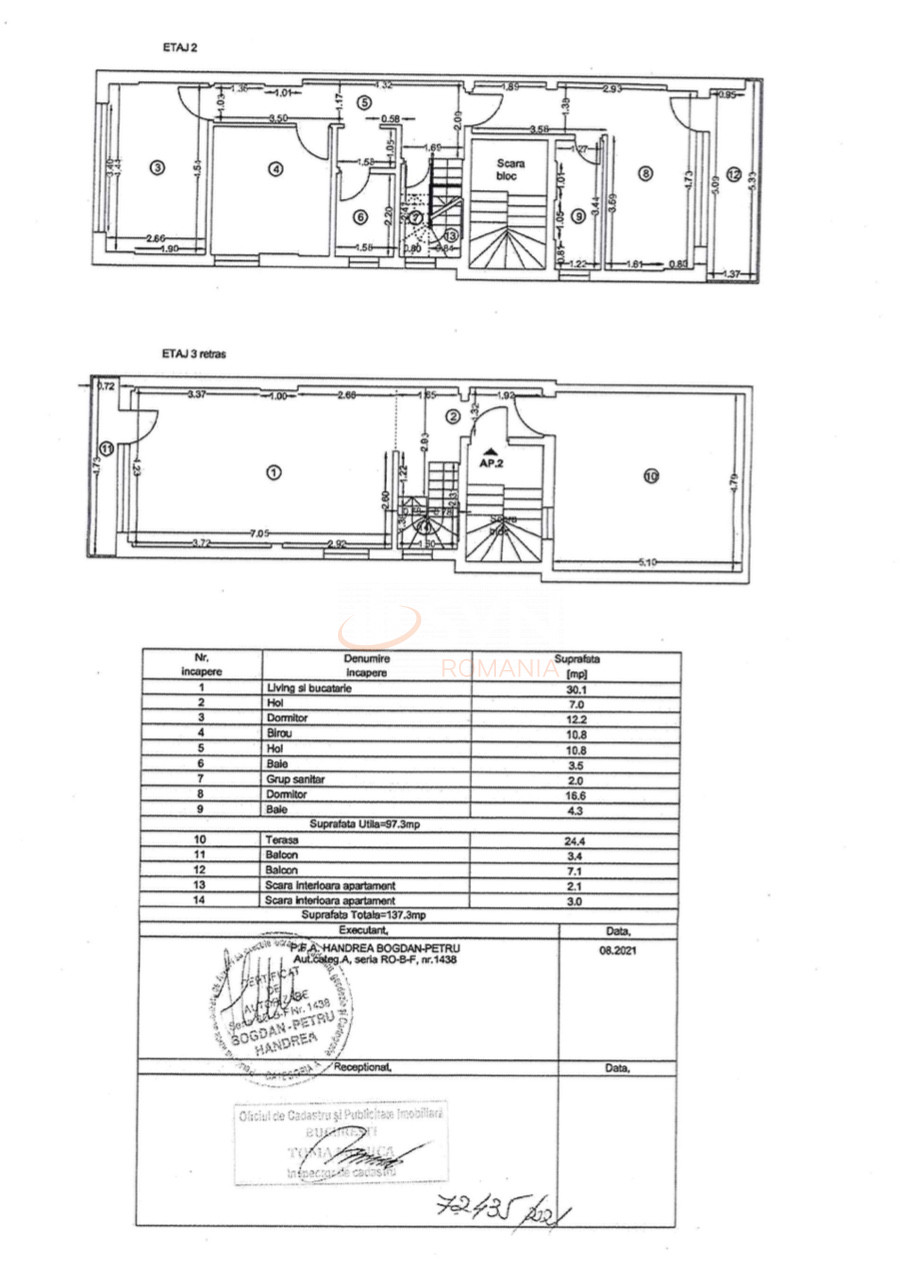
Duplexul este situat la etajele 2 si 3 si dispune de o impartire decomandata, fiind compus din:
-etaj 2: hol acces, dormitor matrimonial cu baie proprie si balcon, doua dormitoare , baie pe hol;
- etaj 3: living cu bucatarie open space cu iesire pe terasa de 25 mp , baie, hol, balcon.
Suprafata utila a apartamentului este de 97 mp, la care se adauga terasa de 25 mp si cele 2 balcoane ce insumeaza 11 mp.

Apartamentul a fost amenajat de catre un arhitect cu atentie deosebita la detalii si beneficiaza de finisaje de calitate superioara, obiecte sanitare premium, centrala proprie, incalzire in pardoseala, parchet de lemn triplu stratificat. ]

Casa dispune de curte proprie amenajata pentru recreere si loc de joaca pentru copii.

Ca si amplasare, se afla in cea mai frumoasa zona a Sectorului 2, zona Vatra Luminoasa care este extrem de linistita si cu foarte multa verdeata.

Apartamentul dispune de un loc de parcare in garajul propriu al vilei.

Certificatul energetic va fi disponibil la vanzare.

Pentru mai multe detalii si vizionari va stau la dispozitie.

An constructie 2021

Suprafata construita 140 mp

Suprafata utila 97 mp

Suprafata comuna 35

Regim Inaltime 2 / 3

Etaj 2

Nr. camere 4 camere

Nr. bai 3

Nr. balcoane 2 balcoane

Confort 1

Compartimentare Decomandat

Tip constructie In bloc

Status constructie Finalizat

Disponibila incepand cu 2023-02-02

Judet Bucuresti

Oras/ Sector Sector 2

Zona Vatra Luminoasa

Gps lat 44.440670

Gps lng 26.137668

Nr. terase 1

Supraveghere video

Interfon

Curent electric

Supraveghere 24/7

Detector de gaze

Internet Wireless

Cablu TV

Geamuri termopan

Repartitoare

Parchet

Apometre

Gresie

Faianta

Gaz

Loc parcare exterior

Incalzire proprie

WC serviciu

Aer conditionat

Duplex cu terasa in vila noua Vatra Luminoasa

Proprietate vanduta

Ai o proprietate similara? Vinde-o cu noi.
Vinde apartament

Cod: REA1009896

Proprietati similare

Bucuresti, Colentina, Bucur Obor

Apartament, 4 camere

114.3 mp 10 2025

267.360 EUR

Detalii
Exclusiv Discount

Bucuresti, Unirii, Alba Iulia

Apartament, 4 camere

98 mp 3 1996

255.000 EUR

Detalii

Bucuresti, Vitan

Apartament, 4 camere

90 mp 1 1992

260.000 EUR

Detalii

Bucuresti, Tineretului, Timpuri Noi

Apartament, 4 camere

99.7 mp 1 2025

285.000 EUR

Detalii

Bucuresti, Colentina, Andronache

4 camere cu loc parcare exterior inclus

115 mp 4 2026

299.900 EUR

Detalii

Bucuresti, Colentina

Apartament, 4 camere

112 mp 2 2025

277.000 EUR

Detalii

Bucuresti, Ultracentral, Calea Victoriei

Apartament, 4 camere

110.56 mp 1 1940

280.000 EUR

Detalii

Bucuresti, Ultracentral, Kogalniceanu

Apartament, 4 camere

140 mp 1 1895

260.000 EUR

Detalii
Apartamente 4 camere vandute in Vatra Luminoasa, Bucuresti Apartamente 4 camere de vanzare in Vatra Luminoasa, Bucuresti

Afla primul de cele mai bune oferte
inainte sa ajunga pe piata

Aboneaza-te la newsletter

Aboneaza-te la notificari