1 Decembrie 1918 2 camere 45 mp D 2012

SVN Residentialist Pipera va ofera spre vanzare un apartament de 2 camere, ideal atat pentru investitie, cat si pentru mutare imediata, situat intr-o zona apreciata din Sector 3, intr-un cartier linistit, aerisit si bine conectat la punctele de interes ale orasului. Proprietatea se afla intr-un imobil construit in anul 2012, cu regim de inaltime D + P + 4 etaje, oferind un ambient modern si civilizat.

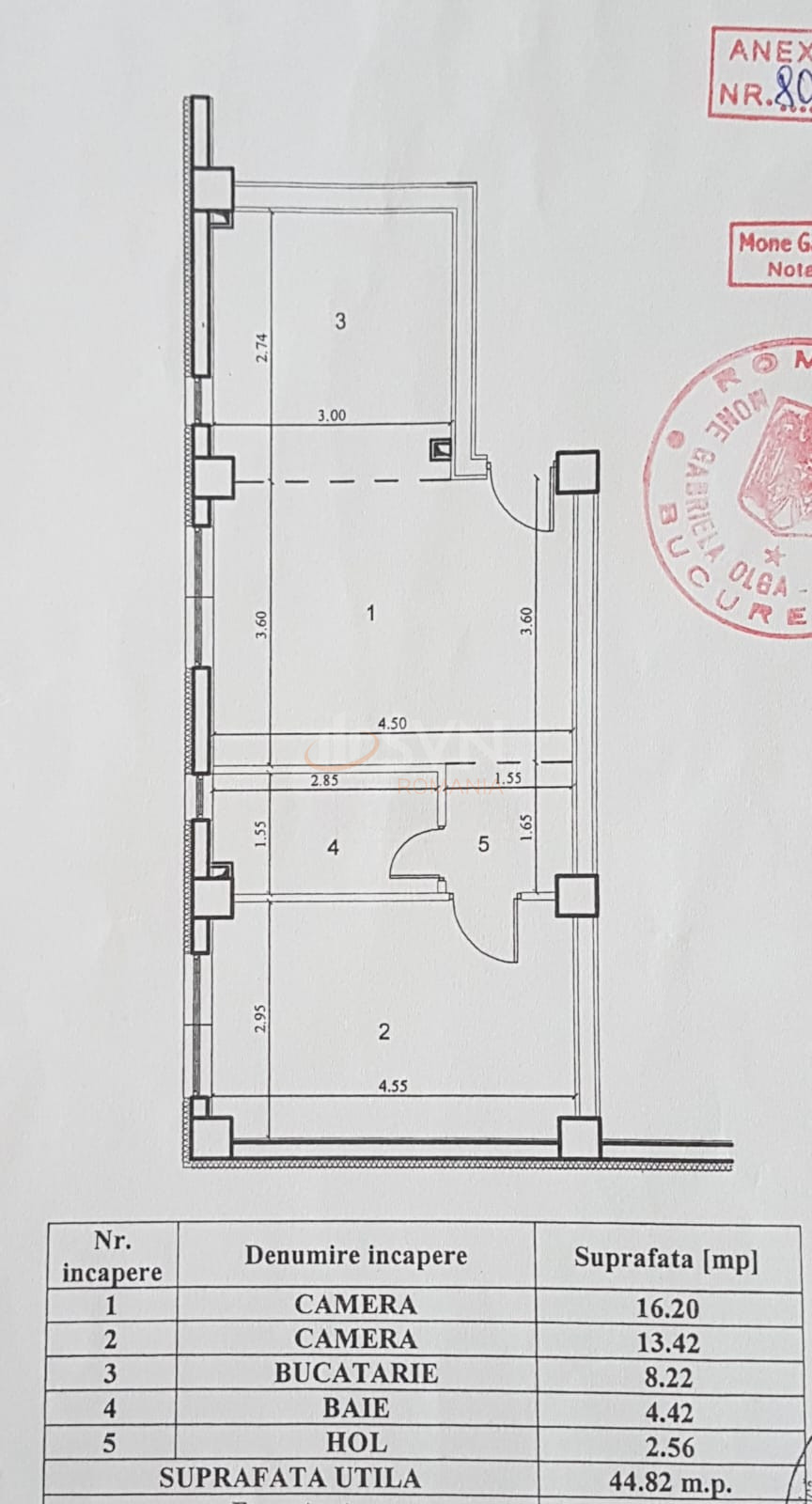
Apartamentul are o suprafata utila de 45 mp si este pozitionat la un demisol inalt, foarte luminos, beneficiind de lumina naturala pe tot parcursul zilei. Se vinde complet mobilat si utilat, fiind dotat cu centrala termica proprie, ceea ce asigura confort sporit si costuri eficiente de intretinere. Un avantaj important al proprietatii este reprezentat de spatiul exterior de depozitare de aproximativ 11 mp, cu acces privat, ideal pentru stocare sau organizare suplimentara.

Zona in care este amplasat imobilul se remarca prin accesibilitate excelenta, cu legaturi rapide catre mijloacele de transport in comun, inclusiv statia de metrou aflata la distanta de mers pe jos. In apropiere se regasesc magazine, supermarketuri, statii RATB, scoli si alte facilitati urbane, ceea ce face aceasta proprietate foarte atractiva atat pentru locuit, cat si pentru inchiriere, avand un potential bun de investitie.

Va invitam cu drag sa programati o vizionare si sa descoperiti personal aceasta proprietate exceptionala. Pentru orice informatii suplimentare, va stam la dispozitie telefonic.

An constructie 2012

Suprafata construita 54 mp

Suprafata utila 45 mp

Regim Inaltime D / 4

Etaj D

Nr. camere 2 camere

Nr. bai 1

Nr. balcoane 0 balcoane

Confort 1

Compartimentare Semidecomandat

Tip constructie In bloc

Status constructie Finalizat

Disponibila incepand cu 2026-01-19

Judet Bucuresti

Oras/ Sector Sector 3

Zona 1 Decembrie 1918

Gps lat 44.403698

Gps lng 26.175189

Cablu TV

Curent electric

Internet prin cablu

Interfon

Geamuri termopan

Parchet

Gresie

Faianta

Gaz

Incalzire proprie

Calorifere

Mobilat

Aer conditionat

Bucatarie mobilata

Valoare proprietate (€)

Perioada (ani)

Procent avans (10.350 €)


Suma creditata 58.650

Dobanda 4.9%

Rata lunara 1.450 lei

Broker Imobiliar

Cristina Iordache , Consultant imobiliar Vezi toate proprietatile

0317100200

Apartament 2 camere I 1 decembrie 1918 I vanzare

Pret vanzare
69.000 €

Telefon Consultant imobiliar
0317100200

Cod: REA1026999

Proprietati similare

Bucuresti, Mosilor

Apartament, 2 camere

43 mp 5 1939

70.000 EUR

Detalii

Bucuresti, Tei, Lacul Tei

Apartament, 2 camere

46 mp 5 1975

75.000 EUR

Detalii

Bucuresti, Gara De Nord

Apartament, 2 camere

36.6 mp P 1960

63.000 EUR

Detalii
Exclusiv Discount

Bucuresti, 1 Mai

Apartament, 2 camere

44.1 mp 7 1961

71.500 EUR

Detalii
Apartamente 2 camere vandute in Titan, Bucuresti Apartamente 2 camere de vanzare in Titan, Bucuresti

Afla primul de cele mai bune oferte
inainte sa ajunga pe piata

Aboneaza-te la newsletter

Aboneaza-te la notificari