Alba Iulia 4 camere 98 mp 6 2001

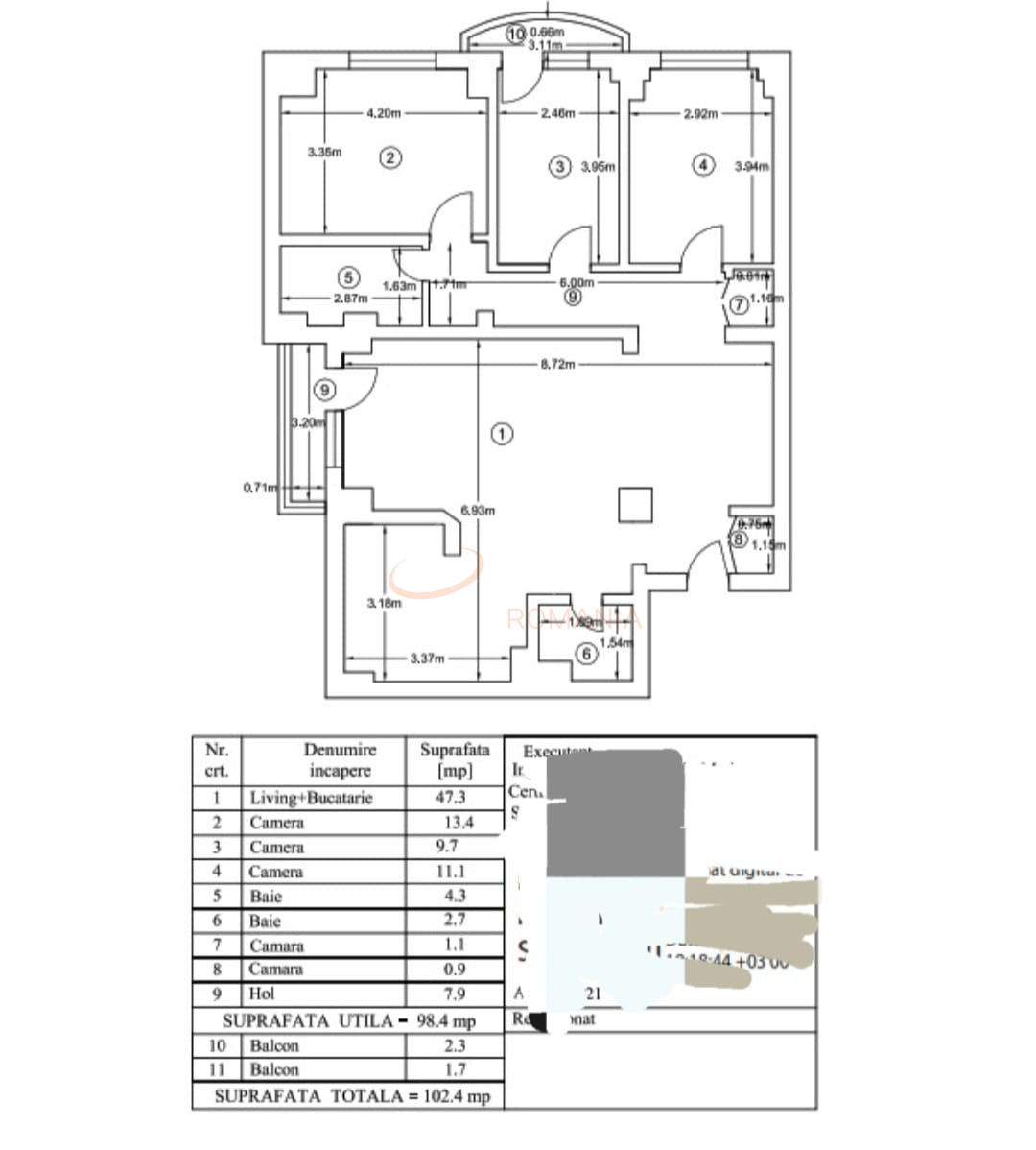
Svn Residentialist va propune spre vanzare un apartament deosebit cu 4 camere, situat in zona rond Alba Iulia – una dintre cele mai cautate si apreciate zone din Bucuresti, cunoscuta pentru eleganta si accesibilitatea sa. Apartamentul are o suprafata utila generoasa de 98 mp, fiind perfect compartimentat pentru a oferi confort si spatiu unei familii moderne.

Locuinta este complet renovata cu materiale de calitate, are doua bai functionale si doua balcoane ce aduc lumina naturala din abundenta in fiecare colt al casei. Designul interior imbina eleganta si functionalitatea, oferind o atmosfera calda si primitoare.

Zona este excelenta, cu acces facil catre Piata Unirii, Bulevardul Decebal si mijloacele de transport in comun, iar in apropiere se afla restaurante, cafenele, scoli si parcuri. Un apartament care imbina perfect confortul urban cu rafinamentul unei locuinte moderne, ideal atat pentru locuit, cat si ca investitie sigura.

Pentru mai multe detalii si vizionari, va stam la dispozitie!

An constructie 2001

Suprafata construita 112 mp

Suprafata utila 98 mp

Suprafata terasa 4 mp

Regim Inaltime 6 / 10

Etaj 6

Nr. camere 4 camere

Nr. bai 2

Nr. balcoane 2 balcoane

Confort 1

Compartimentare Decomandat

Tip constructie In bloc

Status constructie Finalizat

Disponibila incepand cu 2025-10-16

Judet Bucuresti

Oras/ Sector Sector 3

Zona Alba Iulia

Gps lat 44.426429

Gps lng 26.128595

Curent electric

Geamuri termopan

Balcon inchis

Parchet

Gresie

Faianta

Gaz

Calorifere

WC serviciu

Mobilat

Aer conditionat

Bucatarie mobilata

Lift

Valoare proprietate (€)

Perioada (ani)

Procent avans (50.985 €)


Suma creditata 288.915

Dobanda 4.9%

Rata lunara 7.143 lei

Broker Imobiliar

Nina Noapte , Consultant imobiliar Vezi toate proprietatile

0317100200

Apartament 4 camere I Alba Iulia

Pret vanzare
339.900 €

Telefon Consultant imobiliar
0317100200

Cod: REA1025548

Proprietati similare

Bucuresti, Unirii, Unirii (s3)

Apartament, 4 camere

99 mp 6 1995

345.000 EUR

Detalii

Bucuresti, Mihai Bravu, Mihai Bravu (s3)

Apartament, 4 camere

111 mp 17 2024

350.000 EUR

Detalii

Bucuresti, Unirii, Unirii (s3)

Apartament, 4 camere

98.13 mp 1 1990

331.900 EUR

Detalii

Bucuresti, Ferdinand

Apartament, 4 camere

97.8 mp 4 2026

349.000 EUR

Detalii

Bucuresti, Unirii, Piata Unirii (s3)

Apartament, 4 camere

96 mp 1 1980

370.000 EUR

Detalii

Bucuresti, Tineretului

Apartament, 4 camere

106 mp 13 2009

365.000 EUR

Detalii

Bucuresti, Ultracentral, Cismigiu

Apartament, 4 camere

93 mp 7 1980

349.000 EUR

Detalii

Bucuresti, Ultracentral, Piata Romana

Apartament, 4 camere

108 mp P 1928

310.000 EUR

Detalii
Apartamente 4 camere vandute in Unirii, Bucuresti Apartamente 4 camere de vanzare in Unirii, Bucuresti

Afla primul de cele mai bune oferte
inainte sa ajunga pe piata

Aboneaza-te la newsletter

Aboneaza-te la notificari